|
|
|
| Larry Stein Oklahoma County Assessor (405) 713-1200 - Public Access System |
|
|
|
|
|
|
| Real Property Display - Screen Produced 4/2/2026 8:30:54 PM | ||||
|---|---|---|---|---|
| Account: R215201890 | Type: Residential | Location: |
7604 LEICHTER AVE |
|
| Building Name/Occupant: |
|
OKLAHOMA CITY |
||
| Owner Name 1: | CHATTIN JEROME G & CASSANDRA D |
Parcel PIN#: |
2821-21-520-1890 |
|
| Owner Name 2: | 1/4 section #: |
2821 |
||
| Owner Name 3: | Parent Acct: |
2821-16-854-1480 |
||
| Billing Address: | 7604 LEICHTER AVE | Tax District: |
|
|
| City, State, Zip | OKLAHOMA CITY , OK 73132 | School System: |
Putnam City #1 |
|
|
Country: (If noted) |
Land Size: |
0.1644 Acres |
||
|
Land Value: 46,560 |
|
|||
|
Sect 6-T12N-R4W Qtr NE |
KENNARD RANCH
Block
004
Lot
015
|
|||
| Full Legal Description: KENNARD RANCH 004 015 |
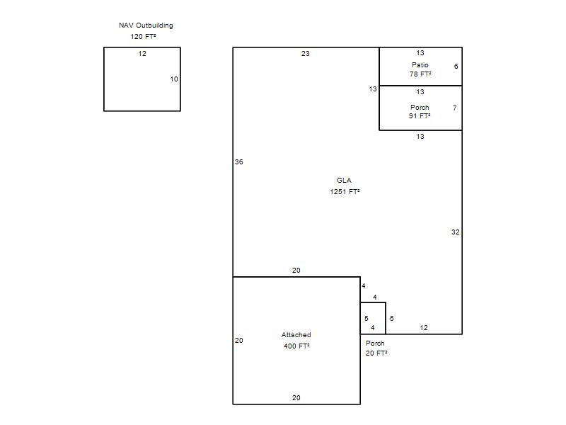
| Photo & Sketch (if available) | Comp Sales (ordered by relevancy) |
|
||||||||||||||||||
|
||||||||||||||||||||
| Value History (*The County Treasurer 405-713-1300 posts & collects actual tax amounts. Contact information HERE) | |||||||||||||
|---|---|---|---|---|---|---|---|---|---|---|---|---|---|
| Year | Market Value | Taxable Mkt Value | Gross Assessed | Exemption | Net Assessed | Millage | Est. Tax | Tax Savings | |||||
|
2026 |
219,500 |
207,713 |
22,848 |
0 |
22,848 |
123.17 |
$2,814 |
$160 |
|||||
|
2025 |
220,000 |
197,822 |
21,760 |
0 |
21,760 |
123.17 |
$2,680 |
$300 |
|||||
|
2024 |
222,500 |
188,402 |
20,723 |
0 |
20,723 |
122.30 |
$2,535 |
$459 |
|||||
|
2023 |
217,000 |
179,431 |
19,736 |
0 |
19,736 |
121.91 |
$2,406 |
$504 |
|||||
|
2022 |
174,000 |
170,887 |
18,797 |
0 |
18,797 |
123.41 |
$2,320 |
$42 |
|||||
| Property Account Status/Adjustments/Exemptions | ||
|---|---|---|
| Account # | Exemption Description | Amount |
|
R215201890 |
5% Capped Account |
0 |
| Property Deed Transaction History (Recorded in the County Clerk's Office) | |||||||
|---|---|---|---|---|---|---|---|
| Date | Type | Book | Page | Price | Grantor | Grantee | |
|
1/8/2019 |
|
Deeds |
$0 |
RAUSCH COLEMAN HOMES OKC LLC |
CHATTIN JEROME G & CASSANDRA D |
||
|
6/22/2018 |
|
Deeds |
$152,500 |
RAUSCH COLEMAN HOMES OKC LLC |
CHATTIN JEROME G & CASSANDRA D |
||
|
8/30/2017 |
|
Mult Parcel |
$1,930,000 |
SEDONA LAKES LLC |
RAUSCH COLEMAN HOMES OKC LLC |
||
| Last Mailed Notice of Value (N.O.V.) Information/History | ||||||||
|---|---|---|---|---|---|---|---|---|
| Year | Date | Market Value | Taxable Market Value | Gross Assessed | Exemption | Net Assessed | ||
|
2026 |
02/23/2026 |
219,500 |
207,713 |
22,848 |
0 |
22,848 |
||
|
2025 |
02/14/2025 |
220,000 |
197,822 |
21,760 |
0 |
21,760 |
||
|
2024 |
02/13/2024 |
222,500 |
188,402 |
20,723 |
0 |
20,723 |
||
|
2023 |
02/14/2023 |
217,000 |
179,431 |
19,736 |
0 |
19,736 |
||
|
2022 |
03/15/2022 |
174,000 |
170,887 |
18,797 |
0 |
18,797 |
||
| Property Building Permit History | ||||||
|---|---|---|---|---|---|---|
| Issued | Permit # | Provided by | Bldg # | Description | Est Construction Cost | Status |
|
9/5/2018 |
|
|
1 |
Main Dwellin |
120,000 |
Inactive |
| Click button on building number to access detailed information: | ||||||
|---|---|---|---|---|---|---|
| Bldg # | Vacant/Improved Land | Bldg Description | Year Built | SqFt | # Stories | |
|
1 |
Improved |
Ranch 1 Story |
2018 |
1,251 |
1 Stories |
|