|
|
|
| Larry Stein Oklahoma County Assessor (405) 713-1200 - Public Access System |
|
|
|
|
|
|
| Real Property Display - Screen Produced 4/3/2026 5:49:41 AM | ||||
|---|---|---|---|---|
| Account: R215441420 | Type: Residential | Location: |
7305 LEGACY LN |
|
| Building Name/Occupant: |
|
OKLAHOMA CITY |
||
| Owner Name 1: | LIRA ALEJANDRO |
Parcel PIN#: |
2821-21-544-1420 |
|
| Owner Name 2: | MOSQUEDA MISTY GRANGENO | 1/4 section #: |
2821 |
|
| Owner Name 3: | Parent Acct: |
2821-16-854-1450 |
||
| Billing Address: | 7305 LEGACY LN | Tax District: |
|
|
| City, State, Zip | OKLAHOMA CITY, OK 73132 | School System: |
Putnam City #1 |
|
|
Country: (If noted) |
Land Size: |
0.1743 Acres |
||
|
Land Value: 32,272 |
|
|||
|
Sect 6-T12N-R4W Qtr NE |
LEGACY ESTATES II
Block
012
Lot
012
|
|||
| Full Legal Description: LEGACY ESTATES II BLK 012 LOT 012 |
| Photo & Sketch (if available) | Comp Sales (ordered by relevancy) |
|
||||||||||||||||||
|
||||||||||||||||||||
| Value History (*The County Treasurer 405-713-1300 posts & collects actual tax amounts. Contact information HERE) | |||||||||||||
|---|---|---|---|---|---|---|---|---|---|---|---|---|---|
| Year | Market Value | Taxable Mkt Value | Gross Assessed | Exemption | Net Assessed | Millage | Est. Tax | Tax Savings | |||||
|
2026 |
184,500 |
170,778 |
18,785 |
0 |
18,785 |
123.17 |
$2,314 |
$186 |
|||||
|
2025 |
184,500 |
162,646 |
17,890 |
0 |
17,890 |
123.17 |
$2,204 |
$296 |
|||||
|
2024 |
182,500 |
154,901 |
17,038 |
0 |
17,038 |
122.30 |
$2,084 |
$371 |
|||||
|
2023 |
172,500 |
147,525 |
16,227 |
0 |
16,227 |
121.91 |
$1,978 |
$335 |
|||||
|
2022 |
140,500 |
140,500 |
15,455 |
0 |
15,455 |
123.41 |
$1,907 |
$0 |
|||||
| Property Account Status/Adjustments/Exemptions | ||
|---|---|---|
| Account # | Exemption Description | Amount |
|
R215441420 |
5% Capped Account |
0 |
| Property Deed Transaction History (Recorded in the County Clerk's Office) | |||||||
|---|---|---|---|---|---|---|---|
| Date | Type | Book | Page | Price | Grantor | Grantee | |
|
2/13/2020 |
|
Deeds |
$148,000 |
CENTRAL OKLAHOMA HABITAT |
LIRA ALEJANDRO |
||
|
6/4/2013 |
|
Deeds |
$903,500 |
CENTRAL OKLAHOMA HABITAT FOR |
CENTRAL OKLAHOMA HABITAT |
||
| Last Mailed Notice of Value (N.O.V.) Information/History | ||||||||
|---|---|---|---|---|---|---|---|---|
| Year | Date | Market Value | Taxable Market Value | Gross Assessed | Exemption | Net Assessed | ||
|
2026 |
02/23/2026 |
184,500 |
170,778 |
18,785 |
0 |
18,785 |
||
|
2025 |
02/14/2025 |
184,500 |
162,646 |
17,890 |
0 |
17,890 |
||
|
2024 |
02/13/2024 |
182,500 |
154,901 |
17,038 |
0 |
17,038 |
||
|
2023 |
02/14/2023 |
172,500 |
147,525 |
16,227 |
0 |
16,227 |
||
|
2021 |
03/19/2021 |
152,500 |
152,500 |
16,775 |
0 |
16,775 |
||
| Property Building Permit History | ||||||
|---|---|---|---|---|---|---|
| Issued | Permit # | Provided by | Bldg # | Description | Est Construction Cost | Status |
|
12/17/2019 |
BLDR-2019-05630 |
|
|
Main Dwellin |
95,000 |
Inactive |
| Click button on building number to access detailed information: | ||||||
|---|---|---|---|---|---|---|
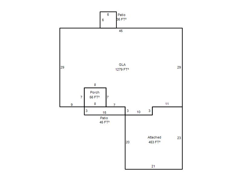
| Bldg # | Vacant/Improved Land | Bldg Description | Year Built | SqFt | # Stories | |
|
1 |
Improved |
Ranch 1 Story |
2019 |
1,279 |
1 Stories |
|