|
|
|
| Larry Stein Oklahoma County Assessor (405) 713-1200 - Public Access System |
|
|
|
|
|
|
| Real Property Display - Screen Produced 4/3/2026 1:07:37 AM | ||||
|---|---|---|---|---|
| Account: R120211420 | Type: Residential | Location: |
5001 KINDLING LN |
|
| Building Name/Occupant: |
|
OKLAHOMA CITY |
||
| Owner Name 1: | FRENCH CLARENCE E |
Parcel PIN#: |
1477-12-021-1420 |
|
| Owner Name 2: | WILSON VANESSA FRENCH | 1/4 section #: |
1477 |
|
| Owner Name 3: | Parent Acct: |
|
||
| Billing Address: | 5001 KINDLING LN | Tax District: |
|
|
| City, State, Zip | OKLAHOMA CITY, OK 73135-4223 | School System: |
Mid-Del #52 |
|
|
Country: (If noted) |
Land Size: |
0.2632 Acres |
||
|
Land Value: 34,169 |
|
|||
|
Sect 20-T11N-R2W Qtr NE |
THE EMBERS
Block
004
Lot
004
|
|||
| Full Legal Description: THE EMBERS 004 004 |
| Photo & Sketch (if available) | Comp Sales (ordered by relevancy) |
|
||||||||||||||||||
|
||||||||||||||||||||
| Value History (*The County Treasurer 405-713-1300 posts & collects actual tax amounts. Contact information HERE) | |||||||||||||
|---|---|---|---|---|---|---|---|---|---|---|---|---|---|
| Year | Market Value | Taxable Mkt Value | Gross Assessed | Exemption | Net Assessed | Millage | Est. Tax | Tax Savings | |||||
|
2026 |
267,000 |
188,060 |
20,686 |
1,000 |
19,686 |
126.46 |
$2,490 |
$1,225 |
|||||
|
2025 |
253,500 |
182,583 |
20,083 |
1,000 |
19,083 |
126.46 |
$2,413 |
$1,113 |
|||||
|
2024 |
243,500 |
177,266 |
19,498 |
1,000 |
18,498 |
128.51 |
$2,377 |
$1,065 |
|||||
|
2023 |
234,500 |
172,103 |
18,931 |
1,000 |
17,931 |
122.94 |
$2,204 |
$967 |
|||||
|
2022 |
203,500 |
167,091 |
18,379 |
1,000 |
17,379 |
122.11 |
$2,122 |
$611 |
|||||
| Property Account Status/Adjustments/Exemptions | ||
|---|---|---|
| Account # | Exemption Description | Amount |
|
R120211420 |
Homestead |
1,000 |
|
R120211420 |
3% Cap Homestead |
0 |
| Property Deed Transaction History (Recorded in the County Clerk's Office) | |||||||
|---|---|---|---|---|---|---|---|
| Date | Type | Book | Page | Price | Grantor | Grantee | |
|
7/7/2010 |
|
Hmstd Off & |
$0 |
FRENCH FAE HELLON |
FRENCH CLARENCE E |
||
|
3/7/2002 |
|
Deeds |
$0 |
FRENCH FAE HELLON FRENCH VANESSA |
FRENCH FAE HELLON |
||
|
12/23/1996 |
|
Historical |
$94,500 |
DROST GARY C & MARCIA L |
FRENCH FAE HELLON |
||
|
8/1/1983 |
|
Historical |
$0 |
|
DROST GARY C & MARCIA L |
||
| Last Mailed Notice of Value (N.O.V.) Information/History | ||||||||
|---|---|---|---|---|---|---|---|---|
| Year | Date | Market Value | Taxable Market Value | Gross Assessed | Exemption | Net Assessed | ||
|
2026 |
02/06/2026 |
267,000 |
188,060 |
20,686 |
1,000 |
19,686 |
||
|
2025 |
01/31/2025 |
253,500 |
182,583 |
20,083 |
1,000 |
19,083 |
||
|
2024 |
01/22/2024 |
243,500 |
177,266 |
19,498 |
1,000 |
18,498 |
||
|
2023 |
01/23/2023 |
234,500 |
172,103 |
18,931 |
1,000 |
17,931 |
||
|
2022 |
02/22/2022 |
203,500 |
167,091 |
18,379 |
1,000 |
17,379 |
||
| Property Building Permit History | |||||||||||
|---|---|---|---|---|---|---|---|---|---|---|---|
| Issued | Permit # | Provided by | Bldg # | Description | Est Construction Cost | Status | |||||
| No Building Permit records returned. | |||||||||||
| Click button on building number to access detailed information: | ||||||
|---|---|---|---|---|---|---|
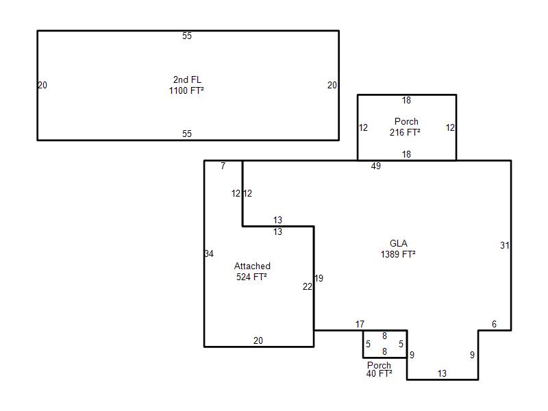
| Bldg # | Vacant/Improved Land | Bldg Description | Year Built | SqFt | # Stories | |
|
1 |
Improved |
2 Story |
1982 |
2,489 |
2 Stories |
|