|
|
|
| Larry Stein Oklahoma County Assessor (405) 713-1200 - Public Access System |
|
|
|
|
|
|
| Real Property Display - Screen Produced 4/3/2026 9:45:16 PM | ||||
|---|---|---|---|---|
| Account: R216191020 | Type: Commercial | Location: |
16200 SONOMA PARK DR |
|
| Building Name/Occupant: |
CCDC INCORPORATED |
OKLAHOMA CITY |
||
| Owner Name 1: | PELHAM PARTNERS LLC |
Parcel PIN#: |
3620-21-619-1020 |
|
| Owner Name 2: | 1/4 section #: |
3620 |
||
| Owner Name 3: | Parent Acct: |
3620-20-617-1040 |
||
| Billing Address: | 16200 SONOMA PARK DR | Tax District: |
|
|
| City, State, Zip | EDMOND, OK 73013-2117 | School System: |
Edmond #12 |
|
|
Country: (If noted) |
Land Size: |
57,398.0000 Square Feet |
||
|
Land Value: 446,459 |
|
|||
|
Sect 5-T13N-R3W Qtr NW |
SONOMA LAKE OFFICE PARK REPLAT LT 5 BLK 1
Block
001
Lot
05D
|
|||
| Full Legal Description: SONOMA LAKE OFFICE PARK REPLAT LT 5 BLK 1 BLK 000 LOT 05D |
| No comparable sales report available. | ||||||||||||||||||||||
|
||||||||||||||||||||||
| Value History (*The County Treasurer 405-713-1300 posts & collects actual tax amounts. Contact information HERE) | |||||||||||||
|---|---|---|---|---|---|---|---|---|---|---|---|---|---|
| Year | Market Value | Taxable Mkt Value | Gross Assessed | Exemption | Net Assessed | Millage | Est. Tax | Tax Savings | |||||
|
2026 |
855,689 |
855,689 |
94,125 |
0 |
94,125 |
120.32 |
$11,325 |
$0 |
|||||
|
2025 |
855,689 |
855,689 |
94,125 |
0 |
94,125 |
120.32 |
$11,325 |
$0 |
|||||
|
2024 |
855,689 |
855,689 |
94,125 |
0 |
94,125 |
119.96 |
$11,291 |
$0 |
|||||
|
2023 |
855,689 |
855,689 |
94,125 |
0 |
94,125 |
119.02 |
$11,203 |
$0 |
|||||
|
2022 |
855,689 |
855,689 |
94,125 |
0 |
94,125 |
120.10 |
$11,305 |
$0 |
|||||
| Property Account Status/Adjustments/Exemptions | ||
|---|---|---|
| Account # | Exemption Description | Amount |
|
R216191020 |
5% Capped Account |
0 |
| Property Deed Transaction History (Recorded in the County Clerk's Office) | |||||||
|---|---|---|---|---|---|---|---|
| Date | Type | Book | Page | Price | Grantor | Grantee | |
|
5/18/2011 |
|
Deeds |
$400,000 |
SONOMA LAKE OFFICE PARK LLC |
PELHAM PARTNERS LLC |
||
| Last Mailed Notice of Value (N.O.V.) Information/History | ||||||
|---|---|---|---|---|---|---|
| Year | Date | Market Value | Taxable Market Value | Gross Assessed | Exemption | Net Assessed |
|
2021 |
03/22/2021 |
855,689 |
855,689 |
94,125 |
0 |
94,125 |
|
2020 |
03/16/2020 |
881,186 |
850,435 |
93,547 |
0 |
93,547 |
|
2019 |
04/05/2019 |
887,523 |
809,940 |
89,093 |
0 |
89,093 |
| Property Building Permit History | |||||||||||
|---|---|---|---|---|---|---|---|---|---|---|---|
| Issued | Permit # | Provided by | Bldg # | Description | Est Construction Cost | Status | |||||
| No Building Permit records returned. | |||||||||||
| Click button on building number to access detailed information: | ||||||
|---|---|---|---|---|---|---|
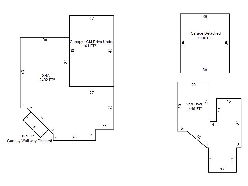
| Bldg # | Vacant/Improved Land | Bldg Description | Year Built | SqFt | # Stories | |
|
1 |
Improved |
Office Style Residential |
2011 |
3,881 |
1.5 Stories |
|