|
|
|
| Larry Stein Oklahoma County Assessor (405) 713-1200 - Public Access System |
|
|
|
|
|
|
| Real Property Display - Screen Produced 4/4/2026 6:48:27 PM | ||||
|---|---|---|---|---|
| Account: R216381280 | Type: Residential | Location: |
10537 SE 23RD ST |
|
| Building Name/Occupant: |
|
MIDWEST CITY |
||
| Owner Name 1: | TRAYNOR MYRA A |
Parcel PIN#: |
1226-21-638-1280 |
|
| Owner Name 2: | 1/4 section #: |
1226 |
||
| Owner Name 3: | Parent Acct: |
1226-15-595-1905 |
||
| Billing Address: | 10537 SE 23RD ST | Tax District: |
|
|
| City, State, Zip | MIDWEST CITY, OK 73130 | School System: |
Choctaw #4 |
|
|
Country: (If noted) |
Land Size: |
0.1515 Acres |
||
|
Land Value: 44,551 |
|
|||
|
Sect 7-T11N-R1W Qtr SE |
TURTLEWOOD 6TH
Block
010
Lot
016
|
|||
| Full Legal Description: TURTLEWOOD 6TH BLK 010 LOT 016 |
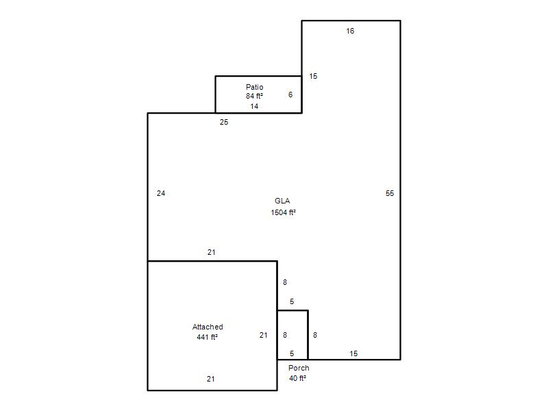
| Photo & Sketch (if available) | Comp Sales (ordered by relevancy) |
|
||||||||||||||||||
|
||||||||||||||||||||
| Value History (*The County Treasurer 405-713-1300 posts & collects actual tax amounts. Contact information HERE) | |||||||||||||
|---|---|---|---|---|---|---|---|---|---|---|---|---|---|
| Year | Market Value | Taxable Mkt Value | Gross Assessed | Exemption | Net Assessed | Millage | Est. Tax | Tax Savings | |||||
|
2026 |
264,500 |
245,683 |
27,024 |
0 |
27,024 |
127.03 |
$3,433 |
$263 |
|||||
|
2025 |
257,000 |
233,984 |
25,737 |
0 |
25,737 |
127.03 |
$3,270 |
$322 |
|||||
|
2024 |
253,500 |
222,842 |
24,512 |
0 |
24,512 |
127.00 |
$3,113 |
$428 |
|||||
|
2023 |
243,000 |
212,231 |
23,344 |
0 |
23,344 |
128.50 |
$3,000 |
$435 |
|||||
|
2022 |
213,500 |
202,125 |
22,233 |
0 |
22,233 |
127.22 |
$2,829 |
$159 |
|||||
| Property Account Status/Adjustments/Exemptions | ||
|---|---|---|
| Account # | Exemption Description | Amount |
|
R216381280 |
5% Capped Account |
0 |
| Property Deed Transaction History (Recorded in the County Clerk's Office) | |||||||
|---|---|---|---|---|---|---|---|
| Date | Type | Book | Page | Price | Grantor | Grantee | |
|
11/2/2020 |
|
Deeds |
$189,000 |
TURTLEWOOD PROPERTIES LLC |
TRAYNOR MYRA A |
||
|
5/24/2019 |
|
Mult Parcel |
$2,331,000 |
FARZANEH DEVELOPMENT LLLP |
TURTLEWOOD PROPERTIES LLC |
||
|
10/30/2018 |
|
Hmstd Off & |
$0 |
SHAZ INVESTMENT INC |
FARZANEH DEVELOPMENT LLLP |
||
| Last Mailed Notice of Value (N.O.V.) Information/History | ||||||||
|---|---|---|---|---|---|---|---|---|
| Year | Date | Market Value | Taxable Market Value | Gross Assessed | Exemption | Net Assessed | ||
|
2026 |
02/06/2026 |
264,500 |
245,683 |
27,024 |
0 |
27,024 |
||
|
2025 |
01/31/2025 |
257,000 |
233,984 |
25,737 |
0 |
25,737 |
||
|
2024 |
01/22/2024 |
253,500 |
222,842 |
24,512 |
0 |
24,512 |
||
|
2023 |
01/23/2023 |
243,000 |
212,231 |
23,344 |
0 |
23,344 |
||
|
2022 |
02/22/2022 |
213,500 |
202,125 |
22,233 |
0 |
22,233 |
||
| Property Building Permit History | ||||||
|---|---|---|---|---|---|---|
| Issued | Permit # | Provided by | Bldg # | Description | Est Construction Cost | Status |
|
12/13/2019 |
19-000011904 |
|
|
Main Dwellin |
112,500 |
Inactive |
| Click button on building number to access detailed information: | ||||||
|---|---|---|---|---|---|---|
| Bldg # | Vacant/Improved Land | Bldg Description | Year Built | SqFt | # Stories | |
|
1 |
Improved |
Ranch 1 Story |
2020 |
1,504 |
1 Stories |
|