|
|
|
| Larry Stein Oklahoma County Assessor (405) 713-1200 - Public Access System |
|
|
|
|
|
|
| Real Property Display - Screen Produced 4/4/2026 6:48:27 PM | ||||
|---|---|---|---|---|
| Account: R216381310 | Type: Residential | Location: |
10549 SE 23RD ST |
|
| Building Name/Occupant: |
|
MIDWEST CITY |
||
| Owner Name 1: | TRIDZYMENT10549 LLC |
Parcel PIN#: |
1226-21-638-1310 |
|
| Owner Name 2: | 1/4 section #: |
1226 |
||
| Owner Name 3: | Parent Acct: |
1226-15-595-1905 |
||
| Billing Address: | 10549 SE 23RD ST | Tax District: |
|
|
| City, State, Zip | MIDWEST CITY, OK 73130-6061 | School System: |
Choctaw #4 |
|
|
Country: (If noted) |
Land Size: |
0.1514 Acres |
||
|
Land Value: 44,504 |
|
|||
|
Sect 7-T11N-R1W Qtr SE |
TURTLEWOOD 6TH
Block
010
Lot
019
|
|||
| Full Legal Description: TURTLEWOOD 6TH BLK 010 LOT 019 |
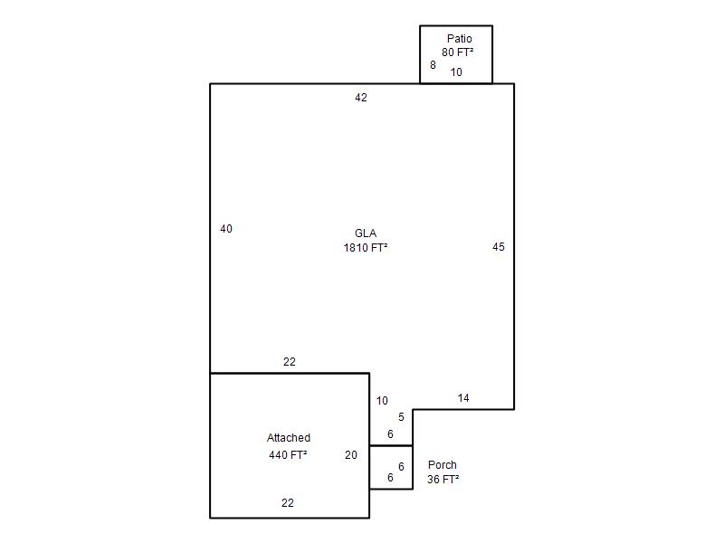
| Photo & Sketch (if available) | Comp Sales (ordered by relevancy) |
|
||||||||||||||||||
|
||||||||||||||||||||
| Value History (*The County Treasurer 405-713-1300 posts & collects actual tax amounts. Contact information HERE) | |||||||||||||
|---|---|---|---|---|---|---|---|---|---|---|---|---|---|
| Year | Market Value | Taxable Mkt Value | Gross Assessed | Exemption | Net Assessed | Millage | Est. Tax | Tax Savings | |||||
|
2026 |
288,500 |
288,500 |
31,735 |
0 |
31,735 |
127.03 |
$4,031 |
$0 |
|||||
|
2025 |
280,000 |
280,000 |
30,800 |
0 |
30,800 |
127.03 |
$3,913 |
$0 |
|||||
|
2024 |
276,500 |
231,525 |
25,467 |
0 |
25,467 |
127.00 |
$3,234 |
$628 |
|||||
|
2023 |
220,500 |
220,500 |
24,255 |
0 |
24,255 |
128.50 |
$3,117 |
$0 |
|||||
|
2022 |
220,500 |
220,500 |
24,255 |
0 |
24,255 |
127.22 |
$3,086 |
$0 |
|||||
| Property Account Status/Adjustments/Exemptions | ||
|---|---|---|
| Account # | Exemption Description | Amount |
|
R216381310 |
5% Capped Account |
0 |
| Property Deed Transaction History (Recorded in the County Clerk's Office) | |||||||
|---|---|---|---|---|---|---|---|
| Date | Type | Book | Page | Price | Grantor | Grantee | |
|
8/22/2025 |
|
Hmstd Off & |
$0 |
KUNDU NILADRI |
TRIDZYMENT10549 LLC |
||
|
7/31/2024 |
|
Deeds |
$287,000 |
PLATZ MICHAEL K |
KUNDU NILADRI |
||
|
10/21/2020 |
|
Deeds |
$222,000 |
TURTLEWOOD PROPERTIES LLC |
PLATZ MICHAEL K |
||
|
5/24/2019 |
|
Mult Parcel |
$2,331,000 |
FARZANEH DEVELOPMENT LLLP |
TURTLEWOOD PROPERTIES LLC |
||
|
10/30/2018 |
|
Hmstd Off & |
$0 |
SHAZ INVESTMENT INC |
FARZANEH DEVELOPMENT LLLP |
||
| Last Mailed Notice of Value (N.O.V.) Information/History | ||||||
|---|---|---|---|---|---|---|
| Year | Date | Market Value | Taxable Market Value | Gross Assessed | Exemption | Net Assessed |
|
2026 |
02/06/2026 |
288,500 |
288,500 |
31,735 |
0 |
31,735 |
|
2025 |
01/31/2025 |
280,000 |
280,000 |
30,800 |
0 |
30,800 |
|
2024 |
01/22/2024 |
276,500 |
231,525 |
25,467 |
0 |
25,467 |
|
2021 |
04/09/2021 |
220,500 |
220,500 |
24,255 |
0 |
24,255 |
|
2020 |
02/21/2020 |
1,554 |
1,554 |
170 |
0 |
170 |
| Property Building Permit History | |||||||||||
|---|---|---|---|---|---|---|---|---|---|---|---|
| Issued | Permit # | Provided by | Bldg # | Description | Est Construction Cost | Status | |||||
| No Building Permit records returned. | |||||||||||
| Click button on building number to access detailed information: | ||||||
|---|---|---|---|---|---|---|
| Bldg # | Vacant/Improved Land | Bldg Description | Year Built | SqFt | # Stories | |
|
1 |
Improved |
Ranch 1 Story |
2020 |
1,810 |
1 Stories |
|