|
|
|
| Larry Stein Oklahoma County Assessor (405) 713-1200 - Public Access System |
|
|
|
|
|
|
| Real Property Display - Screen Produced 4/4/2026 6:48:27 PM | ||||
|---|---|---|---|---|
| Account: R216381320 | Type: Residential | Location: |
10553 SE 23RD ST |
|
| Building Name/Occupant: |
|
MIDWEST CITY |
||
| Owner Name 1: | RUBINO SHELBY ROSE |
Parcel PIN#: |
1226-21-638-1320 |
|
| Owner Name 2: | 1/4 section #: |
1226 |
||
| Owner Name 3: | Parent Acct: |
1226-15-595-1905 |
||
| Billing Address: | 10553 SE 23RD ST | Tax District: |
|
|
| City, State, Zip | MIDWEST CITY, OK 73130-6061 | School System: |
Choctaw #4 |
|
|
Country: (If noted) |
Land Size: |
0.1692 Acres |
||
|
Land Value: 48,200 |
|
|||
|
Sect 7-T11N-R1W Qtr SE |
TURTLEWOOD 6TH
Block
010
Lot
020
|
|||
| Full Legal Description: TURTLEWOOD 6TH BLK 010 LOT 020 |
| Photo & Sketch (if available) | Comp Sales (ordered by relevancy) |
|
||||||||||||||||||
|
||||||||||||||||||||
| Value History (*The County Treasurer 405-713-1300 posts & collects actual tax amounts. Contact information HERE) | |||||||||||||
|---|---|---|---|---|---|---|---|---|---|---|---|---|---|
| Year | Market Value | Taxable Mkt Value | Gross Assessed | Exemption | Net Assessed | Millage | Est. Tax | Tax Savings | |||||
|
2026 |
268,000 |
268,000 |
29,480 |
1,000 |
28,480 |
127.03 |
$3,618 |
$127 |
|||||
|
2025 |
260,000 |
197,857 |
21,763 |
21,763 |
0 |
127.03 |
$0 |
$3,633 |
|||||
|
2024 |
256,000 |
192,095 |
21,130 |
21,130 |
0 |
127.00 |
$0 |
$3,576 |
|||||
|
2023 |
186,500 |
186,500 |
20,515 |
0 |
20,515 |
128.50 |
$2,636 |
$0 |
|||||
|
2022 |
186,500 |
186,500 |
20,515 |
0 |
20,515 |
127.22 |
$2,610 |
$0 |
|||||
| Property Account Status/Adjustments/Exemptions | ||
|---|---|---|
| Account # | Exemption Description | Amount |
|
R216381320 |
Homestead |
1,000 |
| Property Deed Transaction History (Recorded in the County Clerk's Office) | ||||||||||
|---|---|---|---|---|---|---|---|---|---|---|
| Date | Type | Book | Page | Price | Grantor | Grantee | ||||
|
12/2/2025 |
|
Deeds |
$240,000 |
DIVINE ANDRALYNN MELISSA |
RUBINO SHELBY ROSE |
|||||
|
10/15/2025 |
|
Deeds |
$0 |
PONDER ANDRALYNN |
DIVINE ANDRALYNN MELISSA |
|||||
|
10/15/2025 |
|
Deeds |
$0 |
DIVINE ANDRALYNN MELISSA |
DIVINE ANDRALYNN MELISSA |
|||||
|
10/16/2020 |
|
Deeds |
$184,500 |
TURTLEWOOD PROPERTIES LLC |
PONDER ANDRALYNN |
|||||
|
5/24/2019 |
|
Mult Parcel |
$2,331,000 |
FARZANEH DEVELOPMENT LLLP |
TURTLEWOOD PROPERTIES LLC |
|||||
| Last Mailed Notice of Value (N.O.V.) Information/History | ||||||
|---|---|---|---|---|---|---|
| Year | Date | Market Value | Taxable Market Value | Gross Assessed | Exemption | Net Assessed |
|
2026 |
02/06/2026 |
268,000 |
268,000 |
29,480 |
0 |
29,480 |
|
2025 |
01/31/2025 |
260,000 |
197,857 |
21,763 |
21,763 |
0 |
|
2024 |
01/22/2024 |
256,000 |
195,825 |
21,540 |
0 |
21,540 |
|
2021 |
02/24/2021 |
186,500 |
186,500 |
20,515 |
0 |
20,515 |
|
2020 |
02/21/2020 |
1,554 |
1,554 |
170 |
0 |
170 |
| Property Building Permit History | |||||||||||
|---|---|---|---|---|---|---|---|---|---|---|---|
| Issued | Permit # | Provided by | Bldg # | Description | Est Construction Cost | Status | |||||
| No Building Permit records returned. | |||||||||||
| Click button on building number to access detailed information: | ||||||
|---|---|---|---|---|---|---|
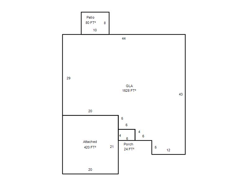
| Bldg # | Vacant/Improved Land | Bldg Description | Year Built | SqFt | # Stories | |
|
1 |
Improved |
Ranch 1 Story |
2020 |
1,528 |
1 Stories |
|