|
|
|
| Larry Stein Oklahoma County Assessor (405) 713-1200 - Public Access System |
|
|
|
|
|
|
| Real Property Display - Screen Produced 4/4/2026 6:48:26 PM | ||||
|---|---|---|---|---|
| Account: R216381460 | Type: Residential | Location: |
10528 SE 23RD ST |
|
| Building Name/Occupant: |
|
MIDWEST CITY |
||
| Owner Name 1: | SCHNEIDER CHRISTINA M |
Parcel PIN#: |
1226-21-638-1460 |
|
| Owner Name 2: | 1/4 section #: |
1226 |
||
| Owner Name 3: | Parent Acct: |
1226-15-595-1905 |
||
| Billing Address: | 10528 SE 23RD ST | Tax District: |
|
|
| City, State, Zip | MIDWEST CITY, OK 73130 | School System: |
Choctaw #4 |
|
|
Country: (If noted) |
Land Size: |
0.1389 Acres |
||
|
Land Value: 40,838 |
|
|||
|
Sect 7-T11N-R1W Qtr SE |
TURTLEWOOD 6TH
Block
011
Lot
008
|
|||
| Full Legal Description: TURTLEWOOD 6TH BLK 011 LOT 008 |
| Photo & Sketch (if available) | Comp Sales (ordered by relevancy) |
|
||||||||||||||||||
|
||||||||||||||||||||
| Value History (*The County Treasurer 405-713-1300 posts & collects actual tax amounts. Contact information HERE) | |||||||||||||
|---|---|---|---|---|---|---|---|---|---|---|---|---|---|
| Year | Market Value | Taxable Mkt Value | Gross Assessed | Exemption | Net Assessed | Millage | Est. Tax | Tax Savings | |||||
|
2026 |
269,500 |
211,988 |
23,318 |
1,000 |
22,318 |
127.03 |
$2,835 |
$931 |
|||||
|
2025 |
262,000 |
205,814 |
22,639 |
1,000 |
21,639 |
127.03 |
$2,749 |
$912 |
|||||
|
2024 |
259,000 |
199,820 |
21,980 |
1,000 |
20,980 |
127.00 |
$2,664 |
$954 |
|||||
|
2023 |
194,000 |
194,000 |
21,340 |
1,000 |
20,340 |
128.50 |
$2,614 |
$129 |
|||||
|
2022 |
194,000 |
194,000 |
21,340 |
1,000 |
20,340 |
127.22 |
$2,588 |
$127 |
|||||
| Property Account Status/Adjustments/Exemptions | ||
|---|---|---|
| Account # | Exemption Description | Amount |
|
R216381460 |
3% Cap Homestead |
0 |
|
R216381460 |
Homestead |
1,000 |
| Property Deed Transaction History (Recorded in the County Clerk's Office) | |||||||
|---|---|---|---|---|---|---|---|
| Date | Type | Book | Page | Price | Grantor | Grantee | |
|
12/4/2020 |
|
Deeds |
$187,000 |
TURTLEWOOD PROPERTIES LLC |
SCHNEIDER CHRISTINA M |
||
|
5/24/2019 |
|
Mult Parcel |
$2,331,000 |
FARZANEH DEVELOPMENT LLLP |
TURTLEWOOD PROPERTIES LLC |
||
|
10/30/2018 |
|
Hmstd Off & |
$0 |
SHAZ INVESTMENT INC |
FARZANEH DEVELOPMENT LLLP |
||
| Last Mailed Notice of Value (N.O.V.) Information/History | ||||||
|---|---|---|---|---|---|---|
| Year | Date | Market Value | Taxable Market Value | Gross Assessed | Exemption | Net Assessed |
|
2026 |
02/06/2026 |
269,500 |
211,988 |
23,318 |
1,000 |
22,318 |
|
2025 |
01/31/2025 |
262,000 |
205,814 |
22,639 |
1,000 |
21,639 |
|
2024 |
01/22/2024 |
259,000 |
199,820 |
21,980 |
1,000 |
20,980 |
|
2021 |
04/09/2021 |
194,000 |
194,000 |
21,340 |
0 |
21,340 |
|
2020 |
02/21/2020 |
1,554 |
1,554 |
170 |
0 |
170 |
| Property Building Permit History | ||||||
|---|---|---|---|---|---|---|
| Issued | Permit # | Provided by | Bldg # | Description | Est Construction Cost | Status |
|
4/23/2020 |
20-00000380 |
|
|
Main Dwellin |
117,000 |
Inactive |
| Click button on building number to access detailed information: | ||||||
|---|---|---|---|---|---|---|
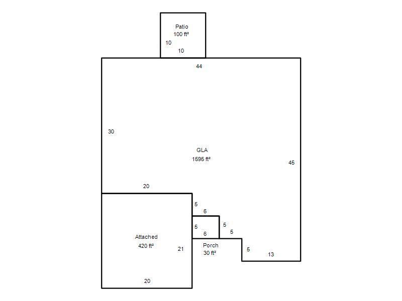
| Bldg # | Vacant/Improved Land | Bldg Description | Year Built | SqFt | # Stories | |
|
1 |
Improved |
Ranch 1 Story |
2020 |
1,595 |
1 Stories |
|