|
|
|
| Larry Stein Oklahoma County Assessor (405) 713-1200 - Public Access System |
|
|
|
|
|
|
| Real Property Display - Screen Produced 3/14/2026 8:09:45 AM | ||||
|---|---|---|---|---|
| Account: R142401100 | Type: Residential | Location: |
5004 SE 51ST ST |
|
| Building Name/Occupant: |
|
OKLAHOMA CITY |
||
| Owner Name 1: | WINEBERRY SANDRA K & NATHANIEL |
Parcel PIN#: |
1477-14-240-1100 |
|
| Owner Name 2: | 1/4 section #: |
1477 |
||
| Owner Name 3: | Parent Acct: |
|
||
| Billing Address: | 5004 SE 51ST ST | Tax District: |
|
|
| City, State, Zip | OKLAHOMA CITY, OK 73135-4120 | School System: |
Mid-Del #52 |
|
|
Country: (If noted) |
Land Size: |
0.2570 Acres |
||
|
Land Value: 35,906 |
|
|||
|
Sect 20-T11N-R2W Qtr NE |
FROLICH MEADOWS SEC 3
Block
015
Lot
000
|
|||
| Full Legal Description: FROLICH MEADOWS SEC 3 015 000 LOT 11 & W/2 LOT 12 |
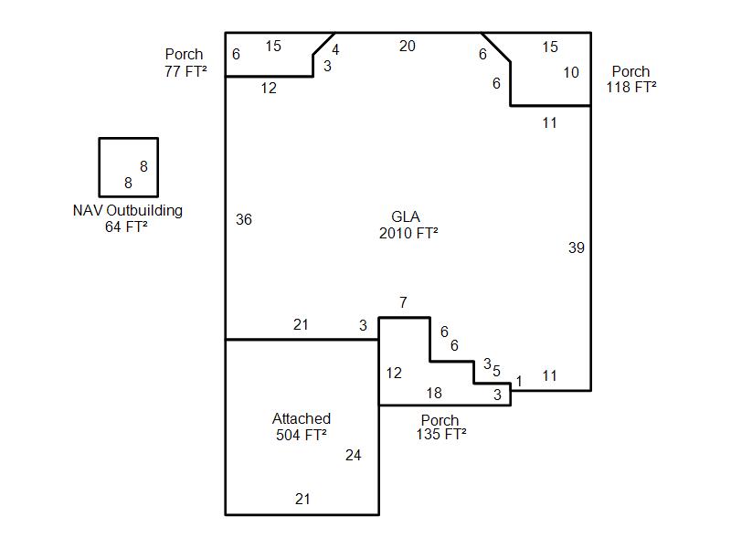
| Photo & Sketch (if available) | Comp Sales (ordered by relevancy) |
|
||||||||||||||||||
|
||||||||||||||||||||
| Value History (*The County Treasurer 405-713-1300 posts & collects actual tax amounts. Contact information HERE) | |||||||||||||
|---|---|---|---|---|---|---|---|---|---|---|---|---|---|
| Year | Market Value | Taxable Mkt Value | Gross Assessed | Exemption | Net Assessed | Millage | Est. Tax | Tax Savings | |||||
|
2025 |
260,500 |
199,973 |
21,996 |
1,000 |
20,996 |
126.46 |
$2,655 |
$968 |
|||||
|
2024 |
254,500 |
194,149 |
21,356 |
1,000 |
20,356 |
128.51 |
$2,616 |
$982 |
|||||
|
2023 |
244,000 |
188,495 |
20,733 |
1,000 |
19,733 |
122.94 |
$2,426 |
$874 |
|||||
|
2022 |
210,500 |
183,005 |
20,130 |
1,000 |
19,130 |
122.11 |
$2,336 |
$491 |
|||||
|
2021 |
189,500 |
177,675 |
19,544 |
1,000 |
18,544 |
124.74 |
$2,313 |
$287 |
|||||
| Property Account Status/Adjustments/Exemptions | ||
|---|---|---|
| Account # | Exemption Description | Amount |
|
R142401100 |
3% Cap Homestead |
0 |
|
R142401100 |
Homestead |
1,000 |
| Property Deed Transaction History (Recorded in the County Clerk's Office) | ||||||||||
|---|---|---|---|---|---|---|---|---|---|---|
| Date | Type | Book | Page | Price | Grantor | Grantee | ||||
|
9/16/2013 |
|
Deeds |
$150,000 |
HAYES DANITA R TRS HAYES DANITA R REV TRUST |
WINEBERRY SANDRA K & NATHANIEL |
|||||
|
5/2/2002 |
|
Deeds |
$0 |
WORRELL DANITA R |
HAYES DANITA R TRS HAYES DANITA R REV TRUST |
|||||
|
8/6/1999 |
|
Deeds |
$7,000 |
ALLENSWORTH BESSIE R |
WORRELL DANITA R |
|||||
|
8/6/1999 |
|
Deeds |
$0 |
WORRELL DANITA R |
WORRELL DANITA R |
|||||
|
8/25/1997 |
|
Historical |
$0 |
WORRELL HUBERT R & DANITA R |
ALLENSWORTH BESSIE R |
|||||
| Last Mailed Notice of Value (N.O.V.) Information/History | ||||||||
|---|---|---|---|---|---|---|---|---|
| Year | Date | Market Value | Taxable Market Value | Gross Assessed | Exemption | Net Assessed | ||
|
2026 |
02/06/2026 |
267,500 |
205,972 |
22,656 |
1,000 |
21,656 |
||
|
2025 |
01/31/2025 |
260,500 |
199,973 |
21,996 |
1,000 |
20,996 |
||
|
2024 |
01/22/2024 |
254,500 |
194,149 |
21,356 |
1,000 |
20,356 |
||
|
2023 |
01/23/2023 |
244,000 |
188,495 |
20,733 |
1,000 |
19,733 |
||
|
2022 |
02/22/2022 |
210,500 |
183,005 |
20,130 |
1,000 |
19,130 |
||
| Property Building Permit History | ||||||
|---|---|---|---|---|---|---|
| Issued | Permit # | Provided by | Bldg # | Description | Est Construction Cost | Status |
|
8/23/1999 |
10236020 |
OKLAHOMA CITY |
1 |
Main Dwellin |
130,000 |
Inactive |
|
7/23/1999 |
10236019 |
OKLAHOMA CITY |
1 |
Other |
0 |
Inactive |
| Click button on building number to access detailed information: | ||||||
|---|---|---|---|---|---|---|
| Bldg # | Vacant/Improved Land | Bldg Description | Year Built | SqFt | # Stories | |
|
1 |
Improved |
Ranch 1 Story |
2000 |
2,010 |
1 Stories |
|