|
|
|
| Larry Stein Oklahoma County Assessor (405) 713-1200 - Public Access System |
|
|
|
|
|
|
| Real Property Display - Screen Produced 3/14/2026 8:12:58 AM | ||||
|---|---|---|---|---|
| Account: R142401240 | Type: Residential | Location: |
5017 MACKELMAN DR |
|
| Building Name/Occupant: |
|
OKLAHOMA CITY |
||
| Owner Name 1: | PETE AMBER |
Parcel PIN#: |
1477-14-240-1240 |
|
| Owner Name 2: | 1/4 section #: |
1477 |
||
| Owner Name 3: | Parent Acct: |
|
||
| Billing Address: | 5017 MACKELMAN DR | Tax District: |
|
|
| City, State, Zip | OKLAHOMA CITY, OK 73135-4149 | School System: |
Mid-Del #52 |
|
|
Country: (If noted) |
Land Size: |
0.1791 Acres |
||
|
Land Value: 27,768 |
|
|||
|
Sect 20-T11N-R2W Qtr NE |
FROLICH MEADOWS SEC 3
Block
016
Lot
011
|
|||
| Full Legal Description: FROLICH MEADOWS SEC 3 016 011 |
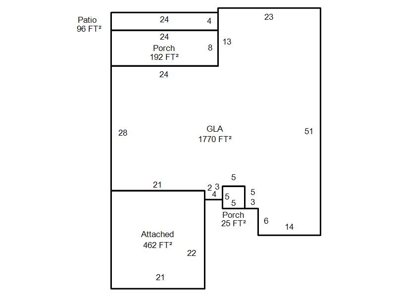
| Photo & Sketch (if available) | Comp Sales (ordered by relevancy) |
|
||||||||||||||||||
|
||||||||||||||||||||
| Value History (*The County Treasurer 405-713-1300 posts & collects actual tax amounts. Contact information HERE) | |||||||||||||
|---|---|---|---|---|---|---|---|---|---|---|---|---|---|
| Year | Market Value | Taxable Mkt Value | Gross Assessed | Exemption | Net Assessed | Millage | Est. Tax | Tax Savings | |||||
|
2025 |
237,500 |
237,500 |
26,125 |
1,000 |
25,125 |
126.46 |
$3,177 |
$126 |
|||||
|
2024 |
232,500 |
192,049 |
21,124 |
0 |
21,124 |
128.51 |
$2,715 |
$572 |
|||||
|
2023 |
223,000 |
182,904 |
20,119 |
0 |
20,119 |
122.94 |
$2,473 |
$542 |
|||||
|
2022 |
192,500 |
174,195 |
19,161 |
0 |
19,161 |
122.11 |
$2,340 |
$246 |
|||||
|
2021 |
173,500 |
165,900 |
18,249 |
0 |
18,249 |
124.74 |
$2,276 |
$104 |
|||||
| Property Account Status/Adjustments/Exemptions | ||
|---|---|---|
| Account # | Exemption Description | Amount |
|
R142401240 |
3% Cap Homestead |
0 |
|
R142401240 |
Homestead |
1,000 |
| Property Deed Transaction History (Recorded in the County Clerk's Office) | ||||||||||
|---|---|---|---|---|---|---|---|---|---|---|
| Date | Type | Book | Page | Price | Grantor | Grantee | ||||
|
7/3/2024 |
|
Deeds |
$235,000 |
WILLIAMS CURTIS LEE JR & MONICA SANTOS |
PETE AMBER |
|||||
|
6/7/2002 |
|
Deeds |
$130,500 |
BOLDMAN BROTHERS CONSTRUCTION INC |
WILLIAMS CURTIS LEE JR & MONICA SANTOS |
|||||
|
8/7/2001 |
|
Deeds |
$0 |
WHITESIDE MARCIA J |
SAGE INVESTMENT COMPANY LLC |
|||||
|
8/7/2001 |
|
Deeds |
$9,500 |
SAGE INVESTMENT COMPANY LLC |
BOLDMAN BROTHERS CONSTRUCTION INC |
|||||
|
12/17/1998 |
|
Historical |
$0 |
WHITESIDE JACK H REV TRUST #2 |
SAGE INVESTMENT COMPANY LLC |
|||||
| Last Mailed Notice of Value (N.O.V.) Information/History | ||||||||
|---|---|---|---|---|---|---|---|---|
| Year | Date | Market Value | Taxable Market Value | Gross Assessed | Exemption | Net Assessed | ||
|
2026 |
02/06/2026 |
243,500 |
243,500 |
26,785 |
1,000 |
25,785 |
||
|
2025 |
01/31/2025 |
237,500 |
237,500 |
26,125 |
1,000 |
25,125 |
||
|
2024 |
01/22/2024 |
232,500 |
192,049 |
21,124 |
0 |
21,124 |
||
|
2023 |
01/23/2023 |
223,000 |
182,904 |
20,119 |
0 |
20,119 |
||
|
2022 |
02/22/2022 |
192,500 |
174,195 |
19,161 |
0 |
19,161 |
||
| Property Building Permit History | ||||||
|---|---|---|---|---|---|---|
| Issued | Permit # | Provided by | Bldg # | Description | Est Construction Cost | Status |
|
8/14/2001 |
10236044 |
OKLAHOMA CITY |
1 |
Main Dwellin |
128,000 |
Inactive |
| Click button on building number to access detailed information: | ||||||
|---|---|---|---|---|---|---|
| Bldg # | Vacant/Improved Land | Bldg Description | Year Built | SqFt | # Stories | |
|
1 |
Improved |
Ranch 1 Story |
2002 |
1,770 |
1 Stories |
|