|
|
|
| Larry Stein Oklahoma County Assessor (405) 713-1200 - Public Access System |
|
|
|
|
|
|
| Real Property Display - Screen Produced 3/13/2026 2:42:20 AM | ||||
|---|---|---|---|---|
| Account: R216681280 | Type: Residential | Location: |
14109 SE 77TH PL |
|
| Building Name/Occupant: |
|
OKLAHOMA CITY |
||
| Owner Name 1: | MCDONALD BRANDI |
Parcel PIN#: |
1340-21-668-1280 |
|
| Owner Name 2: | 1/4 section #: |
1340 |
||
| Owner Name 3: | Parent Acct: |
1340-16-852-5900 |
||
| Billing Address: | 14109 SE 77TH PL | Tax District: |
|
|
| City, State, Zip | OKLAHOMA CITY, OK 73150-2007 | School System: |
Choctaw #4 |
|
|
Country: (If noted) |
Land Size: |
1.0300 Acres |
||
|
Land Value: 79,752 |
|
|||
|
Sect 35-T11N-R1W Qtr NW |
DEERFIELD WEST SEC 2
Block
019
Lot
007
|
|||
| Full Legal Description: DEERFIELD WEST SEC 2 BLK 019 LOT 007 |
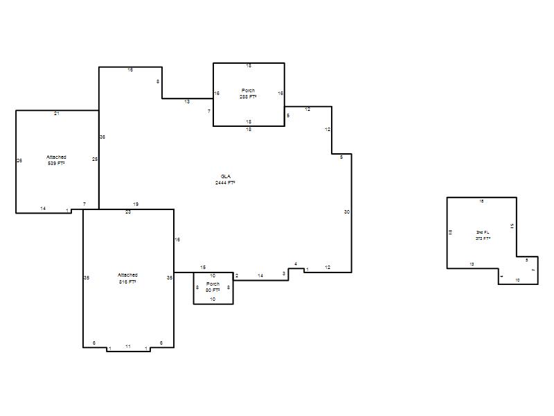
| Photo & Sketch (if available) | Comp Sales (ordered by relevancy) |
|
||||||||||||||||||
|
||||||||||||||||||||
| Value History (*The County Treasurer 405-713-1300 posts & collects actual tax amounts. Contact information HERE) | |||||||||||||
|---|---|---|---|---|---|---|---|---|---|---|---|---|---|
| Year | Market Value | Taxable Mkt Value | Gross Assessed | Exemption | Net Assessed | Millage | Est. Tax | Tax Savings | |||||
|
2025 |
709,000 |
709,000 |
77,990 |
0 |
77,990 |
132.37 |
$10,324 |
$0 |
|||||
|
2024 |
70,000 |
70,000 |
7,700 |
0 |
7,700 |
131.28 |
$1,011 |
$0 |
|||||
|
2023 |
70,000 |
70,000 |
7,700 |
0 |
7,700 |
131.88 |
$1,015 |
$0 |
|||||
|
2022 |
2,514 |
2,514 |
276 |
0 |
276 |
130.63 |
$36 |
$0 |
|||||
|
2021 |
2,514 |
2,514 |
276 |
0 |
276 |
129.79 |
$36 |
$0 |
|||||
| Property Account Status/Adjustments/Exemptions | ||
|---|---|---|
| Account # | Exemption Description | Amount |
|
R216681280 |
3% Cap Homestead |
0 |
|
R216681280 |
Homestead |
1,000 |
| Property Deed Transaction History (Recorded in the County Clerk's Office) | |||||||
|---|---|---|---|---|---|---|---|
| Date | Type | Book | Page | Price | Grantor | Grantee | |
|
12/3/2025 |
|
Hmstd Off & |
$0 |
MCDONALD BRANDI |
MCDONALD BRANDI |
||
|
8/15/2024 |
|
Deeds |
$710,000 |
TRAILS END HOMES INC |
MCDONALD BRANDI |
||
|
8/16/2023 |
|
Other |
$0 |
MCDONALD BRANDI S |
TRAILS END HOMES INC |
||
|
1/19/2022 |
|
Deeds |
$70,000 |
RIDGEDALE LAND INC |
MCDONALD BRANDI S |
||
|
6/28/2018 |
|
Hmstd Off & |
$0 |
SHUMWAY DALE & KATHY |
RIDGEDALE LAND INC |
||
| Last Mailed Notice of Value (N.O.V.) Information/History | ||||||
|---|---|---|---|---|---|---|
| Year | Date | Market Value | Taxable Market Value | Gross Assessed | Exemption | Net Assessed |
|
2025 |
01/31/2025 |
709,000 |
709,000 |
77,990 |
0 |
77,990 |
|
2023 |
01/23/2023 |
70,000 |
70,000 |
7,700 |
0 |
7,700 |
|
2020 |
02/21/2020 |
2,514 |
2,514 |
276 |
0 |
276 |
| Property Building Permit History | ||||||
|---|---|---|---|---|---|---|
| Issued | Permit # | Provided by | Bldg # | Description | Est Construction Cost | Status |
|
12/5/2023 |
BLDR-2023-06941 |
|
1 |
Main Dwellin |
650,000 |
Inactive |
| Click button on building number to access detailed information: | ||||||
|---|---|---|---|---|---|---|
| Bldg # | Vacant/Improved Land | Bldg Description | Year Built | SqFt | # Stories | |
|
1 |
Improved |
1½ Story Fin |
2023 |
2,817 |
1.5 Stories |
|