|
|
|
| Larry Stein Oklahoma County Assessor (405) 713-1200 - Public Access System |
|
|
|
|
|
|
| Real Property Display - Screen Produced 3/14/2026 7:59:14 AM | ||||
|---|---|---|---|---|
| Account: R148641360 | Type: Residential | Location: |
5313 MACKELMAN DR |
|
| Building Name/Occupant: |
|
OKLAHOMA CITY |
||
| Owner Name 1: | BRIDGES JERRY L |
Parcel PIN#: |
1478-14-864-1360 |
|
| Owner Name 2: | 1/4 section #: |
1478 |
||
| Owner Name 3: | Parent Acct: |
|
||
| Billing Address: | 5313 MACKELMAN DR | Tax District: |
|
|
| City, State, Zip | OKLAHOMA CITY, OK 73135-4321 | School System: |
Mid-Del #52 |
|
|
Country: (If noted) |
Land Size: |
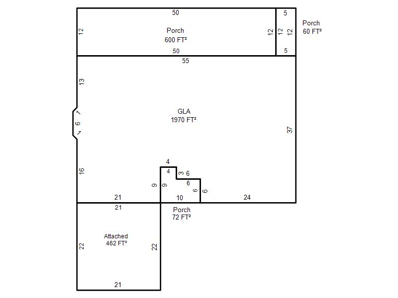
0.2073 Acres |
||
|
Land Value: 39,190 |
|
|||
|
Sect 20-T11N-R2W Qtr SE |
FROLICH MEADOWS SEC 4
Block
006
Lot
002
|
|||
| Full Legal Description: FROLICH MEADOWS SEC 4 006 002 |
| Photo & Sketch (if available) | Comp Sales (ordered by relevancy) |
|
||||||||||||||||||
|
||||||||||||||||||||
| Value History (*The County Treasurer 405-713-1300 posts & collects actual tax amounts. Contact information HERE) | |||||||||||||
|---|---|---|---|---|---|---|---|---|---|---|---|---|---|
| Year | Market Value | Taxable Mkt Value | Gross Assessed | Exemption | Net Assessed | Millage | Est. Tax | Tax Savings | |||||
|
2025 |
224,500 |
166,355 |
18,298 |
1,000 |
17,298 |
126.46 |
$2,188 |
$935 |
|||||
|
2024 |
218,500 |
161,510 |
17,765 |
1,000 |
16,765 |
128.51 |
$2,155 |
$934 |
|||||
|
2023 |
208,000 |
156,806 |
17,248 |
1,000 |
16,248 |
122.94 |
$1,998 |
$815 |
|||||
|
2022 |
178,000 |
152,239 |
16,745 |
1,000 |
15,745 |
122.11 |
$1,923 |
$468 |
|||||
|
2021 |
158,500 |
147,805 |
16,258 |
1,000 |
15,258 |
124.74 |
$1,903 |
$271 |
|||||
| Property Account Status/Adjustments/Exemptions | ||
|---|---|---|
| Account # | Exemption Description | Amount |
|
R148641360 |
Homestead |
1,000 |
|
R148641360 |
3% Cap Homestead |
0 |
| Property Deed Transaction History (Recorded in the County Clerk's Office) | |||||||
|---|---|---|---|---|---|---|---|
| Date | Type | Book | Page | Price | Grantor | Grantee | |
|
5/22/2003 |
|
Deeds |
$0 |
BRIDGES JERRY L & MARION |
BRIDGES JERRY L |
||
|
12/20/1993 |
|
Historical |
$85,000 |
NORTHGRAVES DEBORAH & JEFFREY |
BRIDGES JERRY L & MARION |
||
|
12/22/1987 |
|
Historical |
$85,000 |
CUNNINGHAM WM A & FRANCES C |
NORTHGRAVES DEBORAH & JEFFREY |
||
|
4/1/1979 |
|
Historical |
$0 |
|
CUNNINGHAM WM A & FRANCES C |
||
| Last Mailed Notice of Value (N.O.V.) Information/History | ||||||||
|---|---|---|---|---|---|---|---|---|
| Year | Date | Market Value | Taxable Market Value | Gross Assessed | Exemption | Net Assessed | ||
|
2026 |
02/06/2026 |
230,500 |
171,345 |
18,847 |
1,000 |
17,847 |
||
|
2025 |
01/31/2025 |
224,500 |
166,355 |
18,298 |
1,000 |
17,298 |
||
|
2024 |
01/22/2024 |
218,500 |
161,510 |
17,765 |
1,000 |
16,765 |
||
|
2023 |
01/23/2023 |
208,000 |
156,806 |
17,248 |
1,000 |
16,248 |
||
|
2022 |
02/22/2022 |
178,000 |
152,239 |
16,745 |
1,000 |
15,745 |
||
| Property Building Permit History | ||||||
|---|---|---|---|---|---|---|
| Issued | Permit # | Provided by | Bldg # | Description | Est Construction Cost | Status |
|
7/14/1999 |
10243433 |
OKLAHOMA CITY |
1 |
Remodeled |
18,000 |
Inactive |
| Click button on building number to access detailed information: | ||||||
|---|---|---|---|---|---|---|
| Bldg # | Vacant/Improved Land | Bldg Description | Year Built | SqFt | # Stories | |
|
1 |
Improved |
Ranch 1 Story |
1976 |
1,970 |
1 Stories |
|