|
|
|
| Larry Stein Oklahoma County Assessor (405) 713-1200 - Public Access System |
|
|
|
|
|
|
| Real Property Display - Screen Produced 3/14/2026 6:36:04 AM | ||||
|---|---|---|---|---|
| Account: R149011390 | Type: Residential | Location: |
5400 RYAN DR |
|
| Building Name/Occupant: |
|
OKLAHOMA CITY |
||
| Owner Name 1: | COLBERT PRESTON L |
Parcel PIN#: |
1478-14-901-1390 |
|
| Owner Name 2: | 1/4 section #: |
1478 |
||
| Owner Name 3: | Parent Acct: |
|
||
| Billing Address: | 5400 RYAN DR | Tax District: |
|
|
| City, State, Zip | OKLAHOMA CITY, OK 73135-4310 | School System: |
Mid-Del #52 |
|
|
Country: (If noted) |
Land Size: |
0.1928 Acres |
||
|
Land Value: 30,156 |
|
|||
|
Sect 20-T11N-R2W Qtr SE |
FROLICH MEADOWS SEC 5
Block
002
Lot
011
|
|||
| Full Legal Description: FROLICH MEADOWS SEC 5 002 011 |
| Photo & Sketch (if available) | Comp Sales (ordered by relevancy) |
|
||||||||||||||||||
|
||||||||||||||||||||
| Value History (*The County Treasurer 405-713-1300 posts & collects actual tax amounts. Contact information HERE) | |||||||||||||
|---|---|---|---|---|---|---|---|---|---|---|---|---|---|
| Year | Market Value | Taxable Mkt Value | Gross Assessed | Exemption | Net Assessed | Millage | Est. Tax | Tax Savings | |||||
|
2025 |
218,000 |
164,614 |
18,107 |
1,000 |
17,107 |
126.46 |
$2,163 |
$869 |
|||||
|
2024 |
212,000 |
159,820 |
17,580 |
1,000 |
16,580 |
128.51 |
$2,131 |
$866 |
|||||
|
2023 |
202,500 |
155,166 |
17,068 |
1,000 |
16,068 |
122.94 |
$1,975 |
$763 |
|||||
|
2022 |
172,000 |
150,647 |
16,570 |
1,000 |
15,570 |
122.11 |
$1,901 |
$409 |
|||||
|
2021 |
156,500 |
146,260 |
16,088 |
1,000 |
15,088 |
124.74 |
$1,882 |
$265 |
|||||
| Property Account Status/Adjustments/Exemptions | ||
|---|---|---|
| Account # | Exemption Description | Amount |
|
R149011390 |
5% Capped Account |
0 |
| Property Deed Transaction History (Recorded in the County Clerk's Office) | |||||||
|---|---|---|---|---|---|---|---|
| Date | Type | Book | Page | Price | Grantor | Grantee | |
|
1/22/2026 |
|
Deeds |
$0 |
WINTERS DANNY J |
WINTERS DANNY J |
||
|
1/22/2026 |
|
Deeds |
$208,000 |
WINTERS DANNY J |
COLBERT PRESTON L |
||
|
7/19/2002 |
|
Deeds |
$116,000 |
MOTLEY WILLIAM H JR & BETTY J |
WINTERS DANNY J |
||
|
1/30/1996 |
|
Historical |
$96,000 |
SMITH LARRY G & STELLA M |
MOTLEY WILLIAM H JR & BETTY J |
||
|
10/1/1979 |
|
Historical |
$0 |
|
SMITH LARRY G & STELLA M |
||
| Last Mailed Notice of Value (N.O.V.) Information/History | ||||||||
|---|---|---|---|---|---|---|---|---|
| Year | Date | Market Value | Taxable Market Value | Gross Assessed | Exemption | Net Assessed | ||
|
2026 |
02/06/2026 |
222,500 |
169,552 |
18,650 |
1,000 |
17,650 |
||
|
2025 |
01/31/2025 |
218,000 |
164,614 |
18,107 |
1,000 |
17,107 |
||
|
2024 |
01/22/2024 |
212,000 |
159,820 |
17,580 |
1,000 |
16,580 |
||
|
2023 |
01/23/2023 |
202,500 |
155,166 |
17,068 |
1,000 |
16,068 |
||
|
2022 |
02/22/2022 |
172,000 |
150,647 |
16,570 |
1,000 |
15,570 |
||
| Property Building Permit History | |||||||||||
|---|---|---|---|---|---|---|---|---|---|---|---|
| Issued | Permit # | Provided by | Bldg # | Description | Est Construction Cost | Status | |||||
| No Building Permit records returned. | |||||||||||
| Click button on building number to access detailed information: | ||||||
|---|---|---|---|---|---|---|
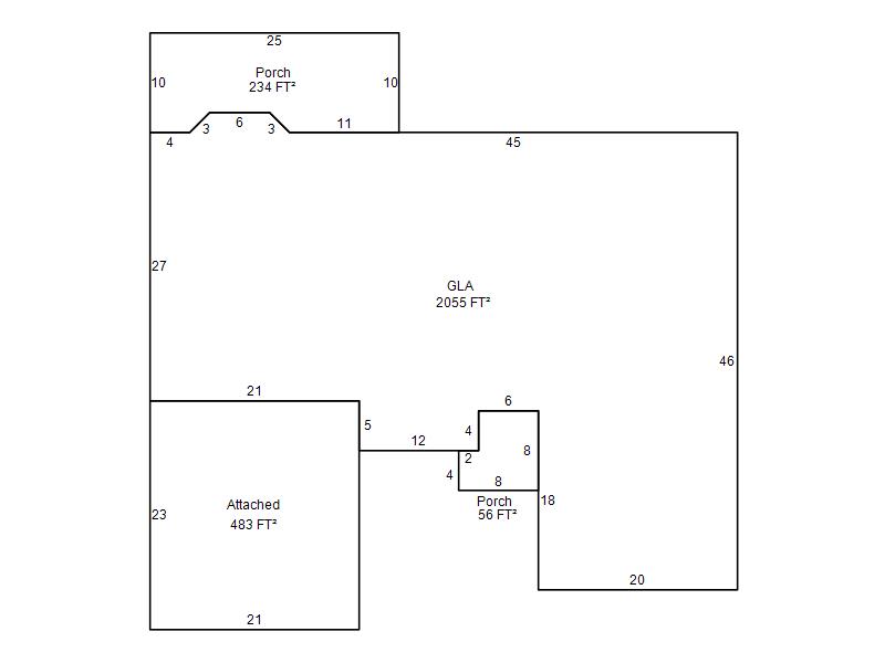
| Bldg # | Vacant/Improved Land | Bldg Description | Year Built | SqFt | # Stories | |
|
1 |
Improved |
Ranch 1 Story |
1977 |
2,055 |
1 Stories |
|