|
|
|
| Larry Stein Oklahoma County Assessor (405) 713-1200 - Public Access System |
|
|
|
|
|
|
| Real Property Display - Screen Produced 3/14/2026 6:36:02 AM | ||||
|---|---|---|---|---|
| Account: R149012200 | Type: Residential | Location: |
5201 SE 55TH ST |
|
| Building Name/Occupant: |
|
OKLAHOMA CITY |
||
| Owner Name 1: | KNIPPEL ERIN ELIZABETH |
Parcel PIN#: |
1478-14-901-2200 |
|
| Owner Name 2: | 1/4 section #: |
1478 |
||
| Owner Name 3: | Parent Acct: |
|
||
| Billing Address: | 5201 SE 55TH ST | Tax District: |
|
|
| City, State, Zip | DEL CITY, OK 73135 | School System: |
Mid-Del #52 |
|
|
Country: (If noted) |
Land Size: |
0.1928 Acres |
||
|
Land Value: 30,156 |
|
|||
|
Sect 20-T11N-R2W Qtr SE |
FROLICH MEADOWS SEC 5
Block
008
Lot
019
|
|||
| Full Legal Description: FROLICH MEADOWS SEC 5 008 019 |
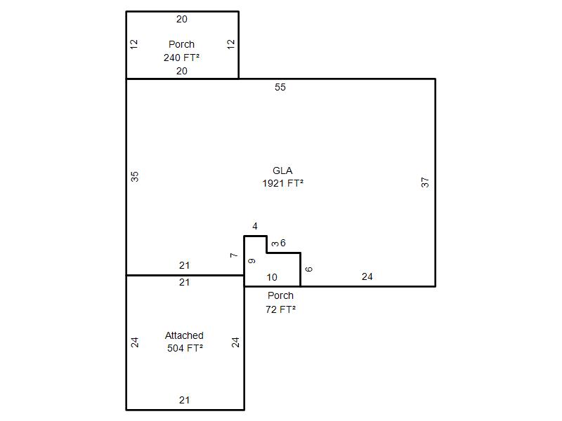
| Photo & Sketch (if available) | Comp Sales (ordered by relevancy) |
|
||||||||||||||||||
|
||||||||||||||||||||
| Value History (*The County Treasurer 405-713-1300 posts & collects actual tax amounts. Contact information HERE) | |||||||||||||
|---|---|---|---|---|---|---|---|---|---|---|---|---|---|
| Year | Market Value | Taxable Mkt Value | Gross Assessed | Exemption | Net Assessed | Millage | Est. Tax | Tax Savings | |||||
|
2025 |
220,500 |
177,829 |
19,560 |
1,000 |
18,560 |
126.46 |
$2,347 |
$720 |
|||||
|
2024 |
214,500 |
172,650 |
18,991 |
1,000 |
17,991 |
128.51 |
$2,312 |
$720 |
|||||
|
2023 |
205,500 |
167,622 |
18,438 |
1,000 |
17,438 |
122.94 |
$2,144 |
$635 |
|||||
|
2022 |
177,000 |
162,740 |
17,901 |
1,000 |
16,901 |
122.11 |
$2,064 |
$314 |
|||||
|
2021 |
158,000 |
158,000 |
17,380 |
1,000 |
16,380 |
124.74 |
$2,043 |
$125 |
|||||
| Property Account Status/Adjustments/Exemptions | ||
|---|---|---|
| Account # | Exemption Description | Amount |
|
R149012200 |
3% Cap Homestead |
0 |
|
R149012200 |
Homestead |
1,000 |
| Property Deed Transaction History (Recorded in the County Clerk's Office) | |||||||
|---|---|---|---|---|---|---|---|
| Date | Type | Book | Page | Price | Grantor | Grantee | |
|
6/26/2020 |
|
Deeds |
$165,000 |
RAMSEY CLEVELAND R |
KNIPPEL ERIN ELIZABETH |
||
|
8/8/2019 |
|
Deeds |
$0 |
RAMSEY CLEVELAND R & JANICE C |
RAMSEY CLEVELAND R |
||
|
8/8/2019 |
|
Deeds |
$0 |
RAMSEY CLEVELAND R |
RAMSEY CLEVELAND R |
||
|
5/14/1987 |
|
Historical |
$86,000 |
RACKLEY TONY & CHERYL A |
RAMSEY CLEVELAND R & JANICE C |
||
|
5/1/1985 |
|
Historical |
$95,000 |
|
RACKLEY TONY & CHERYL A |
||
| Last Mailed Notice of Value (N.O.V.) Information/History | ||||||||
|---|---|---|---|---|---|---|---|---|
| Year | Date | Market Value | Taxable Market Value | Gross Assessed | Exemption | Net Assessed | ||
|
2026 |
02/06/2026 |
227,500 |
183,163 |
20,147 |
1,000 |
19,147 |
||
|
2025 |
01/31/2025 |
220,500 |
177,829 |
19,560 |
1,000 |
18,560 |
||
|
2024 |
01/22/2024 |
214,500 |
172,650 |
18,991 |
1,000 |
17,991 |
||
|
2023 |
01/23/2023 |
205,500 |
167,622 |
18,438 |
1,000 |
17,438 |
||
|
2022 |
02/22/2022 |
177,000 |
162,740 |
17,901 |
1,000 |
16,901 |
||
| Property Building Permit History | |||||||||||
|---|---|---|---|---|---|---|---|---|---|---|---|
| Issued | Permit # | Provided by | Bldg # | Description | Est Construction Cost | Status | |||||
| No Building Permit records returned. | |||||||||||
| Click button on building number to access detailed information: | ||||||
|---|---|---|---|---|---|---|
| Bldg # | Vacant/Improved Land | Bldg Description | Year Built | SqFt | # Stories | |
|
1 |
Improved |
Ranch 1 Story |
1977 |
1,921 |
1 Stories |
|