|
|
|
| Larry Stein Oklahoma County Assessor (405) 713-1200 - Public Access System |
|
|
|
|
|
|
| Real Property Display - Screen Produced 4/1/2026 7:25:13 PM | ||||
|---|---|---|---|---|
| Account: R217751730 | Type: Residential | Location: |
4296 WINDING BROOK |
|
| Building Name/Occupant: |
|
HARRAH |
||
| Owner Name 1: | ROACH BRANDON DEAN |
Parcel PIN#: |
1051-21-775-1730 |
|
| Owner Name 2: | 1/4 section #: |
1051 |
||
| Owner Name 3: | Parent Acct: |
1051-26-713-7000 |
||
| Billing Address: | 4296 WINDING BROOK | Tax District: |
|
|
| City, State, Zip | HARRAH, OK 73045 | School System: |
Harrah #7 |
|
|
Country: (If noted) |
Land Size: |
0.4193 Acres |
||
|
Land Value: 56,267 |
|
|||
|
Sect 13-T11N-R1E Qtr SW |
RIVER MIST PH I
Block
005
Lot
003
|
|||
| Full Legal Description: RIVER MIST PH I BLK 005 LOT 003 |
| Photo & Sketch (if available) | Comp Sales (ordered by relevancy) |
|
||||||||||||||||||
|
||||||||||||||||||||
| Value History (*The County Treasurer 405-713-1300 posts & collects actual tax amounts. Contact information HERE) | |||||||||||||
|---|---|---|---|---|---|---|---|---|---|---|---|---|---|
| Year | Market Value | Taxable Mkt Value | Gross Assessed | Exemption | Net Assessed | Millage | Est. Tax | Tax Savings | |||||
|
2026 |
250,500 |
250,500 |
27,555 |
0 |
27,555 |
107.54 |
$2,963 |
$0 |
|||||
|
2025 |
251,000 |
251,000 |
27,610 |
0 |
27,610 |
107.54 |
$2,969 |
$0 |
|||||
|
2024 |
244,500 |
244,500 |
26,895 |
0 |
26,895 |
110.62 |
$2,975 |
$0 |
|||||
|
2023 |
2,384 |
2,384 |
262 |
0 |
262 |
97.88 |
$26 |
$0 |
|||||
|
2022 |
2,384 |
2,384 |
262 |
0 |
262 |
99.50 |
$26 |
$0 |
|||||
| Property Account Status/Adjustments/Exemptions | ||
|---|---|---|
| Account # | Exemption Description | Amount |
|
R217751730 |
5% Capped Account |
0 |
| Property Deed Transaction History (Recorded in the County Clerk's Office) | |||||||
|---|---|---|---|---|---|---|---|
| Date | Type | Book | Page | Price | Grantor | Grantee | |
|
1/9/2023 |
|
Deeds |
$223,000 |
RAUSCH COLEMAN HOMES OKC LLC |
ROACH BRANDON DEAN |
||
|
4/8/2021 |
|
Mult Parcel |
$3,017,500 |
DEQUASIE DEVELOPMENT LLC |
RAUSCH COLEMAN HOMES OKC LLC |
||
|
11/8/2018 |
|
Hmstd Off & |
$0 |
DEQUASIE JONES DEVELOPMENT LLC |
DEQUASIE DEVELOPMENT LLC |
||
| Last Mailed Notice of Value (N.O.V.) Information/History | ||||||
|---|---|---|---|---|---|---|
| Year | Date | Market Value | Taxable Market Value | Gross Assessed | Exemption | Net Assessed |
|
2025 |
01/31/2025 |
251,000 |
251,000 |
27,610 |
0 |
27,610 |
|
2024 |
01/22/2024 |
244,500 |
244,500 |
26,895 |
0 |
26,895 |
|
2021 |
02/24/2021 |
2,384 |
2,384 |
262 |
0 |
262 |
| Property Building Permit History | ||||||
|---|---|---|---|---|---|---|
| Issued | Permit # | Provided by | Bldg # | Description | Est Construction Cost | Status |
|
1/10/2023 |
2206097 |
|
1 |
Main Dwellin |
|
Inactive |
| Click button on building number to access detailed information: | ||||||
|---|---|---|---|---|---|---|
| Bldg # | Vacant/Improved Land | Bldg Description | Year Built | SqFt | # Stories | |
|
1 |
Improved |
Ranch 1 Story |
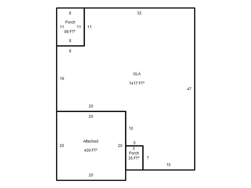
2022 |
1,417 |
1 Stories |
|