|
|
|
| Larry Stein Oklahoma County Assessor (405) 713-1200 - Public Access System |
|
|
|
|
|
|
| Real Property Display - Screen Produced 3/14/2026 6:37:43 AM | ||||
|---|---|---|---|---|
| Account: R149013120 | Type: Residential | Location: |
5013 SE 58TH ST |
|
| Building Name/Occupant: |
|
OKLAHOMA CITY |
||
| Owner Name 1: | JYLES HUGH LEE & SYLVIA O TRS |
Parcel PIN#: |
1478-14-901-3120 |
|
| Owner Name 2: | JYLES HUGH L & SYLVIA O REV TRUST | 1/4 section #: |
1478 |
|
| Owner Name 3: | Parent Acct: |
|
||
| Billing Address: | 5013 SE 58TH ST | Tax District: |
|
|
| City, State, Zip | OKLAHOMA CITY, OK 73135-4434 | School System: |
Mid-Del #52 |
|
|
Country: (If noted) |
Land Size: |
0.1653 Acres |
||
|
Land Value: 25,848 |
|
|||
|
Sect 20-T11N-R2W Qtr SE |
FROLICH MEADOWS SEC 5
Block
015
Lot
003
|
|||
| Full Legal Description: FROLICH MEADOWS SEC 5 015 003 |
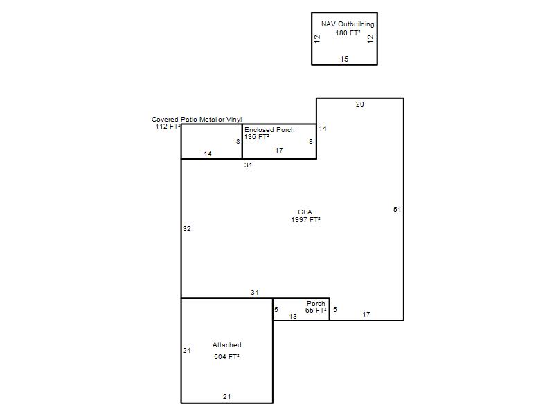
| Photo & Sketch (if available) | Comp Sales (ordered by relevancy) |
|
||||||||||||||||||
|
||||||||||||||||||||
| Value History (*The County Treasurer 405-713-1300 posts & collects actual tax amounts. Contact information HERE) | |||||||||||||
|---|---|---|---|---|---|---|---|---|---|---|---|---|---|
| Year | Market Value | Taxable Mkt Value | Gross Assessed | Exemption | Net Assessed | Millage | Est. Tax | Tax Savings | |||||
|
2025 |
222,500 |
141,135 |
15,524 |
15,524 |
0 |
126.46 |
$0 |
$3,095 |
|||||
|
2024 |
215,000 |
141,135 |
15,524 |
15,524 |
0 |
128.51 |
$0 |
$3,039 |
|||||
|
2023 |
205,000 |
141,135 |
15,524 |
1,000 |
14,524 |
122.94 |
$1,786 |
$987 |
|||||
|
2022 |
175,500 |
141,135 |
15,524 |
1,000 |
14,524 |
122.11 |
$1,774 |
$584 |
|||||
|
2021 |
157,000 |
141,135 |
15,524 |
1,000 |
14,524 |
124.74 |
$1,812 |
$342 |
|||||
| Property Account Status/Adjustments/Exemptions | ||
|---|---|---|
| Account # | Exemption Description | Amount |
|
R149013120 |
100% DAV Exemption |
100 |
|
R149013120 |
DAV Freeze Senior Valuation |
0 |
|
R149013120 |
3% Cap Homestead |
0 |
|
R149013120 |
DAV Homestead |
0 |
| Property Deed Transaction History (Recorded in the County Clerk's Office) | ||||||||||
|---|---|---|---|---|---|---|---|---|---|---|
| Date | Type | Book | Page | Price | Grantor | Grantee | ||||
|
11/10/2023 |
|
Deeds |
$0 |
JYLES HUGH L |
JYLES HUGH LEE & SYLVIA O TRS |
|||||
|
4/17/2002 |
|
Deeds |
$0 |
JYLES HUGH LEE & BRENDA M |
JYLES HUGH L |
|||||
|
2/15/1996 |
|
Historical |
$87,000 |
RAMIREZ DAVID R & BARBARA |
JYLES HUGH LEE & BRENDA M |
|||||
|
2/7/1992 |
|
Historical |
$0 |
RAMIREZ DAVID R |
RAMIREZ DAVID R & BARBARA |
|||||
|
7/13/1987 |
|
Historical |
$0 |
RAMIREZ DAVID R & HARPA H |
RAMIREZ DAVID R |
|||||
| Last Mailed Notice of Value (N.O.V.) Information/History | ||||||||
|---|---|---|---|---|---|---|---|---|
| Year | Date | Market Value | Taxable Market Value | Gross Assessed | Exemption | Net Assessed | ||
|
2026 |
02/06/2026 |
226,000 |
141,135 |
15,524 |
15,524 |
0 |
||
|
2025 |
01/31/2025 |
222,500 |
141,135 |
15,524 |
15,524 |
0 |
||
|
2024 |
01/22/2024 |
215,000 |
141,135 |
15,524 |
1,000 |
14,524 |
||
|
2023 |
01/23/2023 |
205,000 |
141,135 |
15,524 |
1,000 |
14,524 |
||
|
2022 |
02/22/2022 |
175,500 |
141,135 |
15,524 |
1,000 |
14,524 |
||
| Property Building Permit History | ||||||
|---|---|---|---|---|---|---|
| Issued | Permit # | Provided by | Bldg # | Description | Est Construction Cost | Status |
|
1/21/1993 |
10243963 |
OKLAHOMA CITY |
1 |
Fire Remodel |
40,000 |
Inactive |
|
12/7/1992 |
10243962 |
OKLAHOMA CITY |
1 |
Burn - Trip |
45,000 |
Inactive |
| Click button on building number to access detailed information: | ||||||
|---|---|---|---|---|---|---|
| Bldg # | Vacant/Improved Land | Bldg Description | Year Built | SqFt | # Stories | |
|
1 |
Improved |
Ranch 1 Story |
1979 |
1,997 |
1 Stories |
|