|
|
|
| Larry Stein Oklahoma County Assessor (405) 713-1200 - Public Access System |
|
|
|
|
|
|
| Real Property Display - Screen Produced 3/16/2026 3:38:52 AM | ||||
|---|---|---|---|---|
| Account: R149013150 | Type: Residential | Location: |
5001 SE 58TH ST |
|
| Building Name/Occupant: |
|
OKLAHOMA CITY |
||
| Owner Name 1: | ALD PROPERTIES LLC |
Parcel PIN#: |
1478-14-901-3150 |
|
| Owner Name 2: | 1/4 section #: |
1478 |
||
| Owner Name 3: | Parent Acct: |
|
||
| Billing Address: | 3609 HUNTSMAN RD | Tax District: |
|
|
| City, State, Zip | EDMOND, OK 73003-3529 | School System: |
Mid-Del #52 |
|
|
Country: (If noted) |
Land Size: |
0.1653 Acres |
||
|
Land Value: 25,848 |
|
|||
|
Sect 20-T11N-R2W Qtr SE |
FROLICH MEADOWS SEC 5
Block
015
Lot
006
|
|||
| Full Legal Description: FROLICH MEADOWS SEC 5 015 006 |
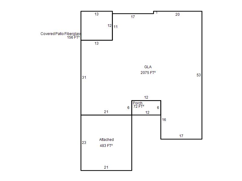
| Photo & Sketch (if available) | Comp Sales (ordered by relevancy) |
|
||||||||||||||||||
|
||||||||||||||||||||
| Value History (*The County Treasurer 405-713-1300 posts & collects actual tax amounts. Contact information HERE) | |||||||||||||
|---|---|---|---|---|---|---|---|---|---|---|---|---|---|
| Year | Market Value | Taxable Mkt Value | Gross Assessed | Exemption | Net Assessed | Millage | Est. Tax | Tax Savings | |||||
|
2025 |
217,000 |
177,401 |
19,513 |
0 |
19,513 |
126.46 |
$2,468 |
$551 |
|||||
|
2024 |
211,000 |
168,954 |
18,583 |
0 |
18,583 |
128.51 |
$2,388 |
$594 |
|||||
|
2023 |
199,500 |
160,909 |
17,699 |
0 |
17,699 |
122.94 |
$2,176 |
$522 |
|||||
|
2022 |
170,500 |
153,247 |
16,856 |
0 |
16,856 |
122.11 |
$2,058 |
$232 |
|||||
|
2021 |
153,000 |
145,950 |
16,054 |
0 |
16,054 |
124.74 |
$2,003 |
$97 |
|||||
| Property Account Status/Adjustments/Exemptions | ||
|---|---|---|
| Account # | Exemption Description | Amount |
|
R149013150 |
5% Capped Account |
0 |
| Property Deed Transaction History (Recorded in the County Clerk's Office) | |||||||
|---|---|---|---|---|---|---|---|
| Date | Type | Book | Page | Price | Grantor | Grantee | |
|
7/30/2013 |
|
Deeds |
$86,500 |
GARDNER ALLIE CHRISTINE ESTATE OF WEST RONALD GENE PER REP |
ALD PROPERTIES LLC |
||
|
5/30/2013 |
|
Hmstd Off & |
$0 |
GARDNER A CHRISTINE CONN BETTY ANN |
GARDNER ALLIE CHRISTINE ESTATE OF WEST RONALD GENE PER REP |
||
|
5/1/1981 |
|
Historical |
$0 |
|
GARDNER A CHRISTINE |
||
| Last Mailed Notice of Value (N.O.V.) Information/History | ||||||||
|---|---|---|---|---|---|---|---|---|
| Year | Date | Market Value | Taxable Market Value | Gross Assessed | Exemption | Net Assessed | ||
|
2026 |
02/06/2026 |
221,000 |
186,271 |
20,489 |
0 |
20,489 |
||
|
2025 |
01/31/2025 |
217,000 |
177,401 |
19,513 |
0 |
19,513 |
||
|
2024 |
01/22/2024 |
211,000 |
168,954 |
18,583 |
0 |
18,583 |
||
|
2023 |
01/23/2023 |
199,500 |
160,909 |
17,699 |
0 |
17,699 |
||
|
2022 |
02/22/2022 |
170,500 |
153,247 |
16,856 |
0 |
16,856 |
||
| Property Building Permit History | |||||||||||
|---|---|---|---|---|---|---|---|---|---|---|---|
| Issued | Permit # | Provided by | Bldg # | Description | Est Construction Cost | Status | |||||
| No Building Permit records returned. | |||||||||||
| Click button on building number to access detailed information: | ||||||
|---|---|---|---|---|---|---|
| Bldg # | Vacant/Improved Land | Bldg Description | Year Built | SqFt | # Stories | |
|
1 |
Improved |
Ranch 1 Story |
1978 |
2,075 |
1 Stories |
|