|
|
|
| Larry Stein Oklahoma County Assessor (405) 713-1200 - Public Access System |
|
|
|
|
|
|
| Real Property Display - Screen Produced 4/28/2026 9:20:36 PM | ||||
|---|---|---|---|---|
| Account: R218021010 | Type: Residential | Location: |
20796 ALBA CT |
|
| Building Name/Occupant: |
|
UNINCORPORATED |
||
| Owner Name 1: | A INGRAM INC DBA BEAR CREEK HOMES |
Parcel PIN#: |
4850-21-802-1010 |
|
| Owner Name 2: | 1/4 section #: |
4850 |
||
| Owner Name 3: | Parent Acct: |
4850-25-713-3025 |
||
| Billing Address: | 312 OLD HOME PL | Tax District: |
|
|
| City, State, Zip | YUKON, OK 73099 | School System: |
Deer Creek #6 |
|
|
Country: (If noted) |
Land Size: |
2.0100 Acres |
||
|
Land Value: 34,561 |
|
|||
|
Sect 13-T14N-R4W Qtr SE4 |
ALBA COURT
Block
001
Lot
002
|
|||
| Full Legal Description: ALBA COURT BLK 001 LOT 002 |
| No comparable sales report available. | ||||||||||||||||||||||
|
||||||||||||||||||||||
| Value History (*The County Treasurer 405-713-1300 posts & collects actual tax amounts. Contact information HERE) | |||||||||||||
|---|---|---|---|---|---|---|---|---|---|---|---|---|---|
| Year | Market Value | Taxable Mkt Value | Gross Assessed | Exemption | Net Assessed | Millage | Est. Tax | Tax Savings | |||||
|
2026 |
34,561 |
34,561 |
3,801 |
0 |
3,801 |
114.35 |
$435 |
$0 |
|||||
|
2025 |
34,561 |
34,561 |
3,801 |
0 |
3,801 |
114.35 |
$435 |
$0 |
|||||
|
2024 |
34,561 |
34,561 |
3,801 |
0 |
3,801 |
116.19 |
$442 |
$0 |
|||||
| Property Account Status/Adjustments/Exemptions | ||
|---|---|---|
| Account # | Exemption Description | Amount |
|
R218021010 |
5% Capped Account |
0 |
| Property Deed Transaction History (Recorded in the County Clerk's Office) | |||||||
|---|---|---|---|---|---|---|---|
| Date | Type | Book | Page | Price | Grantor | Grantee | |
|
3/25/2021 |
|
Mult Parcel |
$870,000 |
TOOMBS DEVELOPMENT CORP |
A INGRAM INC DBA BEAR CREEK HOMES |
||
|
11/2/2018 |
|
Deeds |
$1,100,000 |
UHLAND ZANE |
TOOMBS DEVELOPMENT CORP |
||
| Last Mailed Notice of Value (N.O.V.) Information/History | ||||||
|---|---|---|---|---|---|---|
| Year | Date | Market Value | Taxable Market Value | Gross Assessed | Exemption | Net Assessed |
|
2022 |
02/22/2022 |
34,561 |
34,561 |
3,801 |
0 |
3,801 |
| Property Building Permit History | ||||||
|---|---|---|---|---|---|---|
| Issued | Permit # | Provided by | Bldg # | Description | Est Construction Cost | Status |
|
9/5/2025 |
BP-2025-241 |
|
|
Main Dwellin |
2,500,000 |
Active |
| Click button below to access detailed information and additional property photos: | ||||||
|---|---|---|---|---|---|---|
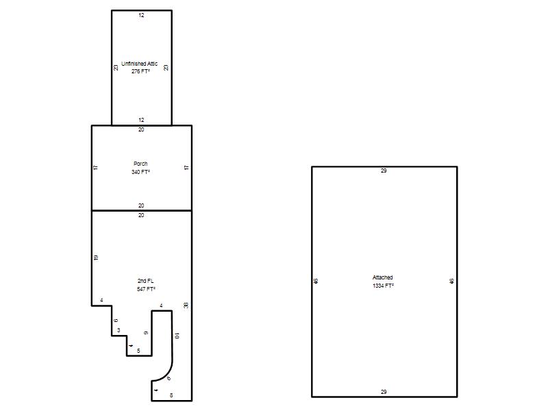
| Bldg # | Vacant/Improved Land | Bldg Description | Year Built | SqFt | # Stories | |
|
1 |
Improved |
Permit Value |
2025 |
547 |
1.5 Stories |
|