|
|
|
| Larry Stein Oklahoma County Assessor (405) 713-1200 - Public Access System |
|
|
|
|
|
|
| Real Property Display - Screen Produced 4/8/2026 4:59:20 AM | ||||
|---|---|---|---|---|
| Account: R218041000 | Type: Residential | Location: |
2539 NW 132ND PL |
|
| Building Name/Occupant: |
|
OKLAHOMA CITY |
||
| Owner Name 1: | TIMBERCRAFT OKC 44 LLC |
Parcel PIN#: |
3672-21-804-1000 |
|
| Owner Name 2: | 1/4 section #: |
3672 |
||
| Owner Name 3: | Parent Acct: |
3672-14-686-3595 |
||
| Billing Address: | 1344 LA FRANCE ST NE, Unit 1 | Tax District: |
|
|
| City, State, Zip | ATLANTA, GA 30307-2736 | School System: |
Edmond #12 |
|
|
Country: (If noted) |
Land Size: |
0.1233 Acres |
||
|
Land Value: 75,950 |
|
|||
|
Sect 18-T13N-R3W Qtr NW |
HIGHLAND POINTE PH 1
Block
001
Lot
001
|
|||
| Full Legal Description: HIGHLAND POINTE PH 1 BLK 001 LOT 001 |
| Photo & Sketch (if available) | Comp Sales (ordered by relevancy) |
|
||||||||||||||||||
|
||||||||||||||||||||
| Value History (*The County Treasurer 405-713-1300 posts & collects actual tax amounts. Contact information HERE) | ||||||||
|---|---|---|---|---|---|---|---|---|
| Year | Market Value | Taxable Mkt Value | Gross Assessed | Exemption | Net Assessed | Millage | Est. Tax | Tax Savings |
|
2026 |
354,500 |
354,500 |
38,995 |
0 |
38,995 |
120.32 |
$4,692 |
$0 |
|
2025 |
383,000 |
298,051 |
32,785 |
0 |
32,785 |
120.32 |
$3,945 |
$1,124 |
|
2024 |
387,000 |
283,859 |
31,223 |
0 |
31,223 |
119.96 |
$3,746 |
$1,361 |
|
2023 |
16,608 |
16,608 |
1,826 |
0 |
1,826 |
119.02 |
$217 |
$0 |
|
2022 |
16,608 |
16,608 |
1,826 |
0 |
1,826 |
120.10 |
$219 |
$0 |
| Property Account Status/Adjustments/Exemptions | ||||||
|---|---|---|---|---|---|---|
| Account # | Exemption Description | Amount | ||||
| No adjustment/exemption records returned. | ||||||
| Property Deed Transaction History (Recorded in the County Clerk's Office) | |||||||
|---|---|---|---|---|---|---|---|
| Date | Type | Book | Page | Price | Grantor | Grantee | |
|
8/29/2025 |
|
Mult Parcel |
$11,907,000 |
CAERUS REALTY LLC |
TIMBERCRAFT OKC 44 LLC |
||
|
10/19/2023 |
|
Hmstd Off & |
$0 |
TIMBERCRAFT HOMES LLC |
CAERUS REALTY LLC |
||
|
9/28/2022 |
|
Deeds |
$59,000 |
THREE JACKS LLC |
TIMBERCRAFT HOMES LLC |
||
|
9/27/2019 |
|
Deeds |
$1,700,000 |
RFA LAND LLC |
THREE JACKS LLC |
||
| Last Mailed Notice of Value (N.O.V.) Information/History | ||||||
|---|---|---|---|---|---|---|
| Year | Date | Market Value | Taxable Market Value | Gross Assessed | Exemption | Net Assessed |
|
2026 |
02/23/2026 |
354,500 |
354,500 |
38,995 |
0 |
38,995 |
|
2025 |
02/14/2025 |
383,000 |
298,051 |
32,785 |
0 |
32,785 |
|
2024 |
03/01/2024 |
387,000 |
283,859 |
31,223 |
0 |
31,223 |
|
2022 |
03/15/2022 |
16,608 |
16,608 |
1,826 |
0 |
1,826 |
| Property Building Permit History | ||||||
|---|---|---|---|---|---|---|
| Issued | Permit # | Provided by | Bldg # | Description | Est Construction Cost | Status |
|
12/20/2022 |
|
|
1 |
Main Dwellin |
|
Inactive |
| Click button on building number to access detailed information: | ||||||
|---|---|---|---|---|---|---|
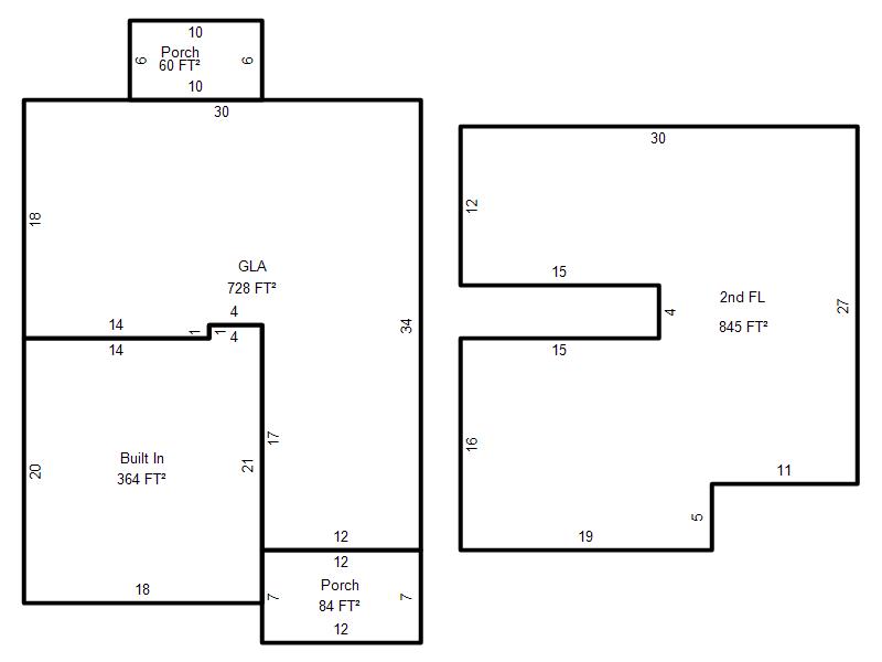
| Bldg # | Vacant/Improved Land | Bldg Description | Year Built | SqFt | # Stories | |
|
1 |
Improved |
2 Story |
2022 |
1,573 |
2 Stories |
|