|
|
|
| Larry Stein Oklahoma County Assessor (405) 713-1200 - Public Access System |
|
|
|
|
|
|
| Real Property Display - Screen Produced 3/22/2026 2:52:35 PM | ||||
|---|---|---|---|---|
| Account: R218221790 | Type: Residential | Location: |
18708 GROVE PKWY |
|
| Building Name/Occupant: |
|
OKLAHOMA CITY |
||
| Owner Name 1: | SAMKUTTY DANNY & RAIZA |
Parcel PIN#: |
4900-21-822-1790 |
|
| Owner Name 2: | 1/4 section #: |
4900 |
||
| Owner Name 3: | Parent Acct: |
4900-16-857-4200 |
||
| Billing Address: | 18708 GROVE PKWY | Tax District: |
|
|
| City, State, Zip | EDMOND , OK 73012 | School System: |
Deer Creek #6 |
|
|
Country: (If noted) |
Land Size: |
0.3543 Acres |
||
|
Land Value: 82,360 |
|
|||
|
Sect 25-T14N-R4W Qtr SW |
THE GROVE PH XIV
Block
070
Lot
003
|
|||
| Full Legal Description: THE GROVE PH XIV BLK 070 LOT 003 |
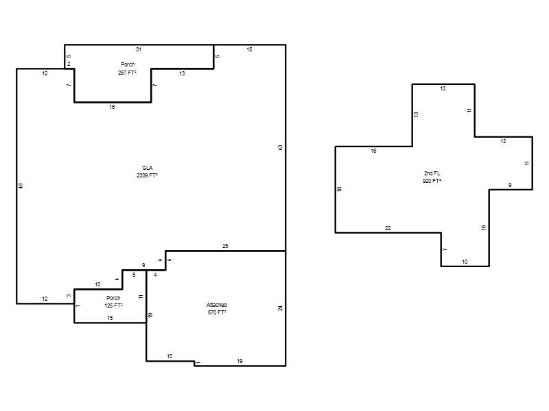
| Photo & Sketch (if available) | Comp Sales (ordered by relevancy) |
|
||||||||||||||||||
|
||||||||||||||||||||
| Value History (*The County Treasurer 405-713-1300 posts & collects actual tax amounts. Contact information HERE) | ||||||||
|---|---|---|---|---|---|---|---|---|
| Year | Market Value | Taxable Mkt Value | Gross Assessed | Exemption | Net Assessed | Millage | Est. Tax | Tax Savings |
|
2025 |
593,000 |
593,000 |
65,230 |
0 |
65,230 |
129.51 |
$8,448 |
$0 |
|
2024 |
585,000 |
571,725 |
62,889 |
0 |
62,889 |
131.12 |
$8,246 |
$191 |
|
2023 |
544,500 |
544,500 |
59,895 |
0 |
59,895 |
131.55 |
$7,879 |
$0 |
|
2022 |
5,236 |
5,236 |
575 |
0 |
575 |
130.27 |
$75 |
$0 |
| Property Account Status/Adjustments/Exemptions | ||
|---|---|---|
| Account # | Exemption Description | Amount |
|
R218221790 |
Homestead |
1,000 |
|
R218221790 |
3% Cap Homestead |
0 |
| Property Deed Transaction History (Recorded in the County Clerk's Office) | |||||||
|---|---|---|---|---|---|---|---|
| Date | Type | Book | Page | Price | Grantor | Grantee | |
|
9/30/2022 |
|
Deeds |
$529,000 |
TABER BUILT HOMES LLC |
SAMKUTTY DANNY & RAIZA |
||
|
4/20/2022 |
|
Deeds |
$62,000 |
CALIBER DEVELOPMENT COMPANY LLC |
TABER BUILT HOMES LLC |
||
|
4/23/2005 |
|
Mult Parcel |
$11,648,000 |
CALIBER DEVELOPMENT COMPANY LLC |
CALIBER DEVELOPMENT COMPANY LLC |
||
| Last Mailed Notice of Value (N.O.V.) Information/History | ||||||
|---|---|---|---|---|---|---|
| Year | Date | Market Value | Taxable Market Value | Gross Assessed | Exemption | Net Assessed |
|
2025 |
01/31/2025 |
593,000 |
593,000 |
65,230 |
0 |
65,230 |
|
2024 |
01/22/2024 |
585,000 |
571,725 |
62,889 |
0 |
62,889 |
|
2023 |
01/23/2023 |
544,500 |
544,500 |
59,895 |
0 |
59,895 |
|
2022 |
02/22/2022 |
5,236 |
5,236 |
575 |
0 |
575 |
| Property Building Permit History | ||||||
|---|---|---|---|---|---|---|
| Issued | Permit # | Provided by | Bldg # | Description | Est Construction Cost | Status |
|
5/13/2022 |
BLDR-2022-01047 |
|
|
Main Dwellin |
500,000 |
Inactive |
| Click button on building number to access detailed information: | ||||||
|---|---|---|---|---|---|---|
| Bldg # | Vacant/Improved Land | Bldg Description | Year Built | SqFt | # Stories | |
|
1 |
Improved |
1½ Story Fin |
2022 |
3,259 |
1.5 Stories |
|