|
|
|
| Larry Stein Oklahoma County Assessor (405) 713-1200 - Public Access System |
|
|
|
|
|
|
| Real Property Display - Screen Produced 2/27/2026 5:15:13 AM | ||||
|---|---|---|---|---|
| Account: R203101080 | Type: Residential | Location: |
5800 LOST DEER DR |
|
| Building Name/Occupant: |
|
OKLAHOMA CITY |
||
| Owner Name 1: | JONES DOUGLAS A & CARLA J REV FAMILY TRUST |
Parcel PIN#: |
1091-20-310-1080 |
|
| Owner Name 2: | 1/4 section #: |
1091 |
||
| Owner Name 3: | Parent Acct: |
1091-16-867-3040 |
||
| Billing Address: | 5800 LOST DEER DR | Tax District: |
|
|
| City, State, Zip | NEWALLA, OK 74857 | School System: |
Harrah #7 |
|
|
Country: (If noted) |
Land Size: |
1.0101 Acres |
||
|
Land Value: 53,566 |
|
|||
|
Sect 23-T11N-R1E Qtr SW |
LAKETREE SEC 1
Block
002
Lot
003
|
|||
| Full Legal Description: LAKETREE SEC 1 002 003 |
| Photo & Sketch (if available) | Comp Sales (ordered by relevancy) |
|
||||||||||||||||||
|
||||||||||||||||||||
| Value History (*The County Treasurer 405-713-1300 posts & collects actual tax amounts. Contact information HERE) | |||||||||||||
|---|---|---|---|---|---|---|---|---|---|---|---|---|---|
| Year | Market Value | Taxable Mkt Value | Gross Assessed | Exemption | Net Assessed | Millage | Est. Tax | Tax Savings | |||||
|
2025 |
377,500 |
271,848 |
29,902 |
1,000 |
28,902 |
122.70 |
$3,546 |
$1,549 |
|||||
|
2024 |
368,000 |
263,931 |
29,031 |
1,000 |
28,031 |
125.55 |
$3,519 |
$1,563 |
|||||
|
2023 |
335,500 |
256,244 |
28,185 |
1,000 |
27,185 |
112.66 |
$3,063 |
$1,095 |
|||||
|
2022 |
293,000 |
248,781 |
27,365 |
1,000 |
26,365 |
114.96 |
$3,031 |
$674 |
|||||
|
2021 |
259,500 |
241,535 |
26,568 |
1,000 |
25,568 |
114.25 |
$2,921 |
$340 |
|||||
| Property Account Status/Adjustments/Exemptions | ||
|---|---|---|
| Account # | Exemption Description | Amount |
|
R203101080 |
3% Cap Homestead |
0 |
|
R203101080 |
Homestead |
1,000 |
| Property Deed Transaction History (Recorded in the County Clerk's Office) | ||||||||||
|---|---|---|---|---|---|---|---|---|---|---|
| Date | Type | Book | Page | Price | Grantor | Grantee | ||||
|
7/12/2019 |
|
Deeds |
$0 |
JONES DOUGLAS A & CARLA J |
JONES DOUG A |
|||||
|
7/12/2019 |
|
Deeds |
$0 |
JONES DOUG A |
JONES DOUGLAS A & CARLA J REV FAMILY TRUST |
|||||
|
5/21/2015 |
|
Deeds |
$0 |
JONES DOUGLAS A & CARLA J |
JONES DOUGLAS A & CARLA J |
|||||
|
4/30/2012 |
|
Deeds |
$211,000 |
WIGGINS DOUGLAS D & PAMELA C |
JONES DOUGLAS A & CARLA J |
|||||
|
7/25/2007 |
|
Deeds |
$216,000 |
COTNEY DELBERT GENE & PAULA ANN |
WIGGINS DOUGLAS D & PAMELA C |
|||||
| Last Mailed Notice of Value (N.O.V.) Information/History | ||||||||
|---|---|---|---|---|---|---|---|---|
| Year | Date | Market Value | Taxable Market Value | Gross Assessed | Exemption | Net Assessed | ||
|
2026 |
02/06/2026 |
365,500 |
280,003 |
30,800 |
1,000 |
29,800 |
||
|
2025 |
01/31/2025 |
377,500 |
271,848 |
29,902 |
1,000 |
28,902 |
||
|
2024 |
01/22/2024 |
368,000 |
263,931 |
29,031 |
1,000 |
28,031 |
||
|
2023 |
01/23/2023 |
335,500 |
256,244 |
28,185 |
1,000 |
27,185 |
||
|
2022 |
02/22/2022 |
293,000 |
248,781 |
27,365 |
1,000 |
26,365 |
||
| Property Building Permit History | |||||||||||
|---|---|---|---|---|---|---|---|---|---|---|---|
| Issued | Permit # | Provided by | Bldg # | Description | Est Construction Cost | Status | |||||
| No Building Permit records returned. | |||||||||||
| Click button on building number to access detailed information: | ||||||
|---|---|---|---|---|---|---|
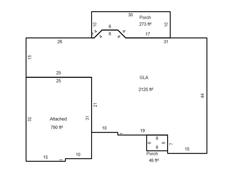
| Bldg # | Vacant/Improved Land | Bldg Description | Year Built | SqFt | # Stories | |
|
1 |
Improved |
Ranch 1 Story |
2006 |
2,125 |
1 Stories |
|