|
|
|
| Larry Stein Oklahoma County Assessor (405) 713-1200 - Public Access System |
|
|
|
|
|
|
| Real Property Display - Screen Produced 2/27/2026 5:14:38 AM | ||||
|---|---|---|---|---|
| Account: R203101120 | Type: Residential | Location: |
5500 LOST DEER DR |
|
| Building Name/Occupant: |
|
OKLAHOMA CITY |
||
| Owner Name 1: | WILLIAMS TRAVIS L & SUZANNE L |
Parcel PIN#: |
1091-20-310-1120 |
|
| Owner Name 2: | 1/4 section #: |
1091 |
||
| Owner Name 3: | Parent Acct: |
1091-16-867-3040 |
||
| Billing Address: | 5500 LOST DEER DR | Tax District: |
|
|
| City, State, Zip | NEWALLA, OK 74857 | School System: |
Harrah #7 |
|
|
Country: (If noted) |
Land Size: |
1.0101 Acres |
||
|
Land Value: 53,566 |
|
|||
|
Sect 23-T11N-R1E Qtr SW |
LAKETREE SEC 1
Block
002
Lot
007
|
|||
| Full Legal Description: LAKETREE SEC 1 002 007 |
| Photo & Sketch (if available) | Comp Sales (ordered by relevancy) |
|
||||||||||||||||||
|
||||||||||||||||||||
| Value History (*The County Treasurer 405-713-1300 posts & collects actual tax amounts. Contact information HERE) | |||||||||||||
|---|---|---|---|---|---|---|---|---|---|---|---|---|---|
| Year | Market Value | Taxable Mkt Value | Gross Assessed | Exemption | Net Assessed | Millage | Est. Tax | Tax Savings | |||||
|
2025 |
381,000 |
300,561 |
33,061 |
0 |
33,061 |
122.70 |
$4,057 |
$1,086 |
|||||
|
2024 |
371,500 |
286,249 |
31,487 |
0 |
31,487 |
125.55 |
$3,953 |
$1,177 |
|||||
|
2023 |
340,000 |
272,619 |
29,988 |
0 |
29,988 |
112.66 |
$3,378 |
$835 |
|||||
|
2022 |
294,500 |
259,638 |
28,560 |
0 |
28,560 |
114.96 |
$3,283 |
$441 |
|||||
|
2021 |
262,000 |
247,275 |
27,200 |
0 |
27,200 |
114.25 |
$3,108 |
$185 |
|||||
| Property Account Status/Adjustments/Exemptions | ||
|---|---|---|
| Account # | Exemption Description | Amount |
|
R203101120 |
5% Capped Account |
0 |
| Property Deed Transaction History (Recorded in the County Clerk's Office) | |||||||
|---|---|---|---|---|---|---|---|
| Date | Type | Book | Page | Price | Grantor | Grantee | |
|
7/2/2019 |
|
Deeds |
$250,000 |
CRAMER MATTHEW & MARY |
WILLIAMS TRAVIS L & SUZANNE L |
||
|
7/14/2017 |
|
Deeds |
$250,000 |
COMBS MARK COMBS BRITTYN |
CRAMER MATTHEW & MARY |
||
|
9/13/2016 |
|
Deeds |
$232,500 |
ESTORGA RICHARD S & DEBORAH A |
COMBS MARK COMBS BRITTYN |
||
|
11/15/2002 |
|
Deeds |
$23,000 |
LITTLE TREE DEVELOPMENT INC |
ESTORGA RICHARD S & DEBORAH A |
||
| Last Mailed Notice of Value (N.O.V.) Information/History | ||||||||
|---|---|---|---|---|---|---|---|---|
| Year | Date | Market Value | Taxable Market Value | Gross Assessed | Exemption | Net Assessed | ||
|
2026 |
02/06/2026 |
369,500 |
315,589 |
34,714 |
0 |
34,714 |
||
|
2025 |
01/31/2025 |
381,000 |
300,561 |
33,061 |
0 |
33,061 |
||
|
2024 |
01/22/2024 |
371,500 |
286,249 |
31,487 |
0 |
31,487 |
||
|
2023 |
01/23/2023 |
340,000 |
272,619 |
29,988 |
0 |
29,988 |
||
|
2022 |
02/22/2022 |
294,500 |
259,638 |
28,560 |
0 |
28,560 |
||
| Property Building Permit History | ||||||
|---|---|---|---|---|---|---|
| Issued | Permit # | Provided by | Bldg # | Description | Est Construction Cost | Status |
|
12/17/2002 |
10275820 |
OKLAHOMA CITY |
1 |
Main Dwellin |
135,000 |
Inactive |
| Click button on building number to access detailed information: | ||||||
|---|---|---|---|---|---|---|
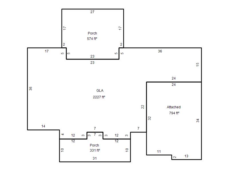
| Bldg # | Vacant/Improved Land | Bldg Description | Year Built | SqFt | # Stories | |
|
1 |
Improved |
Ranch 1 Story |
2003 |
2,227 |
1 Stories |
|