|
|
|
| Larry Stein Oklahoma County Assessor (405) 713-1200 - Public Access System |
|
|
|
|
|
|
| Real Property Display - Screen Produced 3/16/2026 3:53:14 AM | ||||
|---|---|---|---|---|
| Account: R142270300 | Type: Residential | Location: |
5508 S SUNNYLANE RD |
|
| Building Name/Occupant: |
|
OKLAHOMA CITY |
||
| Owner Name 1: | LINENBRINK WILLIAM |
Parcel PIN#: |
1479-14-227-0300 |
|
| Owner Name 2: | 1/4 section #: |
1479 |
||
| Owner Name 3: | Parent Acct: |
|
||
| Billing Address: | 5508 S SUNNYLANE RD | Tax District: |
|
|
| City, State, Zip | OKLAHOMA CITY, OK 73135-2408 | School System: |
Mid-Del #52 |
|
|
Country: (If noted) |
Land Size: |
0.7100 Acres |
||
|
Land Value: 13,377 |
|
|||
|
Sect 20-T11N-R2W Qtr SW |
PROSPERITY ACRES ADD
Block
01A
Lot
002
|
|||
| Full Legal Description: PROSPERITY ACRES ADD 01A 002 |
| Photo & Sketch (if available) | Comp Sales (ordered by relevancy) |
|
||||||||||||||||||
|
||||||||||||||||||||
| Value History (*The County Treasurer 405-713-1300 posts & collects actual tax amounts. Contact information HERE) | |||||||||||||
|---|---|---|---|---|---|---|---|---|---|---|---|---|---|
| Year | Market Value | Taxable Mkt Value | Gross Assessed | Exemption | Net Assessed | Millage | Est. Tax | Tax Savings | |||||
|
2025 |
196,500 |
132,547 |
14,579 |
0 |
14,579 |
126.46 |
$1,844 |
$890 |
|||||
|
2024 |
168,500 |
126,236 |
13,885 |
0 |
13,885 |
128.51 |
$1,784 |
$597 |
|||||
|
2023 |
161,500 |
120,225 |
13,224 |
0 |
13,224 |
122.94 |
$1,626 |
$558 |
|||||
|
2022 |
114,500 |
114,500 |
12,595 |
0 |
12,595 |
122.11 |
$1,538 |
$0 |
|||||
|
2021 |
114,500 |
114,500 |
12,595 |
0 |
12,595 |
124.74 |
$1,571 |
$0 |
|||||
| Property Account Status/Adjustments/Exemptions | ||
|---|---|---|
| Account # | Exemption Description | Amount |
|
R142270300 |
5% Capped Account |
0 |
| Property Deed Transaction History (Recorded in the County Clerk's Office) | ||||||||||
|---|---|---|---|---|---|---|---|---|---|---|
| Date | Type | Book | Page | Price | Grantor | Grantee | ||||
|
6/12/2017 |
|
Deeds |
$121,500 |
NATIONAL RESIDENTIAL NOMINEE SERVICES IN |
LINENBRINK WILLIAM |
|||||
|
4/18/2017 |
|
Deeds |
$121,500 |
VARA DANILO & ANNA H |
NATIONAL RESIDENTIAL NOMINEE SERVICES IN |
|||||
|
5/27/2016 |
|
Deeds |
$114,000 |
HARVEY NEAL K & SUMMER M |
VARA DANILO & ANNA H |
|||||
|
5/18/2012 |
|
Deeds |
$89,000 |
NATIONAL RESIDENTIAL NOMINEE SERVICES IN |
HARVEY NEAL K & SUMMER M |
|||||
|
10/14/2011 |
|
Deeds |
$89,000 |
DUNKIN LARRY D & CHERYL L |
NATIONAL RESIDENTIAL NOMINEE SERVICES IN |
|||||
| Last Mailed Notice of Value (N.O.V.) Information/History | ||||||||
|---|---|---|---|---|---|---|---|---|
| Year | Date | Market Value | Taxable Market Value | Gross Assessed | Exemption | Net Assessed | ||
|
2026 |
02/06/2026 |
211,000 |
139,174 |
15,309 |
0 |
15,309 |
||
|
2025 |
01/31/2025 |
196,500 |
132,547 |
14,579 |
0 |
14,579 |
||
|
2024 |
01/22/2024 |
168,500 |
126,236 |
13,885 |
0 |
13,885 |
||
|
2023 |
01/23/2023 |
161,500 |
120,225 |
13,224 |
0 |
13,224 |
||
|
2017 |
02/24/2017 |
114,500 |
114,500 |
|
|
|
||
| Property Building Permit History | |||||||||||
|---|---|---|---|---|---|---|---|---|---|---|---|
| Issued | Permit # | Provided by | Bldg # | Description | Est Construction Cost | Status | |||||
| No Building Permit records returned. | |||||||||||
| Click button on building number to access detailed information: | ||||||
|---|---|---|---|---|---|---|
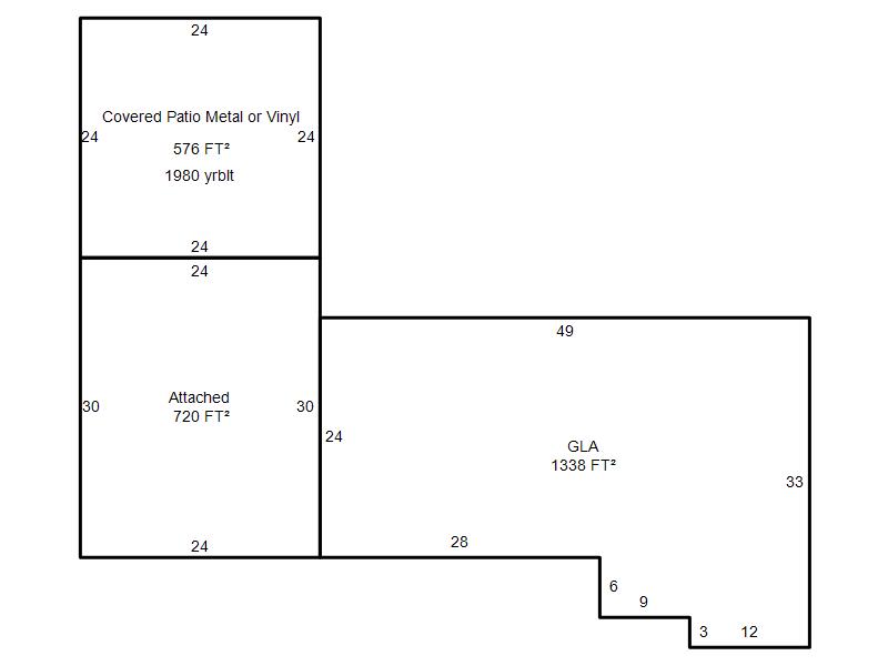
| Bldg # | Vacant/Improved Land | Bldg Description | Year Built | SqFt | # Stories | |
|
1 |
Improved |
Ranch 1 Story |
1938 |
1,338 |
1 Stories |
|