|
|
|
| Larry Stein Oklahoma County Assessor (405) 713-1200 - Public Access System |
|
|
|
|
|
|
| Real Property Display - Screen Produced 3/12/2026 2:21:01 PM | ||||
|---|---|---|---|---|
| Account: R142270600 | Type: Residential | Location: |
4305 SE 55TH ST |
|
| Building Name/Occupant: |
|
OKLAHOMA CITY |
||
| Owner Name 1: | PHILLIPS VICKI A TRS |
Parcel PIN#: |
1479-14-227-0600 |
|
| Owner Name 2: | PHILLIPS VICKI A REV TRUST | 1/4 section #: |
1479 |
|
| Owner Name 3: | Parent Acct: |
|
||
| Billing Address: | 4305 SE 55TH ST | Tax District: |
|
|
| City, State, Zip | OKLAHOMA CITY, OK 73135 | School System: |
Mid-Del #52 |
|
|
Country: (If noted) |
Land Size: |
0.9200 Acres |
||
|
Land Value: 16,801 |
|
|||
|
Sect 20-T11N-R2W Qtr SW |
PROSPERITY ACRES ADD
Block
01A
Lot
004
|
|||
| Full Legal Description: PROSPERITY ACRES ADD 01A 004 |
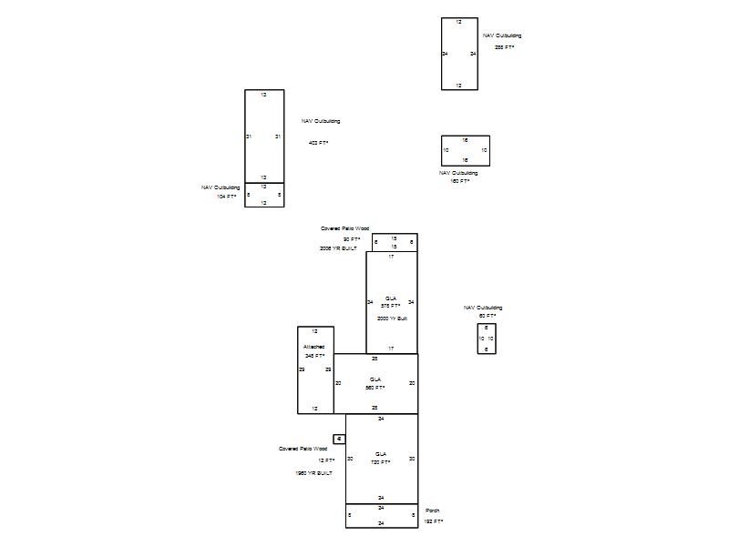
| Photo & Sketch (if available) | Comp Sales (ordered by relevancy) |
|
||||||||||||||||||
|
||||||||||||||||||||
| Value History (*The County Treasurer 405-713-1300 posts & collects actual tax amounts. Contact information HERE) | |||||||||||||
|---|---|---|---|---|---|---|---|---|---|---|---|---|---|
| Year | Market Value | Taxable Mkt Value | Gross Assessed | Exemption | Net Assessed | Millage | Est. Tax | Tax Savings | |||||
|
2025 |
190,500 |
45,153 |
4,966 |
1,000 |
3,966 |
126.46 |
$502 |
$2,148 |
|||||
|
2024 |
163,500 |
43,838 |
4,821 |
1,000 |
3,821 |
128.51 |
$491 |
$1,820 |
|||||
|
2023 |
155,000 |
42,562 |
4,681 |
1,000 |
3,681 |
122.94 |
$453 |
$1,643 |
|||||
|
2022 |
149,000 |
41,323 |
4,545 |
1,000 |
3,545 |
122.11 |
$433 |
$1,568 |
|||||
|
2021 |
126,000 |
40,120 |
4,412 |
1,000 |
3,412 |
124.74 |
$426 |
$1,303 |
|||||
| Property Account Status/Adjustments/Exemptions | ||
|---|---|---|
| Account # | Exemption Description | Amount |
|
R142270600 |
Freeze Senior Valuation |
0 |
|
R142270600 |
3% Cap Homestead |
0 |
|
R142270600 |
Homestead |
1,000 |
| Property Deed Transaction History (Recorded in the County Clerk's Office) | ||||||||||
|---|---|---|---|---|---|---|---|---|---|---|
| Date | Type | Book | Page | Price | Grantor | Grantee | ||||
|
9/16/2021 |
|
Deeds |
$0 |
PHILLIPS VICKI A TRS |
PHILLIPS VICKI A |
|||||
|
9/16/2021 |
|
Deeds |
$0 |
PHILLIPS VICKI A |
PHILLIPS VICKI A TRS |
|||||
|
4/1/2020 |
|
Deeds |
$0 |
PHILLIPS VICKI A TRS |
PHILLIPS VICKI A TRS |
|||||
|
10/25/2019 |
|
Deeds |
$0 |
PHILLIPS VICKI A |
PHILLIPS VICKI A TRS |
|||||
|
12/12/2014 |
|
Deeds |
$0 |
PHILLIPS VICKI A THOMPSON & DONALD |
PHILLIPS VICKI A |
|||||
| Last Mailed Notice of Value (N.O.V.) Information/History | ||||||||
|---|---|---|---|---|---|---|---|---|
| Year | Date | Market Value | Taxable Market Value | Gross Assessed | Exemption | Net Assessed | ||
|
2026 |
02/06/2026 |
198,500 |
45,153 |
4,966 |
1,000 |
3,966 |
||
|
2025 |
01/31/2025 |
190,500 |
45,153 |
4,966 |
1,000 |
3,966 |
||
|
2024 |
01/22/2024 |
163,500 |
43,838 |
4,821 |
1,000 |
3,821 |
||
|
2023 |
01/23/2023 |
155,000 |
42,562 |
4,681 |
1,000 |
3,681 |
||
|
2022 |
02/22/2022 |
149,000 |
41,323 |
4,544 |
1,000 |
3,544 |
||
| Property Building Permit History | |||||||||||
|---|---|---|---|---|---|---|---|---|---|---|---|
| Issued | Permit # | Provided by | Bldg # | Description | Est Construction Cost | Status | |||||
| No Building Permit records returned. | |||||||||||
| Click button on building number to access detailed information: | ||||||
|---|---|---|---|---|---|---|
| Bldg # | Vacant/Improved Land | Bldg Description | Year Built | SqFt | # Stories | |
|
1 |
Improved |
Ranch 1 Story |
1947 |
1,858 |
1 Stories |
|