|
|
|
| Larry Stein Oklahoma County Assessor (405) 713-1200 - Public Access System |
|
|
|
|
|
|
| Real Property Display - Screen Produced 2/27/2026 8:38:29 AM | ||||
|---|---|---|---|---|
| Account: R260202525 | Type: Residential | Location: |
17601 NE 27TH ST |
|
| Building Name/Occupant: |
|
HARRAH |
||
| Owner Name 1: | COUSINS JONATHAN L |
Parcel PIN#: |
2078-26-020-2525 |
|
| Owner Name 2: | COUSINS RICHELE L | 1/4 section #: |
2078 |
|
| Owner Name 3: | Parent Acct: |
2077-26-020-2520 |
||
| Billing Address: | 17601 NE 27TH ST | Tax District: |
|
|
| City, State, Zip | HARRAH, OK 73045 | School System: |
Choctaw #4 |
|
|
Country: (If noted) |
Land Size: |
10.4600 Acres |
||
|
Land Value: 157,767 |
|
|||
|
Sect 20-T12N-R1E Qtr SE |
ELK TOWNSHIP
Block
000
Lot
000
|
|||
| Full Legal Description: ELK TOWNSHIP PT NE4 SEC 20 12N 1E BEG 1320FT S & 1366FT E OF NE/C SE4 TH W503.28FT N932.23FT SE506.32FT S884.14FT TO BEG CONT 10.46ACRS MORE OR LESS SUBJ TO ACCESS ESMT |
| No comparable sales report available. | ||||||||||||||||||||||
|
||||||||||||||||||||||
| Value History (*The County Treasurer 405-713-1300 posts & collects actual tax amounts. Contact information HERE) | ||||||||
|---|---|---|---|---|---|---|---|---|
| Year | Market Value | Taxable Mkt Value | Gross Assessed | Exemption | Net Assessed | Millage | Est. Tax | Tax Savings |
|
2025 |
380,628 |
370,800 |
40,788 |
40,788 |
0 |
117.21 |
$0 |
$4,907 |
|
2024 |
360,000 |
360,000 |
39,600 |
0 |
39,600 |
116.35 |
$4,607 |
$0 |
|
2023 |
360,000 |
360,000 |
39,600 |
0 |
39,600 |
117.10 |
$4,637 |
$0 |
|
2022 |
216,883 |
216,883 |
23,857 |
0 |
23,857 |
115.17 |
$2,748 |
$0 |
|
2021 |
141,781 |
|
15,596 |
|
|
|
$ |
$ |
| Property Account Status/Adjustments/Exemptions | ||
|---|---|---|
| Account # | Exemption Description | Amount |
|
R260202525 |
100% DAV Exemption |
100 |
|
R260202525 |
DAV Homestead |
0 |
|
R260202525 |
3% Cap Homestead |
0 |
| Property Deed Transaction History (Recorded in the County Clerk's Office) | |||||||
|---|---|---|---|---|---|---|---|
| Date | Type | Book | Page | Price | Grantor | Grantee | |
|
10/5/2021 |
|
Deeds |
$360,000 |
WILLIAMS JULIE R |
COUSINS JONATHAN L |
||
|
6/10/2016 |
|
Hmstd Off & |
$0 |
MOORE JOHNNIE R |
WILLIAMS JULIE R |
||
| Last Mailed Notice of Value (N.O.V.) Information/History | ||||||
|---|---|---|---|---|---|---|
| Year | Date | Market Value | Taxable Market Value | Gross Assessed | Exemption | Net Assessed |
|
2026 |
02/06/2026 |
386,842 |
381,924 |
42,011 |
42,011 |
0 |
|
2025 |
01/31/2025 |
380,628 |
378,000 |
41,580 |
0 |
41,580 |
|
2023 |
03/02/2023 |
360,000 |
360,000 |
39,600 |
0 |
39,600 |
|
2022 |
02/22/2022 |
348,500 |
348,500 |
38,335 |
0 |
38,335 |
| Property Building Permit History | |||||||||||
|---|---|---|---|---|---|---|---|---|---|---|---|
| Issued | Permit # | Provided by | Bldg # | Description | Est Construction Cost | Status | |||||
| No Building Permit records returned. | |||||||||||
| Click button on building number to access detailed information: | ||||||
|---|---|---|---|---|---|---|
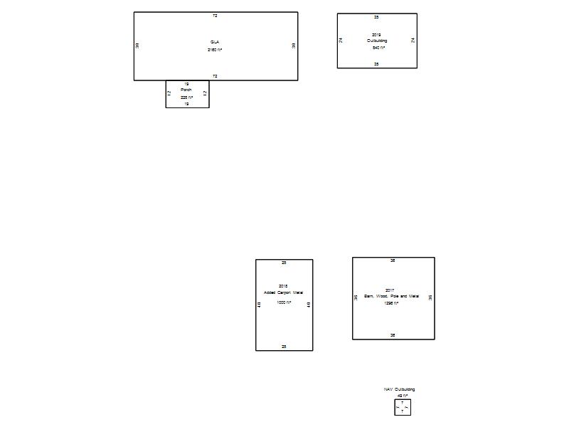
| Bldg # | Vacant/Improved Land | Bldg Description | Year Built | SqFt | # Stories | |
|
1 |
Improved |
Double Wide |
2018 |
2,160 |
1 Stories |
|