|
|
|
| Larry Stein Oklahoma County Assessor (405) 713-1200 - Public Access System |
|
|
|
|
|
|
| Real Property Display - Screen Produced 2/27/2026 5:14:59 AM | ||||
|---|---|---|---|---|
| Account: R203101200 | Type: Residential | Location: |
5601 PANTHER CV |
|
| Building Name/Occupant: |
|
OKLAHOMA CITY |
||
| Owner Name 1: | NIEDERS CORY & STACY |
Parcel PIN#: |
1091-20-310-1200 |
|
| Owner Name 2: | 1/4 section #: |
1091 |
||
| Owner Name 3: | Parent Acct: |
1091-16-867-3040 |
||
| Billing Address: | 5601 PANTHER CV | Tax District: |
|
|
| City, State, Zip | NEWALLA, OK 74857 | School System: |
Harrah #7 |
|
|
Country: (If noted) |
Land Size: |
1.0150 Acres |
||
|
Land Value: 53,825 |
|
|||
|
Sect 23-T11N-R1E Qtr SW |
LAKETREE SEC 1
Block
002
Lot
015
|
|||
| Full Legal Description: LAKETREE SEC 1 002 015 |
| Photo & Sketch (if available) | Comp Sales (ordered by relevancy) |
|
||||||||||||||||||
|
||||||||||||||||||||
| Value History (*The County Treasurer 405-713-1300 posts & collects actual tax amounts. Contact information HERE) | |||||||||||||
|---|---|---|---|---|---|---|---|---|---|---|---|---|---|
| Year | Market Value | Taxable Mkt Value | Gross Assessed | Exemption | Net Assessed | Millage | Est. Tax | Tax Savings | |||||
|
2025 |
373,000 |
268,949 |
29,583 |
1,000 |
28,583 |
122.70 |
$3,507 |
$1,527 |
|||||
|
2024 |
364,000 |
261,116 |
28,722 |
1,000 |
27,722 |
125.55 |
$3,481 |
$1,546 |
|||||
|
2023 |
332,000 |
253,511 |
27,886 |
1,000 |
26,886 |
112.66 |
$3,029 |
$1,085 |
|||||
|
2022 |
290,000 |
246,128 |
27,073 |
1,000 |
26,073 |
114.96 |
$2,997 |
$670 |
|||||
|
2021 |
256,500 |
238,960 |
26,285 |
1,000 |
25,285 |
114.25 |
$2,889 |
$335 |
|||||
| Property Account Status/Adjustments/Exemptions | ||
|---|---|---|
| Account # | Exemption Description | Amount |
|
R203101200 |
3% Cap Homestead |
0 |
|
R203101200 |
Homestead |
1,000 |
| Property Deed Transaction History (Recorded in the County Clerk's Office) | |||||||
|---|---|---|---|---|---|---|---|
| Date | Type | Book | Page | Price | Grantor | Grantee | |
|
6/27/2019 |
|
Deeds |
$245,000 |
BLEICHNER JEFFREY & LESLIE |
NIEDERS CORY & STACY |
||
|
2/16/2017 |
|
Deeds |
$236,000 |
HOUCHINS ANDREW C & JENNIFER J |
BLEICHNER JEFFREY & LESLIE |
||
|
9/5/2008 |
|
Deeds |
$213,000 |
MAPLES TOM J & JILL R |
HOUCHINS ANDREW C & JENNIFER J |
||
|
5/2/2006 |
|
Deeds |
$25,000 |
LITTLE TREE DEVELOPMENT INC |
MAPLES TOM J & JILL R |
||
| Last Mailed Notice of Value (N.O.V.) Information/History | ||||||||
|---|---|---|---|---|---|---|---|---|
| Year | Date | Market Value | Taxable Market Value | Gross Assessed | Exemption | Net Assessed | ||
|
2026 |
02/06/2026 |
361,500 |
277,017 |
30,471 |
1,000 |
29,471 |
||
|
2025 |
01/31/2025 |
373,000 |
268,949 |
29,583 |
1,000 |
28,583 |
||
|
2024 |
01/22/2024 |
364,000 |
261,116 |
28,722 |
1,000 |
27,722 |
||
|
2023 |
01/23/2023 |
332,000 |
253,511 |
27,886 |
1,000 |
26,886 |
||
|
2022 |
02/22/2022 |
290,000 |
246,128 |
27,073 |
1,000 |
26,073 |
||
| Property Building Permit History | ||||||
|---|---|---|---|---|---|---|
| Issued | Permit # | Provided by | Bldg # | Description | Est Construction Cost | Status |
|
5/22/2006 |
10324406 |
OKLAHOMA CITY |
1 |
Main Dwellin |
175,000 |
Inactive |
| Click button on building number to access detailed information: | ||||||
|---|---|---|---|---|---|---|
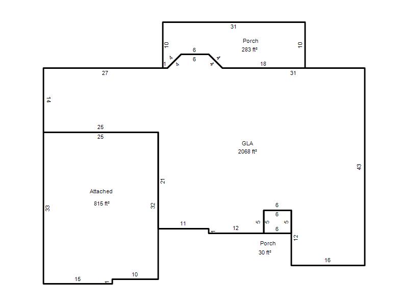
| Bldg # | Vacant/Improved Land | Bldg Description | Year Built | SqFt | # Stories | |
|
1 |
Improved |
Ranch 1 Story |
2006 |
2,068 |
1 Stories |
|