|
|
|
| Larry Stein Oklahoma County Assessor (405) 713-1200 - Public Access System |
|
|
|
|
|
|
| Real Property Display - Screen Produced 3/28/2026 4:48:04 PM | ||||
|---|---|---|---|---|
| Account: R218631500 | Type: Residential | Location: |
15005 ALBIGNY CT |
|
| Building Name/Occupant: |
|
OKLAHOMA CITY |
||
| Owner Name 1: | BILL ROBERTS CUSTOM HOMES LLC |
Parcel PIN#: |
3833-21-863-1500 |
|
| Owner Name 2: | 1/4 section #: |
3833 |
||
| Owner Name 3: | Parent Acct: |
3833-16-868-1300 |
||
| Billing Address: | 15005 ALBIGNY CT | Tax District: |
|
|
| City, State, Zip | OKLAHOMA CITY, OK 73142-6700 | School System: |
Deer Creek #6 |
|
|
Country: (If noted) |
Land Size: |
0.2213 Acres |
||
|
Land Value: 25,229 |
|
|||
|
Sect 9-T13N-R4W Qtr NE |
THE LAKES AT ANNECY PH 1
Block
006
Lot
007
|
|||
| Full Legal Description: THE LAKES AT ANNECY PH 1 BLK 006 LOT 007 |
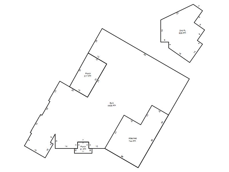
| Photo & Sketch (if available) | Comp Sales (ordered by relevancy) |
|
||||||||||||||||||
|
||||||||||||||||||||
| Value History (*The County Treasurer 405-713-1300 posts & collects actual tax amounts. Contact information HERE) | ||||||||
|---|---|---|---|---|---|---|---|---|
| Year | Market Value | Taxable Mkt Value | Gross Assessed | Exemption | Net Assessed | Millage | Est. Tax | Tax Savings |
|
2026 |
25,229 |
25,229 |
2,775 |
0 |
2,775 |
129.51 |
$359 |
$0 |
|
2025 |
25,229 |
25,229 |
2,775 |
0 |
2,775 |
129.51 |
$359 |
$0 |
|
2024 |
25,229 |
25,229 |
2,775 |
0 |
2,775 |
131.12 |
$364 |
$0 |
|
2023 |
25,229 |
25,229 |
2,775 |
0 |
2,775 |
131.55 |
$365 |
$0 |
| Property Account Status/Adjustments/Exemptions | ||||||
|---|---|---|---|---|---|---|
| Account # | Exemption Description | Amount | ||||
| No adjustment/exemption records returned. | ||||||
| Property Deed Transaction History (Recorded in the County Clerk's Office) | |||||||
|---|---|---|---|---|---|---|---|
| Date | Type | Book | Page | Price | Grantor | Grantee | |
|
4/21/2025 |
|
Deeds |
$165,000 |
SEAGULL CUSTOM HOMES INC |
BILL ROBERTS CUSTOM HOMES LLC |
||
|
8/7/2019 |
|
Mult Parcel |
$7,163,499 |
7M COMPANY LLC |
ANNECY LLC |
||
| Last Mailed Notice of Value (N.O.V.) Information/History | ||||||
|---|---|---|---|---|---|---|
| Year | Date | Market Value | Taxable Market Value | Gross Assessed | Exemption | Net Assessed |
|
2023 |
02/14/2023 |
25,229 |
25,229 |
2,775 |
0 |
2,775 |
| Property Building Permit History | ||||||
|---|---|---|---|---|---|---|
| Issued | Permit # | Provided by | Bldg # | Description | Est Construction Cost | Status |
|
7/8/2025 |
BLDR-2025-00916 |
|
|
Main Dwellin |
850,000 |
Inactive |
|
5/15/2025 |
|
|
1 |
Main Dwellin |
|
Inactive |
| Click button on building number to access detailed information: | ||||||
|---|---|---|---|---|---|---|
| Bldg # | Vacant/Improved Land | Bldg Description | Year Built | SqFt | # Stories | |
|
1 |
Improved |
1½ Story Fin |
2025 |
5,035 |
1.5 Stories |
|