|
|
|
| Larry Stein Oklahoma County Assessor (405) 713-1200 - Public Access System |
|
|
|
|
|
|
| Real Property Display - Screen Produced 4/1/2026 5:04:20 AM | ||||
|---|---|---|---|---|
| Account: R218641280 | Type: Residential | Location: |
8324 NW 162ND ST |
|
| Building Name/Occupant: |
|
OKLAHOMA CITY |
||
| Owner Name 1: | DAVENPORT MARY THERESA |
Parcel PIN#: |
3821-21-864-1280 |
|
| Owner Name 2: | DAVENPORT SAMANTHA | 1/4 section #: |
3821 |
|
| Owner Name 3: | Parent Acct: |
3821-12-754-1000 |
||
| Billing Address: | 8324 NW 162ND ST | Tax District: |
|
|
| City, State, Zip | EDMOND, OK 73013-5998 | School System: |
Deer Creek #6 |
|
|
Country: (If noted) |
Land Size: |
0.1698 Acres |
||
|
Land Value: 52,142 |
|
|||
|
Sect 6-T13N -R4W Qtr NE |
COUNCIL RIDGE NORTH
Block
028
Lot
005
|
|||
| Full Legal Description: COUNCIL RIDGE NORTH BLK 028 LOT 005 |
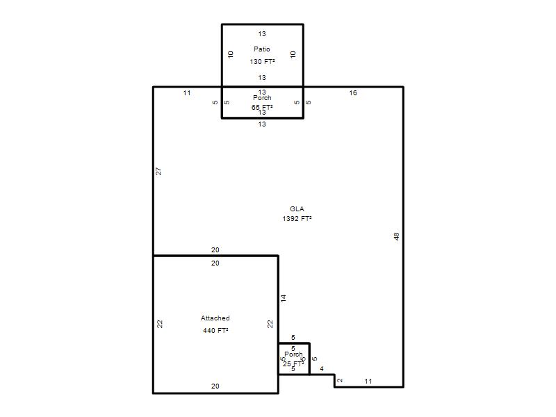
| Photo & Sketch (if available) | Comp Sales (ordered by relevancy) |
|
||||||||||||||||||
|
||||||||||||||||||||
| Value History (*The County Treasurer 405-713-1300 posts & collects actual tax amounts. Contact information HERE) | ||||||||
|---|---|---|---|---|---|---|---|---|
| Year | Market Value | Taxable Mkt Value | Gross Assessed | Exemption | Net Assessed | Millage | Est. Tax | Tax Savings |
|
2026 |
284,000 |
284,000 |
31,240 |
0 |
31,240 |
129.51 |
$4,046 |
$0 |
|
2025 |
277,500 |
277,500 |
30,525 |
0 |
30,525 |
129.51 |
$3,953 |
$0 |
|
2024 |
271,500 |
271,500 |
29,865 |
0 |
29,865 |
131.12 |
$3,916 |
$0 |
|
2023 |
6,641 |
6,641 |
730 |
0 |
730 |
131.55 |
$96 |
$0 |
| Property Account Status/Adjustments/Exemptions | ||
|---|---|---|
| Account # | Exemption Description | Amount |
|
R218641280 |
5% Capped Account |
0 |
| Property Deed Transaction History (Recorded in the County Clerk's Office) | |||||||
|---|---|---|---|---|---|---|---|
| Date | Type | Book | Page | Price | Grantor | Grantee | |
|
9/19/2024 |
|
Hmstd Off & |
$0 |
DAVENPORT MARY THERESA |
DAVENPORT MARY THERESA |
||
|
9/14/2023 |
|
Deeds |
$278,000 |
TABER BUILT HOMES LLC |
DAVENPORT MARY THERESA |
||
|
2/15/2023 |
|
Deeds |
$53,000 |
164TH & COUNCIL LLC |
TABER BUILT HOMES LLC |
||
|
3/1/2006 |
|
Mult Parcel |
$3,652,000 |
DISK LLC |
164TH & COUNCIL LLC |
||
| Last Mailed Notice of Value (N.O.V.) Information/History | ||||||
|---|---|---|---|---|---|---|
| Year | Date | Market Value | Taxable Market Value | Gross Assessed | Exemption | Net Assessed |
|
2026 |
02/23/2026 |
284,000 |
284,000 |
31,240 |
0 |
31,240 |
|
2025 |
02/14/2025 |
277,500 |
277,500 |
30,525 |
0 |
30,525 |
|
2024 |
02/13/2024 |
271,500 |
271,500 |
29,865 |
0 |
29,865 |
|
2023 |
02/14/2023 |
6,641 |
6,641 |
730 |
0 |
730 |
|
2023 |
03/02/2023 |
6,641 |
6,641 |
730 |
0 |
730 |
| Property Building Permit History | ||||||
|---|---|---|---|---|---|---|
| Issued | Permit # | Provided by | Bldg # | Description | Est Construction Cost | Status |
|
4/11/2023 |
BLDR-2023-00783 |
|
1 |
Main Dwellin |
272,000 |
Inactive |
| Click button on building number to access detailed information: | ||||||
|---|---|---|---|---|---|---|
| Bldg # | Vacant/Improved Land | Bldg Description | Year Built | SqFt | # Stories | |
|
1 |
Improved |
Ranch 1 Story |
2023 |
1,392 |
1 Stories |
|