|
|
|
| Larry Stein Oklahoma County Assessor (405) 713-1200 - Public Access System |
|
|
|
|
|
|
| Real Property Display - Screen Produced 3/20/2026 7:38:21 PM | ||||
|---|---|---|---|---|
| Account: R218691020 | Type: Residential | Location: |
617 ABADAN DR |
|
| Building Name/Occupant: |
|
EDMOND |
||
| Owner Name 1: | MAIAHY MICHAEL |
Parcel PIN#: |
4740-21-869-1020 |
|
| Owner Name 2: | 1/4 section #: |
4740 |
||
| Owner Name 3: | Parent Acct: |
4740-18-353-8550 |
||
| Billing Address: | 17804 BLUE HERON CT | Tax District: |
|
|
| City, State, Zip | EDMOND, OK 73012-0683 | School System: |
Edmond #12 |
|
|
Country: (If noted) |
Land Size: |
0.1681 Acres |
||
|
Land Value: 84,045 |
|
|||
|
Sect 35-T14N-R3W Qtr NW |
ABADAN CREEK
Block
001
Lot
003
|
|||
| Full Legal Description: ABADAN CREEK BLK 001 LOT 003 |
| Photo & Sketch (if available) | Comp Sales (ordered by relevancy) |
|
||||||||||||||||||
|
||||||||||||||||||||
| Value History (*The County Treasurer 405-713-1300 posts & collects actual tax amounts. Contact information HERE) | ||||||||
|---|---|---|---|---|---|---|---|---|
| Year | Market Value | Taxable Mkt Value | Gross Assessed | Exemption | Net Assessed | Millage | Est. Tax | Tax Savings |
|
2025 |
21,815 |
21,815 |
2,399 |
0 |
2,399 |
105.16 |
$252 |
$0 |
|
2024 |
21,815 |
21,815 |
2,399 |
0 |
2,399 |
105.03 |
$252 |
$0 |
|
2023 |
21,815 |
21,815 |
2,399 |
0 |
2,399 |
104.24 |
$250 |
$0 |
| Property Account Status/Adjustments/Exemptions | ||||||
|---|---|---|---|---|---|---|
| Account # | Exemption Description | Amount | ||||
| No adjustment/exemption records returned. | ||||||
| Property Deed Transaction History (Recorded in the County Clerk's Office) | |||||||
|---|---|---|---|---|---|---|---|
| Date | Type | Book | Page | Price | Grantor | Grantee | |
|
9/24/2025 |
|
Hmstd Off & |
$0 |
M ROSE HOMES LLC |
MAIAHY MICHAEL |
||
|
11/7/2013 |
|
Deeds |
$225,000 |
JAI HOTEL LLC MLX I LLC |
M ROSE HOMES LLC |
||
| Last Mailed Notice of Value (N.O.V.) Information/History | ||||||
|---|---|---|---|---|---|---|
| Year | Date | Market Value | Taxable Market Value | Gross Assessed | Exemption | Net Assessed |
|
2023 |
01/23/2023 |
21,815 |
21,815 |
2,399 |
0 |
2,399 |
| Property Building Permit History | ||||||
|---|---|---|---|---|---|---|
| Issued | Permit # | Provided by | Bldg # | Description | Est Construction Cost | Status |
|
4/10/2023 |
B23-00116 |
|
1 |
Main Dwellin |
250,000 |
Inactive |
|
3/24/2023 |
B23-00115 |
|
1 |
Main Dwellin |
250,000 |
Inactive |
| Click button on building number to access detailed information: | ||||||
|---|---|---|---|---|---|---|
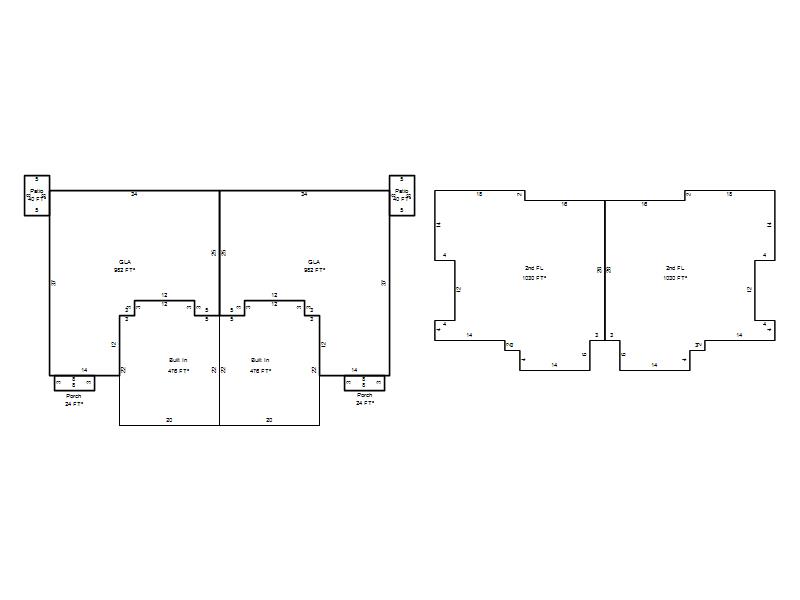
| Bldg # | Vacant/Improved Land | Bldg Description | Year Built | SqFt | # Stories | |
|
1 |
Improved |
Duplex Two Story |
2023 |
4,024 |
2 Stories |
|