|
|
|
| Larry Stein Oklahoma County Assessor (405) 713-1200 - Public Access System |
|
|
|
|
|
|
| Real Property Display - Screen Produced 2/27/2026 1:38:11 AM | ||||
|---|---|---|---|---|
| Account: R218731220 | Type: Residential | Location: |
UNKNOWN |
|
| Building Name/Occupant: |
|
|
||
| Owner Name 1: | WALNUT STREET PROJECT LLC |
Parcel PIN#: |
2687-21-873-1220 |
|
| Owner Name 2: | 1/4 section #: |
2687 |
||
| Owner Name 3: | Parent Acct: |
2687-03-621-0705 |
||
| Billing Address: | 400 NW 23RD ST | Tax District: |
|
|
| City, State, Zip | OKLAHOMA CITY, OK 73103 | School System: |
Oklahoma City #89 |
|
|
Country: (If noted) |
Land Size: |
1.0000 Acres |
||
|
Land Value: 2,000 |
|
|||
|
Sect 22-T12N-R3W Qtr SW |
THE VILLAGE ON WALNUT
Block
000
Lot
000
|
|||
| Full Legal Description: THE VILLAGE ON WALNUT COMMON AREA A & B |
| No comparable sales report available. | ||||||||||||||||||||||
|
||||||||||||||||||||||
| Value History (*The County Treasurer 405-713-1300 posts & collects actual tax amounts. Contact information HERE) | ||||||||
|---|---|---|---|---|---|---|---|---|
| Year | Market Value | Taxable Mkt Value | Gross Assessed | Exemption | Net Assessed | Millage | Est. Tax | Tax Savings |
|
2025 |
2,000 |
2,000 |
220 |
0 |
220 |
122.90 |
$27 |
$0 |
|
2024 |
2,000 |
2,000 |
220 |
0 |
220 |
123.89 |
$27 |
$0 |
|
2023 |
2,000 |
2,000 |
220 |
0 |
220 |
122.82 |
$27 |
$0 |
| Property Account Status/Adjustments/Exemptions | ||||||
|---|---|---|---|---|---|---|
| Account # | Exemption Description | Amount | ||||
| No adjustment/exemption records returned. | ||||||
| Property Deed Transaction History (Recorded in the County Clerk's Office) | |||||||
|---|---|---|---|---|---|---|---|
| Date | Type | Book | Page | Price | Grantor | Grantee | |
|
11/4/2020 |
|
Deeds |
$300,000 |
JEFFERSON PARK NEIGHBORS ASSOCIATION |
WALNUT STREET PROJECT LLC |
||
| Last Mailed Notice of Value (N.O.V.) Information/History | ||||||
|---|---|---|---|---|---|---|
| Year | Date | Market Value | Taxable Market Value | Gross Assessed | Exemption | Net Assessed |
|
2023 |
02/14/2023 |
2,000 |
2,000 |
220 |
0 |
220 |
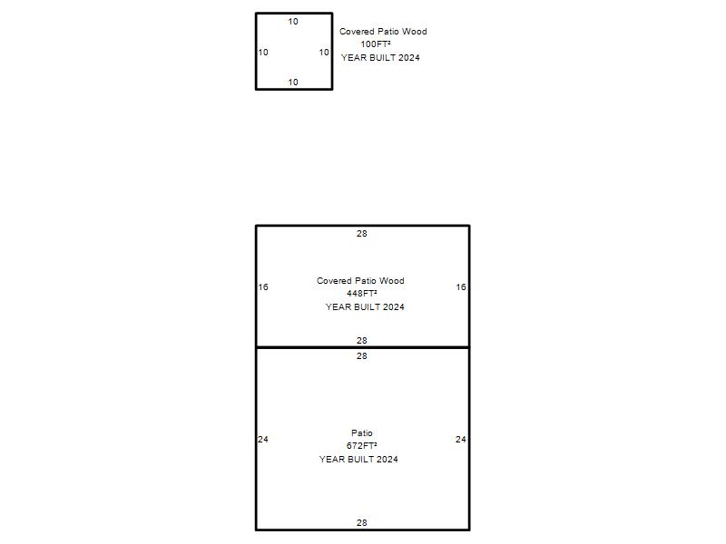
| Property Building Permit History | ||||||
|---|---|---|---|---|---|---|
| Issued | Permit # | Provided by | Bldg # | Description | Est Construction Cost | Status |
|
8/15/2024 |
BLDC-2023-07200 |
|
|
Commercial |
60,000 |
Inactive |
| Click button on building number to access detailed information: | ||||||
|---|---|---|---|---|---|---|
| Bldg # | Vacant/Improved Land | Bldg Description | Year Built | SqFt | # Stories | |
|
1 |
Improved |
Misc Imp - Res |
2025 |
0 |
1 Stories |
|