|
|
|
| Larry Stein Oklahoma County Assessor (405) 713-1200 - Public Access System |
|
|
|
|
|
|
| Real Property Display - Screen Produced 4/30/2026 4:02:26 AM | ||||
|---|---|---|---|---|
| Account: R142034057 | Type: Industrial | Location: |
UNKNOWN |
|
| Building Name/Occupant: |
UNOCCUPIED |
|
||
| Owner Name 1: | PEORIA AVENUE LLC |
Parcel PIN#: |
1831-14-203-4057 |
|
| Owner Name 2: | 1/4 section #: |
1831 |
||
| Owner Name 3: | Parent Acct: |
1831-14-203-4055 |
||
| Billing Address: | 3501 S YALE AVE | Tax District: |
|
|
| City, State, Zip | TULSA, OK 74135 | School System: |
Western Heights #41 |
|
|
Country: (If noted) |
Land Size: |
359,368.0000 Square Feet |
||
|
Land Value: 436,632 |
|
|||
|
Sect 8-T11N-R4W Qtr SW |
UNPLTD PT SEC 08 11N 4W
Block
000
Lot
000
|
|||
| Full Legal Description: UNPLTD PT OF SW4 SEC 8 11N 4W BEG 1121.18FT E OF NW/C SW4 TH E444.34FT SE104.08FT S41.13FT LEFT ON CURVE SW 323.88FT E47.52FT S798.80FT W318.93FT N1047.01FT TO BEG CONT 8.24ACRS MORE OR LESS |
| No comparable sales report available. | ||||||||||||||||||||||
|
||||||||||||||||||||||
| Value History (*The County Treasurer 405-713-1300 posts & collects actual tax amounts. Contact information HERE) | |||||||||||||
|---|---|---|---|---|---|---|---|---|---|---|---|---|---|
| Year | Market Value | Taxable Mkt Value | Gross Assessed | Exemption | Net Assessed | Millage | Est. Tax | Tax Savings | |||||
| No PropertyValuation records returned. | |||||||||||||
| Property Account Status/Adjustments/Exemptions | ||
|---|---|---|
| Account # | Exemption Description | Amount |
|
R142034057 |
5% Capped Account |
0 |
| Property Deed Transaction History (Recorded in the County Clerk's Office) | |||||||
|---|---|---|---|---|---|---|---|
| Date | Type | Book | Page | Price | Grantor | Grantee | |
|
2/23/2022 |
|
Deeds |
$4,753,000 |
PRODUCERS COOPERATIVE OIL MILL INC |
PEORIA AVENUE LLC |
||
| Last Mailed Notice of Value (N.O.V.) Information/History | ||||||||
|---|---|---|---|---|---|---|---|---|
| Year | Date | Market Value | Taxable Market Value | Gross Assessed | Exemption | Net Assessed | ||
| No Notice of Value N.O.V. records returned. | ||||||||
| Property Building Permit History | |||||||||||
|---|---|---|---|---|---|---|---|---|---|---|---|
| Issued | Permit # | Provided by | Bldg # | Description | Est Construction Cost | Status | |||||
| No Building Permit records returned. | |||||||||||
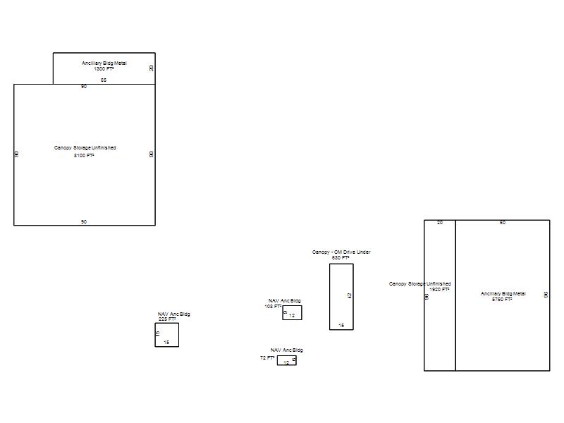
| Click button below to access detailed information and additional property photos: | ||||||
|---|---|---|---|---|---|---|
| Bldg # | Vacant/Improved Land | Bldg Description | Year Built | SqFt | # Stories | |
|
1 |
Improved |
Miscellaneous Imps CM |
1985 |
|
|
|