|
|
|
| Larry Stein Oklahoma County Assessor (405) 713-1200 - Public Access System |
|
|
|
|
|
|
| Real Property Display - Screen Produced 2/27/2026 5:14:37 AM | ||||
|---|---|---|---|---|
| Account: R203101370 | Type: Residential | Location: |
20414 SE 52ND ST |
|
| Building Name/Occupant: |
|
OKLAHOMA CITY |
||
| Owner Name 1: | MCELWEE DARRELL B & KATHERINE |
Parcel PIN#: |
1091-20-310-1370 |
|
| Owner Name 2: | 1/4 section #: |
1091 |
||
| Owner Name 3: | Parent Acct: |
1091-16-867-3040 |
||
| Billing Address: | 20414 SE 52ND ST | Tax District: |
|
|
| City, State, Zip | NEWALLA, OK 74857-3017 | School System: |
Harrah #7 |
|
|
Country: (If noted) |
Land Size: |
1.0530 Acres |
||
|
Land Value: 55,841 |
|
|||
|
Sect 23-T11N-R1E Qtr SW |
LAKETREE SEC 1
Block
002
Lot
032
|
|||
| Full Legal Description: LAKETREE SEC 1 002 032 |
| Photo & Sketch (if available) | Comp Sales (ordered by relevancy) |
|
||||||||||||||||||
|
||||||||||||||||||||
| Value History (*The County Treasurer 405-713-1300 posts & collects actual tax amounts. Contact information HERE) | |||||||||||||
|---|---|---|---|---|---|---|---|---|---|---|---|---|---|
| Year | Market Value | Taxable Mkt Value | Gross Assessed | Exemption | Net Assessed | Millage | Est. Tax | Tax Savings | |||||
|
2025 |
368,000 |
280,780 |
30,885 |
0 |
30,885 |
122.70 |
$3,790 |
$1,177 |
|||||
|
2024 |
360,500 |
267,410 |
29,414 |
0 |
29,414 |
125.55 |
$3,693 |
$1,286 |
|||||
|
2023 |
321,500 |
254,677 |
28,014 |
0 |
28,014 |
112.66 |
$3,156 |
$828 |
|||||
|
2022 |
272,500 |
242,550 |
26,680 |
0 |
26,680 |
114.96 |
$3,067 |
$379 |
|||||
|
2021 |
240,000 |
231,000 |
25,410 |
0 |
25,410 |
114.25 |
$2,903 |
$113 |
|||||
| Property Account Status/Adjustments/Exemptions | ||
|---|---|---|
| Account # | Exemption Description | Amount |
|
R203101370 |
5% Capped Account |
0 |
| Property Deed Transaction History (Recorded in the County Clerk's Office) | ||||||||||
|---|---|---|---|---|---|---|---|---|---|---|
| Date | Type | Book | Page | Price | Grantor | Grantee | ||||
|
8/15/2016 |
|
Deeds |
$238,000 |
MASTON TYLER R & EMILY I |
MCELWEE DARRELL B & KATHERINE |
|||||
|
9/10/2015 |
|
Deeds |
$0 |
MASTON TYLER T HASKINS EMILY IOLA |
MASTON TYLER R & EMILY I |
|||||
|
3/4/2014 |
|
Deeds |
$162,500 |
DEUTSCHE BANK TRUST CO |
MASTON TYLER T HASKINS EMILY IOLA |
|||||
|
11/26/2013 |
|
Hmstd Off & |
$0 |
ZIMMERMAN HESTON BROCK |
DEUTSCHE BANK TRUST CO |
|||||
|
1/20/2005 |
|
Deeds |
$180,000 |
DICKINSON CUSTOM HOMES LLC |
ZIMMERMAN HESTON BROCK |
|||||
| Last Mailed Notice of Value (N.O.V.) Information/History | ||||||||
|---|---|---|---|---|---|---|---|---|
| Year | Date | Market Value | Taxable Market Value | Gross Assessed | Exemption | Net Assessed | ||
|
2026 |
02/06/2026 |
362,000 |
294,819 |
32,429 |
0 |
32,429 |
||
|
2025 |
01/31/2025 |
368,000 |
280,780 |
30,885 |
0 |
30,885 |
||
|
2024 |
01/22/2024 |
360,500 |
267,410 |
29,414 |
0 |
29,414 |
||
|
2023 |
01/23/2023 |
321,500 |
254,677 |
28,014 |
0 |
28,014 |
||
|
2022 |
02/22/2022 |
272,500 |
242,550 |
26,680 |
0 |
26,680 |
||
| Property Building Permit History | ||||||
|---|---|---|---|---|---|---|
| Issued | Permit # | Provided by | Bldg # | Description | Est Construction Cost | Status |
|
7/22/2005 |
10310003 |
OKLAHOMA CITY |
1 |
Swimming Pool |
18,900 |
Inactive |
|
4/30/2004 |
10292607 |
OKLAHOMA CITY |
1 |
Main Dwellin |
160,000 |
Inactive |
| Click button on building number to access detailed information: | ||||||
|---|---|---|---|---|---|---|
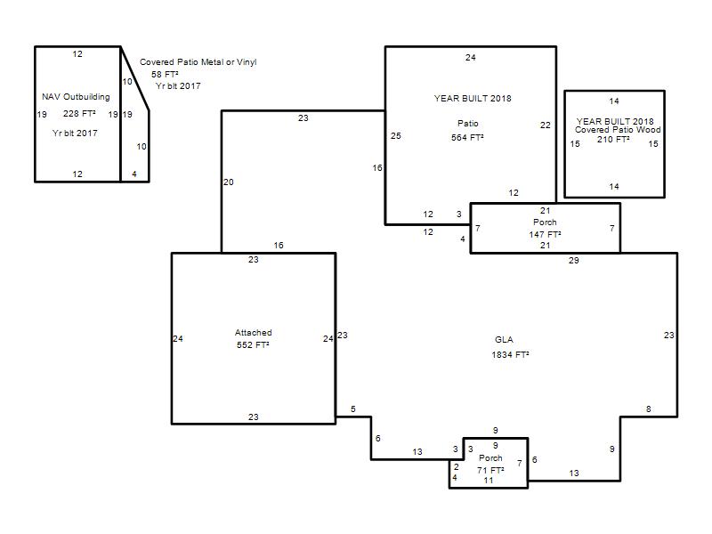
| Bldg # | Vacant/Improved Land | Bldg Description | Year Built | SqFt | # Stories | |
|
1 |
Improved |
Ranch 1 Story |
2004 |
1,834 |
1 Stories |
|