|
|
|
| Larry Stein Oklahoma County Assessor (405) 713-1200 - Public Access System |
|
|
|
|
|
|
| Real Property Display - Screen Produced 2/27/2026 5:14:37 AM | ||||
|---|---|---|---|---|
| Account: R203101410 | Type: Residential | Location: |
20401 SE 52ND ST |
|
| Building Name/Occupant: |
|
OKLAHOMA CITY |
||
| Owner Name 1: | MCKELVY MICHAEL R & CHARLOTTE |
Parcel PIN#: |
1091-20-310-1410 |
|
| Owner Name 2: | 1/4 section #: |
1091 |
||
| Owner Name 3: | Parent Acct: |
1091-16-867-3040 |
||
| Billing Address: | 20401 SE 52ND ST | Tax District: |
|
|
| City, State, Zip | NEWALLA, OK 74857-3017 | School System: |
Harrah #7 |
|
|
Country: (If noted) |
Land Size: |
1.0142 Acres |
||
|
Land Value: 53,783 |
|
|||
|
Sect 23-T11N-R1E Qtr SW |
LAKETREE SEC 1
Block
002
Lot
036
|
|||
| Full Legal Description: LAKETREE SEC 1 002 036 |
| Photo & Sketch (if available) | Comp Sales (ordered by relevancy) |
|
||||||||||||||||||
|
||||||||||||||||||||
| Value History (*The County Treasurer 405-713-1300 posts & collects actual tax amounts. Contact information HERE) | |||||||||||||
|---|---|---|---|---|---|---|---|---|---|---|---|---|---|
| Year | Market Value | Taxable Mkt Value | Gross Assessed | Exemption | Net Assessed | Millage | Est. Tax | Tax Savings | |||||
|
2025 |
390,000 |
308,859 |
33,973 |
0 |
33,973 |
122.70 |
$4,169 |
$1,095 |
|||||
|
2024 |
389,000 |
294,152 |
32,355 |
0 |
32,355 |
125.55 |
$4,062 |
$1,310 |
|||||
|
2023 |
351,500 |
280,145 |
30,815 |
0 |
30,815 |
112.66 |
$3,472 |
$884 |
|||||
|
2022 |
312,500 |
266,805 |
29,348 |
0 |
29,348 |
114.96 |
$3,374 |
$578 |
|||||
|
2021 |
269,500 |
254,100 |
27,951 |
0 |
27,951 |
114.25 |
$3,193 |
$194 |
|||||
| Property Account Status/Adjustments/Exemptions | ||
|---|---|---|
| Account # | Exemption Description | Amount |
|
R203101410 |
5% Capped Account |
0 |
| Property Deed Transaction History (Recorded in the County Clerk's Office) | |||||||
|---|---|---|---|---|---|---|---|
| Date | Type | Book | Page | Price | Grantor | Grantee | |
|
1/21/2011 |
|
Deeds |
$185,000 |
ROBERTS JOE R |
MCKELVY MICHAEL R & CHARLOTTE |
||
|
8/17/2010 |
|
Deeds |
$104,000 |
FEDERAL NATIONAL MTG ASSOCIATION |
ROBERTS JOE R |
||
|
11/16/2009 |
|
Hmstd Off & |
$0 |
PHILLIPS FREDDY W & STEPHANIE D |
FEDERAL NATIONAL MTG ASSOCIATION |
||
|
10/6/2005 |
|
Deeds |
$25,000 |
LITTLE TREE DEVELOPMENT INC |
PHILLIPS FREDDY W & STEPHANIE D |
||
| Last Mailed Notice of Value (N.O.V.) Information/History | ||||||||
|---|---|---|---|---|---|---|---|---|
| Year | Date | Market Value | Taxable Market Value | Gross Assessed | Exemption | Net Assessed | ||
|
2026 |
02/06/2026 |
377,000 |
324,301 |
35,672 |
0 |
35,672 |
||
|
2025 |
01/31/2025 |
390,000 |
308,859 |
33,973 |
0 |
33,973 |
||
|
2024 |
01/22/2024 |
389,000 |
294,152 |
32,355 |
0 |
32,355 |
||
|
2023 |
01/23/2023 |
351,500 |
280,145 |
30,815 |
0 |
30,815 |
||
|
2022 |
02/22/2022 |
312,500 |
266,805 |
29,348 |
0 |
29,348 |
||
| Property Building Permit History | ||||||
|---|---|---|---|---|---|---|
| Issued | Permit # | Provided by | Bldg # | Description | Est Construction Cost | Status |
|
12/30/2005 |
10314119 |
OKLAHOMA CITY |
1 |
Main Dwellin |
172,967 |
Inactive |
| Click button on building number to access detailed information: | ||||||
|---|---|---|---|---|---|---|
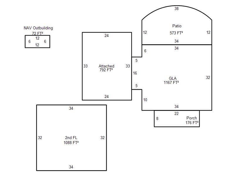
| Bldg # | Vacant/Improved Land | Bldg Description | Year Built | SqFt | # Stories | |
|
1 |
Improved |
2 Story |
2006 |
2,255 |
2 Stories |
|