|
|
|
| Larry Stein Oklahoma County Assessor (405) 713-1200 - Public Access System |
|
|
|
|
|
|
| Real Property Display - Screen Produced 4/28/2026 4:18:05 PM | ||||
|---|---|---|---|---|
| Account: R257114035 | Type: Residential | Location: |
4373 NW 220TH ST |
|
| Building Name/Occupant: |
|
UNINCORPORATED |
||
| Owner Name 1: | TASSONE PATRICIA GROHNE TRS |
Parcel PIN#: |
4843-25-711-4035 |
|
| Owner Name 2: | THE PATRICIA GROHNE TASSONE TRUST | 1/4 section #: |
4843 |
|
| Owner Name 3: | Parent Acct: |
4843-25-711-4000 |
||
| Billing Address: | 1245 DERBY LANE | Tax District: |
|
|
| City, State, Zip | SARASOTA, FL 34242 | School System: |
Deer Creek #6 |
|
|
Country: (If noted) |
Land Size: |
20.9100 Acres |
||
|
Land Value: 253,011 |
|
|||
|
Sect 11-T14N-R4W Qtr SW |
DEER CREEK TOWNSHIP
Block
000
Lot
000
|
|||
| Full Legal Description: DEER CREEK TOWNSHIP PT SW4 SEC 11 14N 4W BEG 341FT E OF SW/C SW4 TH N1281.49FT E1023FT S616.54FT W591.32FT SW63.8FT S595.33FT W417.35FT TO BEG SUBJ TO ESMTS OF RECORD CONT 20.91 ACRES MORE OR LESS |
| No comparable sales report available. | ||||||||||||||||||||||
|
||||||||||||||||||||||
| Value History (*The County Treasurer 405-713-1300 posts & collects actual tax amounts. Contact information HERE) | |||||||||||||
|---|---|---|---|---|---|---|---|---|---|---|---|---|---|
| Year | Market Value | Taxable Mkt Value | Gross Assessed | Exemption | Net Assessed | Millage | Est. Tax | Tax Savings | |||||
|
2026 |
356,475 |
352,377 |
38,760 |
0 |
38,760 |
114.35 |
$4,432 |
$52 |
|||||
|
2025 |
357,430 |
335,598 |
36,914 |
0 |
36,914 |
114.35 |
$4,221 |
$275 |
|||||
|
2024 |
281,289 |
281,289 |
30,941 |
0 |
30,941 |
116.19 |
$3,595 |
$0 |
|||||
| Property Account Status/Adjustments/Exemptions | ||
|---|---|---|
| Account # | Exemption Description | Amount |
|
R257114035 |
5% Capped Account |
0 |
| Property Deed Transaction History (Recorded in the County Clerk's Office) | ||||||||||
|---|---|---|---|---|---|---|---|---|---|---|
| Date | Type | Book | Page | Price | Grantor | Grantee | ||||
|
10/24/2022 |
|
Other |
$0 |
QUALITY SLEEP SPECIALISTS LLC |
TASSONE PATRICIA GROHNE TRS |
|||||
|
9/1/2022 |
|
Deeds |
$0 |
TASSONE PATRICIA GROHNE TRS |
TASSONE PATRICIA GROHNE TRS |
|||||
|
6/29/2018 |
|
Deeds |
$1,500,000 |
BAILEY STEVE R TRS |
QUALITY SLEEP SPECIALISTS LLC |
|||||
| Last Mailed Notice of Value (N.O.V.) Information/History | ||||||||
|---|---|---|---|---|---|---|---|---|
| Year | Date | Market Value | Taxable Market Value | Gross Assessed | Exemption | Net Assessed | ||
|
2026 |
02/06/2026 |
356,475 |
352,377 |
38,760 |
0 |
38,760 |
||
|
2025 |
03/28/2025 |
357,430 |
335,598 |
36,914 |
0 |
36,914 |
||
|
2024 |
01/22/2024 |
281,289 |
281,289 |
30,941 |
0 |
30,941 |
||
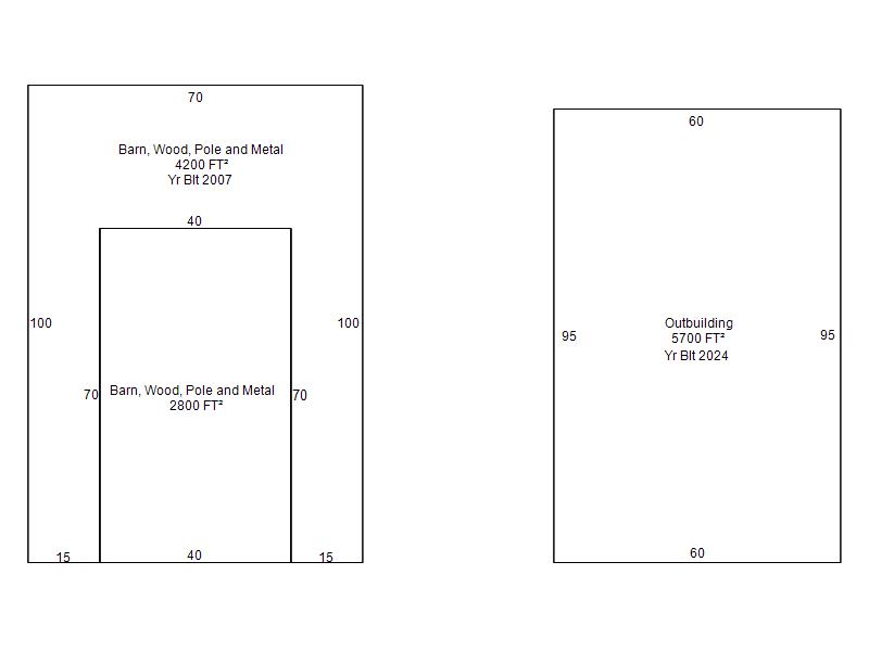
| Property Building Permit History | |||||||||||
|---|---|---|---|---|---|---|---|---|---|---|---|
| Issued | Permit # | Provided by | Bldg # | Description | Est Construction Cost | Status | |||||
|
12/12/2018 |
|
|
|
Swimming Pool |
103,000 |
Inactive |
|||||
|
10/9/2003 |
10283011 |
COUNTY |
|
Storage Buil |
100,000 |
Inactive |
|||||
|
7/3/2003 |
10277448 |
COUNTY |
|
Main Dwellin |
600,000 |
Inactive |
|||||
| Click button below to access detailed information and additional property photos: | ||||||
|---|---|---|---|---|---|---|
| Bldg # | Vacant/Improved Land | Bldg Description | Year Built | SqFt | # Stories | |
|
1 |
Improved |
Misc Imp - Res |
2004 |
|
|
|