|
|
|
| Larry Stein Oklahoma County Assessor (405) 713-1200 - Public Access System |
|
|
|
|
|
|
| Real Property Display - Screen Produced 3/20/2026 1:47:15 PM | ||||
|---|---|---|---|---|
| Account: R183437595 | Type: Residential | Location: |
1108 E HURD ST |
|
| Building Name/Occupant: |
|
EDMOND |
||
| Owner Name 1: | 1101 E HURD LLC |
Parcel PIN#: |
4698-18-343-7595 |
|
| Owner Name 2: | 1/4 section #: |
4698 |
||
| Owner Name 3: | Parent Acct: |
4698-18-343-7590 |
||
| Billing Address: | 15908 OAKLAWN CT | Tax District: |
|
|
| City, State, Zip | EDMOND, OK 73013-9732 | School System: |
Edmond #12 |
|
|
Country: (If noted) |
Land Size: |
0.1607 Acres |
||
|
Land Value: 27,020 |
|
|||
|
Sect 25-T14N-R3W Qtr SE |
HIGHLAND PARK ADD
Block
025
Lot
000
|
|||
| Full Legal Description: HIGHLAND PARK ADD 025 LOT 7 & 8 |
| Photo & Sketch (if available) | Comp Sales (ordered by relevancy) |
|
||||||||||||||||||
|
||||||||||||||||||||
| Value History (*The County Treasurer 405-713-1300 posts & collects actual tax amounts. Contact information HERE) | ||||||||
|---|---|---|---|---|---|---|---|---|
| Year | Market Value | Taxable Mkt Value | Gross Assessed | Exemption | Net Assessed | Millage | Est. Tax | Tax Savings |
|
2025 |
27,020 |
17,688 |
1,945 |
0 |
1,945 |
105.16 |
$205 |
$108 |
|
2024 |
27,020 |
16,846 |
1,852 |
0 |
1,852 |
105.03 |
$195 |
$118 |
|
2023 |
27,020 |
16,044 |
1,764 |
0 |
1,764 |
104.24 |
$184 |
$126 |
|
2022 |
0 |
|
0 |
|
|
|
$ |
$ |
| Property Account Status/Adjustments/Exemptions | ||
|---|---|---|
| Account # | Exemption Description | Amount |
|
R183437595 |
5% Capped Account |
0 |
| Property Deed Transaction History (Recorded in the County Clerk's Office) | |||||||
|---|---|---|---|---|---|---|---|
| Date | Type | Book | Page | Price | Grantor | Grantee | |
|
11/20/2024 |
|
Hmstd Off & |
$0 |
1101 E HURD STREET LLC |
1101 E HURD LLC |
||
|
11/29/2022 |
|
Hmstd Off & |
$0 |
JPM INVESTMENT LLC |
1101 E HURD STREET LLC |
||
|
1/22/2016 |
|
Deeds |
$181,500 |
STIEB MICHAEL L & CATHY |
JPM INVESTMENT LLC |
||
| Last Mailed Notice of Value (N.O.V.) Information/History | ||||||
|---|---|---|---|---|---|---|
| Year | Date | Market Value | Taxable Market Value | Gross Assessed | Exemption | Net Assessed |
|
2025 |
03/28/2025 |
27,020 |
17,688 |
1,945 |
0 |
1,945 |
|
2024 |
01/22/2024 |
27,020 |
16,846 |
1,852 |
0 |
1,852 |
|
2023 |
01/23/2023 |
27,020 |
16,044 |
1,764 |
0 |
1,764 |
| Property Building Permit History | ||||||
|---|---|---|---|---|---|---|
| Issued | Permit # | Provided by | Bldg # | Description | Est Construction Cost | Status |
|
11/14/2024 |
B24-00945 |
|
|
Main Dwellin |
190,000 |
Inactive |
|
11/14/2024 |
B24-00946 |
|
|
Main Dwellin |
190,000 |
Inactive |
| Click button on building number to access detailed information: | ||||||
|---|---|---|---|---|---|---|
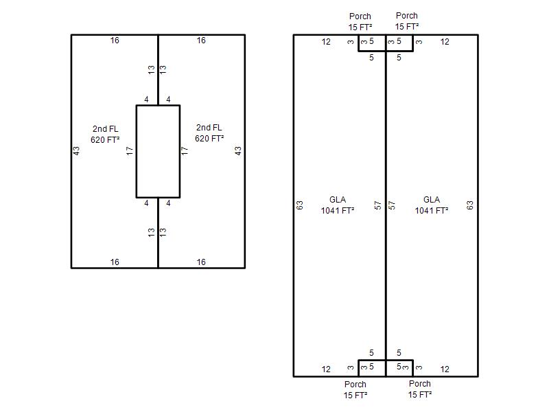
| Bldg # | Vacant/Improved Land | Bldg Description | Year Built | SqFt | # Stories | |
|
1 |
Improved |
Duplex Two Story |
2025 |
3,322 |
2 Stories |
|