|
|
|
| Larry Stein Oklahoma County Assessor (405) 713-1200 - Public Access System |
|
|
|
|
|
|
| Real Property Display - Screen Produced 2/27/2026 5:14:38 AM | ||||
|---|---|---|---|---|
| Account: R203101510 | Type: Residential | Location: |
5525 MIDWAY DR |
|
| Building Name/Occupant: |
|
OKLAHOMA CITY |
||
| Owner Name 1: | KIRKLAND CAMERON L & ASHLEY N |
Parcel PIN#: |
1091-20-310-1510 |
|
| Owner Name 2: | 1/4 section #: |
1091 |
||
| Owner Name 3: | Parent Acct: |
1091-16-867-3040 |
||
| Billing Address: | 5525 MIDWAY DR | Tax District: |
|
|
| City, State, Zip | NEWALLA, OK 74857 | School System: |
Harrah #7 |
|
|
Country: (If noted) |
Land Size: |
2.5518 Acres |
||
|
Land Value: 94,725 |
|
|||
|
Sect 23-T11N-R1E Qtr SW |
LAKETREE SEC 1
Block
003
Lot
010
|
|||
| Full Legal Description: LAKETREE SEC 1 003 000 LOTS 10 & 11 |
| Photo & Sketch (if available) | Comp Sales (ordered by relevancy) |
|
||||||||||||||||||
|
||||||||||||||||||||
| Value History (*The County Treasurer 405-713-1300 posts & collects actual tax amounts. Contact information HERE) | |||||||||||||
|---|---|---|---|---|---|---|---|---|---|---|---|---|---|
| Year | Market Value | Taxable Mkt Value | Gross Assessed | Exemption | Net Assessed | Millage | Est. Tax | Tax Savings | |||||
|
2025 |
425,500 |
297,202 |
32,691 |
0 |
32,691 |
122.70 |
$4,011 |
$1,732 |
|||||
|
2024 |
413,000 |
283,050 |
31,134 |
0 |
31,134 |
125.55 |
$3,909 |
$1,795 |
|||||
|
2023 |
372,000 |
269,572 |
29,652 |
0 |
29,652 |
112.66 |
$3,341 |
$1,269 |
|||||
|
2022 |
322,500 |
253,879 |
27,925 |
0 |
27,925 |
114.96 |
$3,210 |
$868 |
|||||
|
2021 |
282,500 |
241,790 |
26,596 |
0 |
26,596 |
114.25 |
$3,039 |
$512 |
|||||
| Property Account Status/Adjustments/Exemptions | ||
|---|---|---|
| Account # | Exemption Description | Amount |
|
R203101510 |
5% Capped Account |
0 |
| Property Deed Transaction History (Recorded in the County Clerk's Office) | |||||||
|---|---|---|---|---|---|---|---|
| Date | Type | Book | Page | Price | Grantor | Grantee | |
|
11/29/2017 |
|
Mult Parcel |
$35,000 |
LITTLE TREE DEVELOPMENT INC |
KIRKLAND CAMERON L & ASHLEY N |
||
| Last Mailed Notice of Value (N.O.V.) Information/History | ||||||||
|---|---|---|---|---|---|---|---|---|
| Year | Date | Market Value | Taxable Market Value | Gross Assessed | Exemption | Net Assessed | ||
|
2026 |
02/06/2026 |
412,000 |
312,062 |
34,326 |
0 |
34,326 |
||
|
2025 |
01/31/2025 |
425,500 |
297,202 |
32,691 |
0 |
32,691 |
||
|
2024 |
01/22/2024 |
413,000 |
283,050 |
31,134 |
0 |
31,134 |
||
|
2023 |
03/02/2023 |
372,000 |
269,572 |
29,652 |
0 |
29,652 |
||
|
2022 |
02/22/2022 |
322,500 |
253,879 |
27,925 |
0 |
27,925 |
||
| Property Building Permit History | ||||||
|---|---|---|---|---|---|---|
| Issued | Permit # | Provided by | Bldg # | Description | Est Construction Cost | Status |
|
7/23/2018 |
BLDR-2017-05868 |
|
1 |
Main Dwellin |
268,000 |
Inactive |
| Click button on building number to access detailed information: | ||||||
|---|---|---|---|---|---|---|
| Bldg # | Vacant/Improved Land | Bldg Description | Year Built | SqFt | # Stories | |
|
1 |
Improved |
Ranch 1 Story |
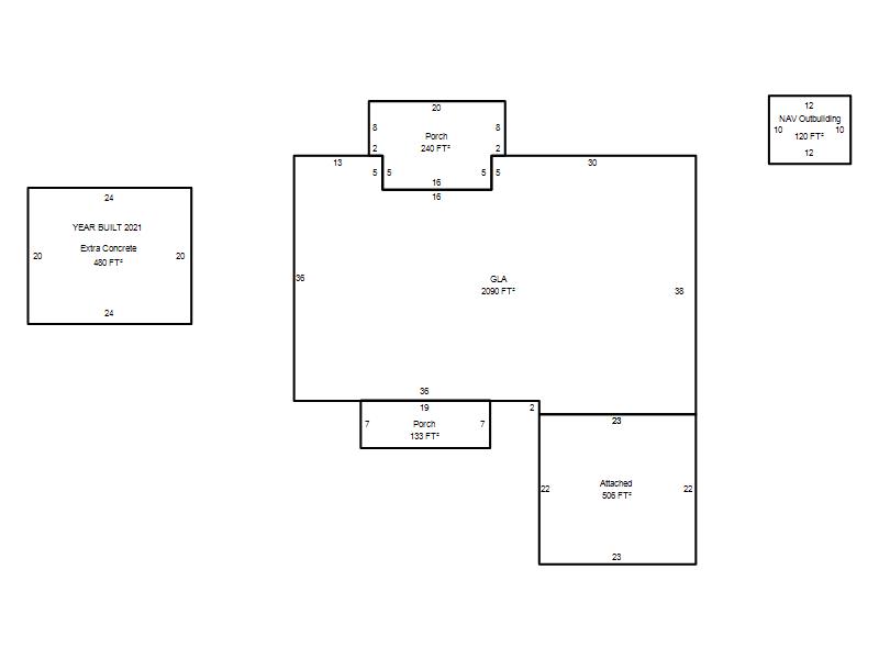
2018 |
2,090 |
1 Stories |
|