|
|
|
| Larry Stein Oklahoma County Assessor (405) 713-1200 - Public Access System |
|
|
|
|
|
|
| Real Property Display - Screen Produced 4/12/2026 12:54:09 PM | ||||
|---|---|---|---|---|
| Account: R269184105 | Type: Residential | Location: |
10125 NE 133RD ST |
|
| Building Name/Occupant: |
|
EDMOND |
||
| Owner Name 1: | 10125 LLC |
Parcel PIN#: |
3272-26-918-4105 |
|
| Owner Name 2: | 1/4 section #: |
3272 |
||
| Owner Name 3: | Parent Acct: |
3272-16-869-1095 |
||
| Billing Address: | 2113 HIGHLANDS LANDING | Tax District: |
|
|
| City, State, Zip | EDMOND, OK 73013 | School System: |
Edmond #12 |
|
|
Country: (If noted) |
Land Size: |
5.0500 Acres |
||
|
Land Value: 275,000 |
|
|||
|
Sect 18-T13N-R1W Qtr NW |
SPRINGER TOWNSHIP
Block
000
Lot
000
|
|||
| Full Legal Description: SPRINGER TOWNSHIP PT NW4 SEC 18 13N 1W BEG 407.44FT W & 1233.03FT S & 1071.10FT W OF NE/C NW4 TH NW610.60FT W267.77FT S547.38FT E535.55FT TO BEG CONT 5.05ACRS MORE OR LESS |
| Photo & Sketch (if available) | Comp Sales (ordered by relevancy) |
|
||||||||||||||||||
|
||||||||||||||||||||
| Value History (*The County Treasurer 405-713-1300 posts & collects actual tax amounts. Contact information HERE) | ||||||||
|---|---|---|---|---|---|---|---|---|
| Year | Market Value | Taxable Mkt Value | Gross Assessed | Exemption | Net Assessed | Millage | Est. Tax | Tax Savings |
|
2026 |
1,805,000 |
1,805,000 |
198,550 |
0 |
198,550 |
105.16 |
$20,880 |
$0 |
|
2025 |
275,000 |
275,000 |
30,250 |
0 |
30,250 |
105.16 |
$3,181 |
$0 |
|
2024 |
275,000 |
275,000 |
30,250 |
0 |
30,250 |
105.03 |
$3,177 |
$0 |
|
2023 |
275,000 |
333 |
35 |
0 |
35 |
104.24 |
$4 |
$3,149 |
|
2022 |
0 |
|
0 |
|
|
|
$ |
$ |
| Property Account Status/Adjustments/Exemptions | ||
|---|---|---|
| Account # | Exemption Description | Amount |
|
R269184105 |
5% Capped Account |
0 |
| Property Deed Transaction History (Recorded in the County Clerk's Office) | ||||||||||
|---|---|---|---|---|---|---|---|---|---|---|
| Date | Type | Book | Page | Price | Grantor | Grantee | ||||
|
1/4/2023 |
|
Deeds |
$275,000 |
FARMHOUSE PARTNERS LLC |
STEWART JIMMY J JR |
|||||
|
1/4/2023 |
|
Hmstd Off & |
$0 |
STEWART JIMMY J JR |
10125 LLC |
|||||
|
10/18/2019 |
|
Hmstd Off & |
$0 |
W & T LAND DEVELOPMENT LLC |
FARMHOUSE PARTNERS LLC |
|||||
|
1/9/2017 |
|
Deeds |
$2,240,000 |
SYNDER FRED P JR REV TR ETAL CHITWOOD ROSS W & HELEN CAROLYN |
W & T LAND DEVELOPMENT LLC |
|||||
|
1/8/2017 |
|
Hmstd Off & |
$0 |
CHITWOOD ELLEN TRS CHITWOOD ELLEN REV TRUST |
B&R FARMS INC |
|||||
| Last Mailed Notice of Value (N.O.V.) Information/History | ||||||
|---|---|---|---|---|---|---|
| Year | Date | Market Value | Taxable Market Value | Gross Assessed | Exemption | Net Assessed |
|
2026 |
03/30/2026 |
1,805,000 |
1,805,000 |
198,550 |
0 |
198,550 |
|
2024 |
01/22/2024 |
275,000 |
275,000 |
30,250 |
0 |
30,250 |
|
2023 |
03/02/2023 |
275,000 |
333 |
35 |
0 |
35 |
| Property Building Permit History | ||||||
|---|---|---|---|---|---|---|
| Issued | Permit # | Provided by | Bldg # | Description | Est Construction Cost | Status |
|
6/6/2024 |
|
|
1 |
Main Dwellin |
|
Inactive |
| Click button on building number to access detailed information: | ||||||
|---|---|---|---|---|---|---|
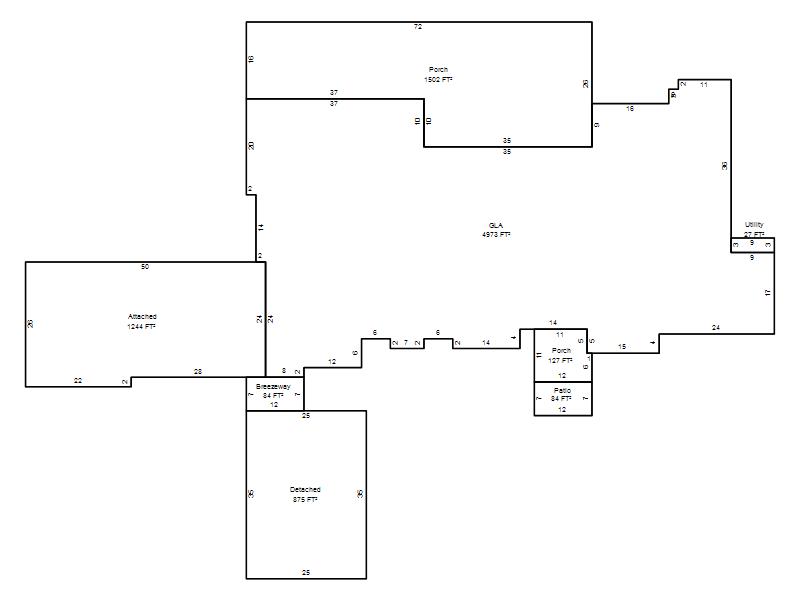
| Bldg # | Vacant/Improved Land | Bldg Description | Year Built | SqFt | # Stories | |
|
1 |
Improved |
Ranch 1 Story |
2024 |
4,973 |
1 Stories |
|