|
|
|
| Larry Stein Oklahoma County Assessor (405) 713-1200 - Public Access System |
|
|
|
|
|
|
| Real Property Display - Screen Produced 3/14/2026 3:48:12 AM | ||||
|---|---|---|---|---|
| Account: R219321080 | Type: Residential | Location: |
941 KYLE DR |
|
| Building Name/Occupant: |
|
EDMOND |
||
| Owner Name 1: | APPIAH MARILYN TRS |
Parcel PIN#: |
4638-21-932-1080 |
|
| Owner Name 2: | APPIAH MARILYN REV TRUST | 1/4 section #: |
4638 |
|
| Owner Name 3: | Parent Acct: |
4638-18-654-5110 |
||
| Billing Address: | PO BOX 890701 | Tax District: |
|
|
| City, State, Zip | OKLAHOMA CITY, OK 73189-0701 | School System: |
Edmond #12 |
|
|
Country: (If noted) |
Land Size: |
0.0765 Acres |
||
|
Land Value: 53,280 |
|
|||
|
Sect 10-T14N-R3W Qtr SE |
ABBEY AT COFFEE CREEK
Block
003
Lot
001
|
|||
| Full Legal Description: ABBEY AT COFFEE CREEK BLK 003 LOT 001 |
| Photo & Sketch (if available) | Comp Sales (ordered by relevancy) |
|
||||||||||||||||||
|
||||||||||||||||||||
| Value History (*The County Treasurer 405-713-1300 posts & collects actual tax amounts. Contact information HERE) | |||||||||||||
|---|---|---|---|---|---|---|---|---|---|---|---|---|---|
| Year | Market Value | Taxable Mkt Value | Gross Assessed | Exemption | Net Assessed | Millage | Est. Tax | Tax Savings | |||||
| No PropertyValuation records returned. | |||||||||||||
| Property Account Status/Adjustments/Exemptions | ||
|---|---|---|
| Account # | Exemption Description | Amount |
|
R219321080 |
5% Capped Account |
0 |
| Property Deed Transaction History (Recorded in the County Clerk's Office) | |||||||
|---|---|---|---|---|---|---|---|
| Date | Type | Book | Page | Price | Grantor | Grantee | |
|
2/4/2025 |
|
Hmstd Off & |
$0 |
APPIAH MARILYN TRS |
APPIAH MARILYN TRS |
||
|
12/18/2024 |
|
Deeds |
$352,500 |
SH TOWNHOMES LLC |
APPIAH MARILYN TRS |
||
|
5/23/2024 |
|
Deeds |
$45,000 |
SACC INVESTMENTS |
SH TOWNHOMES LLC |
||
|
6/9/2020 |
|
Deeds |
$1,125,000 |
BANCFIRST |
SACC INVESTMENTS |
||
| Last Mailed Notice of Value (N.O.V.) Information/History | ||||||||
|---|---|---|---|---|---|---|---|---|
| Year | Date | Market Value | Taxable Market Value | Gross Assessed | Exemption | Net Assessed | ||
| No Notice of Value N.O.V. records returned. | ||||||||
| Property Building Permit History | ||||||
|---|---|---|---|---|---|---|
| Issued | Permit # | Provided by | Bldg # | Description | Est Construction Cost | Status |
|
7/24/2024 |
B24-00762 |
|
|
Main Dwellin |
352,170 |
Inactive |
| Click button on building number to access detailed information: | ||||||
|---|---|---|---|---|---|---|
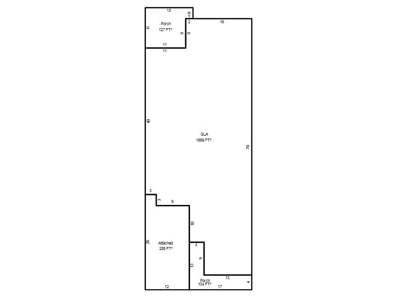
| Bldg # | Vacant/Improved Land | Bldg Description | Year Built | SqFt | # Stories | |
|
1 |
Improved |
Townhouse One Story |
2024 |
1,669 |
1 Stories |
|