|
|
|
| Larry Stein Oklahoma County Assessor (405) 713-1200 - Public Access System |
|
|
|
|
|
|
| Real Property Display - Screen Produced 4/2/2026 10:46:45 AM | ||||
|---|---|---|---|---|
| Account: R219571460 | Type: Residential | Location: |
3864 ADA AVE |
|
| Building Name/Occupant: |
|
HARRAH |
||
| Owner Name 1: | CELUSTA GEREMIAH WILLIAM & EMMA NOELLE |
Parcel PIN#: |
1051-21-957-1460 |
|
| Owner Name 2: | 1/4 section #: |
1051 |
||
| Owner Name 3: | Parent Acct: |
1051-26-713-7000 |
||
| Billing Address: | 3864 ADA AVE | Tax District: |
|
|
| City, State, Zip | HARRAH, OK 73045-5019 | School System: |
Harrah #7 |
|
|
Country: (If noted) |
Land Size: |
0.1919 Acres |
||
|
Land Value: 1,276 |
|
|||
|
Sect 13-T11N-R1E Qtr SW |
RIVER MIST SEC 2
Block
001
Lot
047
|
|||
| Full Legal Description: RIVER MIST SECT 2 BLK 001 LOT 047 |
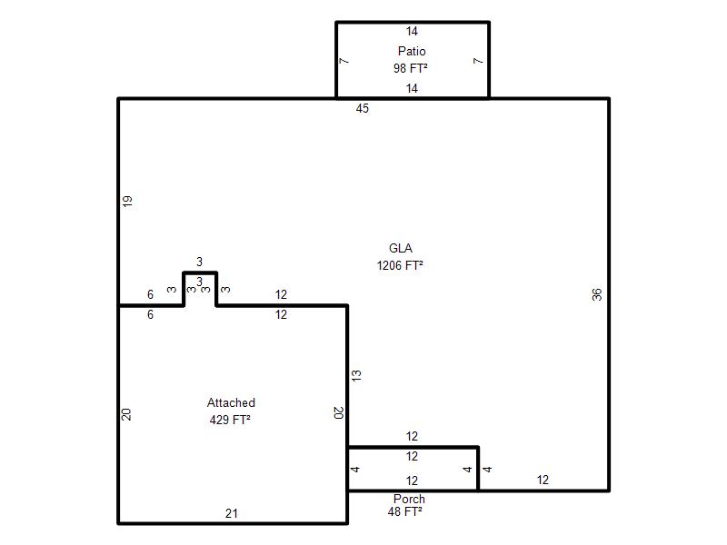
| Photo & Sketch (if available) | Comp Sales (ordered by relevancy) |
|
||||||||||||||||||
|
||||||||||||||||||||
| Value History (*The County Treasurer 405-713-1300 posts & collects actual tax amounts. Contact information HERE) | ||||||||
|---|---|---|---|---|---|---|---|---|
| Year | Market Value | Taxable Mkt Value | Gross Assessed | Exemption | Net Assessed | Millage | Est. Tax | Tax Savings |
|
2026 |
1,276 |
1,276 |
140 |
0 |
140 |
107.54 |
$15 |
$0 |
|
2025 |
1,276 |
1,276 |
140 |
0 |
140 |
107.54 |
$15 |
$0 |
|
2024 |
1,276 |
1,276 |
140 |
0 |
140 |
110.62 |
$16 |
$0 |
| Property Account Status/Adjustments/Exemptions | ||||||
|---|---|---|---|---|---|---|
| Account # | Exemption Description | Amount | ||||
| No adjustment/exemption records returned. | ||||||
| Property Deed Transaction History (Recorded in the County Clerk's Office) | |||||||
|---|---|---|---|---|---|---|---|
| Date | Type | Book | Page | Price | Grantor | Grantee | |
|
3/18/2026 |
|
Deeds |
$199,000 |
LENNAR HOMES OF OKLAHOMA LLC |
CELUSTA GEREMIAH WILLIAM & EMMA NOELLE |
||
|
8/13/2025 |
|
Mult Parcel |
$590,000 |
OKC L DEV LLC |
LENNAR HOMES OF OKLAHOMA LLC |
||
|
1/15/2025 |
|
Hmstd Off & |
$0 |
RAUSCH COLEMAN HOMES OKC LLC |
OKC L DEV LLC |
||
|
11/18/2024 |
|
Mult Parcel |
$1,890,000 |
DEQUASIE DEVELOPMENT LLC |
RAUSCH COLEMAN HOMES OKC LLC |
||
|
11/8/2018 |
|
Hmstd Off & |
$0 |
DEQUASIE JONES DEVELOPMENT LLC |
DEQUASIE DEVELOPMENT LLC |
||
| Last Mailed Notice of Value (N.O.V.) Information/History | ||||||
|---|---|---|---|---|---|---|
| Year | Date | Market Value | Taxable Market Value | Gross Assessed | Exemption | Net Assessed |
|
2024 |
01/22/2024 |
1,276 |
1,276 |
140 |
0 |
140 |
| Property Building Permit History | |||||||||||
|---|---|---|---|---|---|---|---|---|---|---|---|
| Issued | Permit # | Provided by | Bldg # | Description | Est Construction Cost | Status | |||||
| No Building Permit records returned. | |||||||||||
| Click button on building number to access detailed information: | ||||||
|---|---|---|---|---|---|---|
| Bldg # | Vacant/Improved Land | Bldg Description | Year Built | SqFt | # Stories | |
|
1 |
Improved |
Ranch 1 Story |
2025 |
1,206 |
1 Stories |
|