|
|
|
| Larry Stein Oklahoma County Assessor (405) 713-1200 - Public Access System |
|
|
|
|
|
|
| Real Property Display - Screen Produced 5/5/2026 10:53:07 PM | ||||
|---|---|---|---|---|
| Account: R140928055 | Type: Partial Exem | Location: |
2200 NE 63RD ST |
|
| Building Name/Occupant: |
OKLAHOMA PEAK/ BOOM BOX BEACH CLUB |
UNINCORPORATED |
||
| Owner Name 1: | WD ADVENTURE DISTRICT LLC |
Parcel PIN#: |
2648-14-092-8055 |
|
| Owner Name 2: | 1/4 section #: |
2648 |
||
| Owner Name 3: | Parent Acct: |
2648-14-092-8050 |
||
| Billing Address: | 7304 S YALE AVE | Tax District: |
|
|
| City, State, Zip | TULSA, OK 74136-7027 | School System: |
Millwood #37 |
|
|
Country: (If noted) |
Land Size: |
7.0500 Acres |
||
|
Land Value: 222,074 |
|
|||
|
Sect 12-T12N-R3W Qtr NW |
UNPLTD PT SEC 12 12N 3W
Block
000
Lot
000
|
|||
| Full Legal Description: UNPLTD PT NW4 SEC 12 12N 3W BEG 443.48FT S & 115FT E & 511.31FT NE & 100.98FT NE OF NW/C NW4 TH NE257.85FT NE ALONG A CURVE RIGHT 173.43FT E273.41FT S583FT W422.76FT NW203.06FT N143.55FT NW104.86FT TO BEG CONT 7.05 AC MORE OR LESS |
| No comparable sales report available. | ||||||||||||||||||||||
|
||||||||||||||||||||||
| Value History (*The County Treasurer 405-713-1300 posts & collects actual tax amounts. Contact information HERE) | |||||||||||||
|---|---|---|---|---|---|---|---|---|---|---|---|---|---|
| Year | Market Value | Taxable Mkt Value | Gross Assessed | Exemption | Net Assessed | Millage | Est. Tax | Tax Savings | |||||
|
2026 |
1,942,098 |
1,942,098 |
213,630 |
0 |
213,630 |
131.17 |
$28,022 |
$0 |
|||||
|
2025 |
4,315,018 |
4,315,018 |
474,651 |
0 |
474,651 |
131.17 |
$62,260 |
$0 |
|||||
|
2024 |
528,750 |
528,750 |
58,162 |
0 |
58,162 |
132.60 |
$7,712 |
$0 |
|||||
| Property Account Status/Adjustments/Exemptions | ||
|---|---|---|
| Account # | Exemption Description | Amount |
|
R140928055 |
5% Capped Account |
0 |
| Property Deed Transaction History (Recorded in the County Clerk's Office) | |||||||
|---|---|---|---|---|---|---|---|
| Date | Type | Book | Page | Price | Grantor | Grantee | |
|
10/24/2023 |
|
Deeds |
$150,000 |
MEDPARK REAL ESTATE LLC |
WD ADVENTURE DISTRICT LLC |
||
|
9/5/2018 |
|
Deeds |
$1,275,500 |
STORE FRONT AND LAND LLC |
MEDPARK REAL ESTATE LLC |
||
| Last Mailed Notice of Value (N.O.V.) Information/History | ||||||
|---|---|---|---|---|---|---|
| Year | Date | Market Value | Taxable Market Value | Gross Assessed | Exemption | Net Assessed |
|
2025 |
03/14/2025 |
4,315,018 |
4,315,018 |
474,651 |
0 |
474,651 |
|
2024 |
03/12/2024 |
528,750 |
528,750 |
58,162 |
0 |
58,162 |
| Property Building Permit History | ||||||
|---|---|---|---|---|---|---|
| Issued | Permit # | Provided by | Bldg # | Description | Est Construction Cost | Status |
|
2/11/2025 |
|
|
1 |
Commercial |
|
Inactive |
|
1/23/2025 |
BLDC-2024-07256 |
|
|
Supplement |
|
Inactive |
|
1/17/2025 |
BLDC-2023-06995 |
|
|
Commercial |
4,500,000 |
Inactive |
| Click button below to access detailed information and additional property photos: | ||||||
|---|---|---|---|---|---|---|
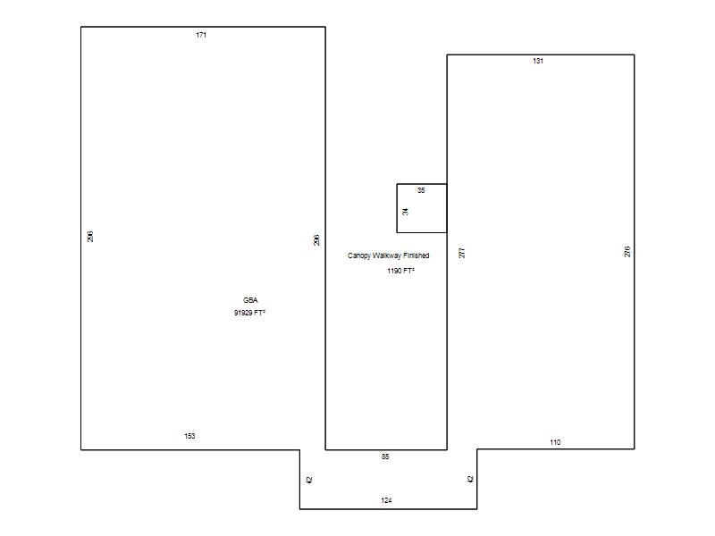
| Bldg # | Vacant/Improved Land | Bldg Description | Year Built | SqFt | # Stories | |
|
1 |
Improved |
Indoor Tennis Club |
2024 |
38,610 |
1 Stories |
|
|
2 |
Improved |
Indoor Tennis Club |
2024 |
53,319 |
1 Stories |
|