|
|
|
| Larry Stein Oklahoma County Assessor (405) 713-1200 - Public Access System |
|
|
|
|
|
|
| Real Property Display - Screen Produced 3/14/2026 11:30:56 AM | ||||
|---|---|---|---|---|
| Account: R144415035 | Type: Agricultural | Location: |
0 UNKNOWN |
|
| Building Name/Occupant: |
|
|
||
| Owner Name 1: | ADB FAMILY REV LIVING TRUST |
Parcel PIN#: |
1115-14-441-5035 |
|
| Owner Name 2: | 1/4 section #: |
1115 |
||
| Owner Name 3: | Parent Acct: |
1115-14-441-4975 |
||
| Billing Address: | 6800 S TRIPLE X RD | Tax District: |
|
|
| City, State, Zip | CHOCTAW, OK 73020-4931 | School System: |
McLoud #1 |
|
|
Country: (If noted) |
Land Size: |
10.0000 Acres |
||
|
Land Value: 34,064 |
|
|||
|
Sect 29-T11N-R1E Qtr SW |
UNPLTD PT SEC 29 11N 1E
Block
000
Lot
000
|
|||
| Full Legal Description: UNPLTD PT SW4 SEC 29 11N 1E BEG 1320FT E OF NW/C SW4 TH S330FT E1325.6FT N330FT W1325.6FT TO BEG EX ROADS OF RECORD |
| No comparable sales report available. | ||||||||||||||||||||||
|
||||||||||||||||||||||
| Value History (*The County Treasurer 405-713-1300 posts & collects actual tax amounts. Contact information HERE) | ||||||||
|---|---|---|---|---|---|---|---|---|
| Year | Market Value | Taxable Mkt Value | Gross Assessed | Exemption | Net Assessed | Millage | Est. Tax | Tax Savings |
|
2025 |
388,735 |
280,208 |
30,822 |
0 |
30,822 |
107.58 |
$3,316 |
$1,284 |
|
2024 |
300,000 |
272,047 |
29,924 |
0 |
29,924 |
108.01 |
$3,232 |
$332 |
|
2023 |
0 |
|
0 |
|
|
|
$ |
$ |
| Property Account Status/Adjustments/Exemptions | ||
|---|---|---|
| Account # | Exemption Description | Amount |
|
R144415035 |
Capped Ag 3% |
0 |
| Property Deed Transaction History (Recorded in the County Clerk's Office) | |||||||
|---|---|---|---|---|---|---|---|
| Date | Type | Book | Page | Price | Grantor | Grantee | |
|
10/8/2014 |
|
Deeds |
$0 |
BURGETT ALAN H BURGETT DEBORAH S AKA DEBBIE S |
ADB FAMILY REV LIVING TRUST |
||
| Last Mailed Notice of Value (N.O.V.) Information/History | ||||||
|---|---|---|---|---|---|---|
| Year | Date | Market Value | Taxable Market Value | Gross Assessed | Exemption | Net Assessed |
|
2026 |
02/06/2026 |
388,735 |
288,614 |
31,746 |
0 |
31,746 |
|
2025 |
01/31/2025 |
388,735 |
280,208 |
30,822 |
0 |
30,822 |
|
2024 |
04/05/2024 |
346,091 |
272,047 |
29,924 |
0 |
29,924 |
| Property Building Permit History | |||||||||||
|---|---|---|---|---|---|---|---|---|---|---|---|
| Issued | Permit # | Provided by | Bldg # | Description | Est Construction Cost | Status | |||||
| No Building Permit records returned. | |||||||||||
| Click button on building number to access detailed information: | ||||||
|---|---|---|---|---|---|---|
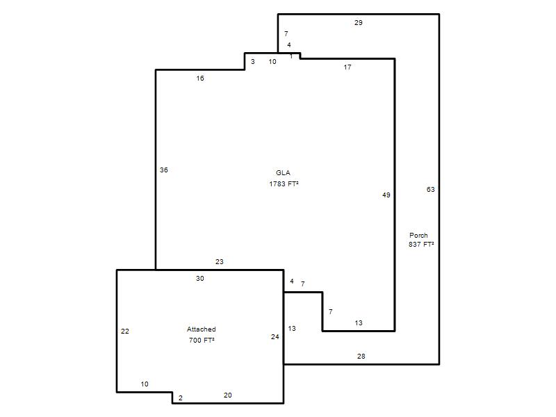
| Bldg # | Vacant/Improved Land | Bldg Description | Year Built | SqFt | # Stories | |
|
1 |
Improved |
Ranch 1 Story |
2021 |
1,783 |
1 Stories |
|