|
|
|
| Larry Stein Oklahoma County Assessor (405) 713-1200 - Public Access System |
|
|
|
|
|
|
| Real Property Display - Screen Produced 3/12/2026 2:40:20 AM | ||||
|---|---|---|---|---|
| Account: R168674095 | Type: Agricultural | Location: |
0 UNKNOWN |
|
| Building Name/Occupant: |
|
|
||
| Owner Name 1: | ROADRUNNER FLYING E LAND COMPANY LLC |
Parcel PIN#: |
1137-16-867-4095 |
|
| Owner Name 2: | 1/4 section #: |
1137 |
||
| Owner Name 3: | Parent Acct: |
1137-16-867-4090 |
||
| Billing Address: | 1328 NW 104TH ST | Tax District: |
|
|
| City, State, Zip | OKLAHOMA CITY, OK 73114 | School System: |
Harrah #7 |
|
|
Country: (If noted) |
Land Size: |
39.2600 Acres |
||
|
Land Value: 35,162 |
|
|||
|
Sect 35-T11N-R1E Qtr NE |
POTTAWATOMIE TOWNSHIP
Block
000
Lot
000
|
|||
| Full Legal Description: POTTAWATOMIE TOWNSHIP PT NE4 SEC 35 11N 1E NE4 OF NE4 EX STRIP OF LAND TO STATE |
| No comparable sales report available. | ||||||||||||||||||||||
|
||||||||||||||||||||||
| Value History (*The County Treasurer 405-713-1300 posts & collects actual tax amounts. Contact information HERE) | ||||||||
|---|---|---|---|---|---|---|---|---|
| Year | Market Value | Taxable Mkt Value | Gross Assessed | Exemption | Net Assessed | Millage | Est. Tax | Tax Savings |
|
2025 |
81,364 |
33,829 |
3,720 |
0 |
3,720 |
107.54 |
$400 |
$562 |
|
2024 |
45,057 |
32,844 |
3,612 |
0 |
3,612 |
110.62 |
$400 |
$149 |
|
2023 |
0 |
|
0 |
|
|
|
$ |
$ |
| Property Account Status/Adjustments/Exemptions | ||||||
|---|---|---|---|---|---|---|
| Account # | Exemption Description | Amount | ||||
| No adjustment/exemption records returned. | ||||||
| Property Deed Transaction History (Recorded in the County Clerk's Office) | |||||||
|---|---|---|---|---|---|---|---|
| Date | Type | Book | Page | Price | Grantor | Grantee | |
|
5/10/2023 |
|
Hmstd Off & |
$0 |
EBERLE LAND COMPANY LLC |
ROADRUNNER FLYING E LAND COMPANY LLC |
||
|
5/23/1996 |
|
Historical |
$0 |
EBERLE JOHN F |
EBERLE LAND COMPANY LLC |
||
| Last Mailed Notice of Value (N.O.V.) Information/History | ||||||
|---|---|---|---|---|---|---|
| Year | Date | Market Value | Taxable Market Value | Gross Assessed | Exemption | Net Assessed |
|
2025 |
01/31/2025 |
81,364 |
33,829 |
3,720 |
0 |
3,720 |
| Property Building Permit History | ||||||
|---|---|---|---|---|---|---|
| Issued | Permit # | Provided by | Bldg # | Description | Est Construction Cost | Status |
|
8/15/2023 |
BLDR-2023-03649 |
|
|
Add On |
75,000 |
Inactive |
| Click button on building number to access detailed information: | ||||||
|---|---|---|---|---|---|---|
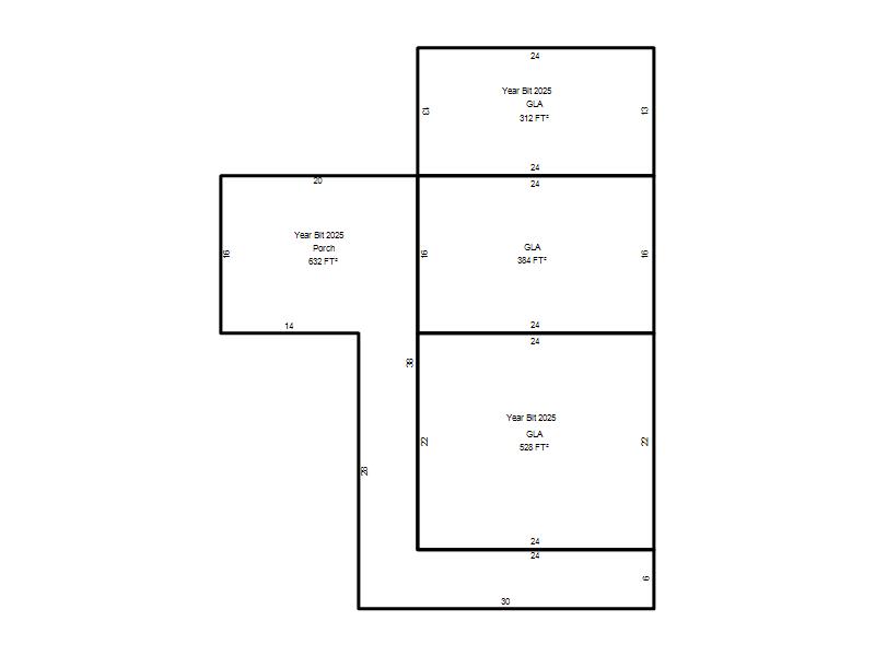
| Bldg # | Vacant/Improved Land | Bldg Description | Year Built | SqFt | # Stories | |
|
1 |
Improved |
Ranch 1 Story |
1935 |
1,224 |
1 Stories |
|