|
|
|
| Larry Stein Oklahoma County Assessor (405) 713-1200 - Public Access System |
|
|
|
|
|
|
| Real Property Display - Screen Produced 3/3/2026 1:23:23 PM | ||||
|---|---|---|---|---|
| Account: R220621030 | Type: Residential | Location: |
2621 KATE AVE |
|
| Building Name/Occupant: |
|
OKLAHOMA CITY |
||
| Owner Name 1: | AVALON AT OKLAHOMA CITY PHASE II |
Parcel PIN#: |
2691-22-062-1030 |
|
| Owner Name 2: | 1/4 section #: |
2691 |
||
| Owner Name 3: | Parent Acct: |
2691-03-499-0950 |
||
| Billing Address: | 3221 CATES AVE NE | Tax District: |
|
|
| City, State, Zip | BROOKHAVEN, GA 30319-2351 | School System: |
Oklahoma City #89 |
|
|
Country: (If noted) |
Land Size: |
0.1724 Acres |
||
|
Land Value: 2,252 |
|
|||
|
Sect 23-T12N-R3W Qtr SW |
FAIRFAX ADDITION REPLT BLK 11 LOTS 1-5
Block
011
Lot
004
|
|||
| Full Legal Description: FAIRFAX ADDITION REPLT BLK 11 LOTS 1-5 BLK 011 LOT 004 |
| No comparable sales report available. | ||||||||||||||||||||||
|
||||||||||||||||||||||
| Value History (*The County Treasurer 405-713-1300 posts & collects actual tax amounts. Contact information HERE) | ||||||||
|---|---|---|---|---|---|---|---|---|
| Year | Market Value | Taxable Mkt Value | Gross Assessed | Exemption | Net Assessed | Millage | Est. Tax | Tax Savings |
|
2025 |
7,868 |
7,868 |
865 |
0 |
865 |
122.90 |
$106 |
$0 |
| Property Account Status/Adjustments/Exemptions | ||
|---|---|---|
| Account # | Exemption Description | Amount |
|
R220621030 |
5% Capped Account |
0 |
| Property Deed Transaction History (Recorded in the County Clerk's Office) | |||||||
|---|---|---|---|---|---|---|---|
| Date | Type | Book | Page | Price | Grantor | Grantee | |
|
11/17/2023 |
|
Mult Parcel |
$460,000 |
BLUE WING HOLDINGS LLC |
AVALON AT OKLAHOMA CITY PHASE II |
||
| Last Mailed Notice of Value (N.O.V.) Information/History | ||||||
|---|---|---|---|---|---|---|
| Year | Date | Market Value | Taxable Market Value | Gross Assessed | Exemption | Net Assessed |
|
2025 |
02/14/2025 |
7,868 |
7,868 |
865 |
0 |
865 |
| Property Building Permit History | ||||||
|---|---|---|---|---|---|---|
| Issued | Permit # | Provided by | Bldg # | Description | Est Construction Cost | Status |
|
5/22/2025 |
BLDR-2024-07621 |
|
|
Main Dwellin |
120,000 |
Inactive |
| Click button on building number to access detailed information: | ||||||
|---|---|---|---|---|---|---|
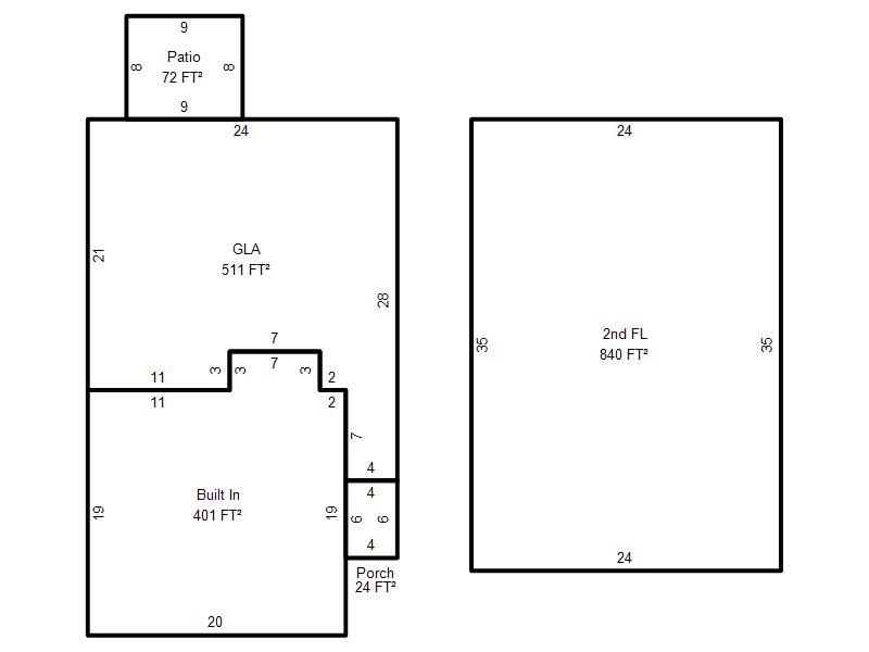
| Bldg # | Vacant/Improved Land | Bldg Description | Year Built | SqFt | # Stories | |
|
1 |
Improved |
2 Story |
2025 |
1,351 |
2 Stories |
|