|
|
|
| Larry Stein Oklahoma County Assessor (405) 713-1200 - Public Access System |
|
|
|
|
|
|
| Real Property Display - Screen Produced 3/13/2026 5:32:50 AM | ||||
|---|---|---|---|---|
| Account: R128701160 | Type: Residential | Location: |
6112 SE 57TH ST |
|
| Building Name/Occupant: |
|
OKLAHOMA CITY |
||
| Owner Name 1: | WALKER MATTHEW L |
Parcel PIN#: |
1483-12-870-1160 |
|
| Owner Name 2: | 1/4 section #: |
1483 |
||
| Owner Name 3: | Parent Acct: |
|
||
| Billing Address: | 6112 SE 57TH ST | Tax District: |
|
|
| City, State, Zip | OKLAHOMA CITY, OK 73135-5434 | School System: |
Mid-Del #52 |
|
|
Country: (If noted) |
Land Size: |
0.2066 Acres |
||
|
Land Value: 37,800 |
|
|||
|
Sect 21-T11N-R2W Qtr SW |
FROLICH MEADOWS EST BLKS 26-27
Block
027
Lot
006
|
|||
| Full Legal Description: FROLICH MEADOWS EST BLKS 26-27 027 006 |
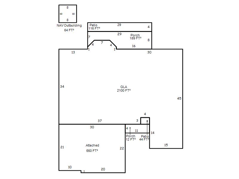
| Photo & Sketch (if available) | Comp Sales (ordered by relevancy) |
|
||||||||||||||||||
|
||||||||||||||||||||
| Value History (*The County Treasurer 405-713-1300 posts & collects actual tax amounts. Contact information HERE) | |||||||||||||
|---|---|---|---|---|---|---|---|---|---|---|---|---|---|
| Year | Market Value | Taxable Mkt Value | Gross Assessed | Exemption | Net Assessed | Millage | Est. Tax | Tax Savings | |||||
|
2025 |
276,500 |
214,463 |
23,590 |
1,000 |
22,590 |
126.46 |
$2,857 |
$989 |
|||||
|
2024 |
267,500 |
208,217 |
22,903 |
1,000 |
21,903 |
128.51 |
$2,815 |
$967 |
|||||
|
2023 |
249,500 |
202,153 |
22,236 |
1,000 |
21,236 |
122.94 |
$2,611 |
$763 |
|||||
|
2022 |
214,500 |
196,266 |
21,588 |
1,000 |
20,588 |
122.11 |
$2,514 |
$367 |
|||||
|
2021 |
198,500 |
190,550 |
20,960 |
1,000 |
19,960 |
124.74 |
$2,490 |
$234 |
|||||
| Property Account Status/Adjustments/Exemptions | ||
|---|---|---|
| Account # | Exemption Description | Amount |
|
R128701160 |
3% Cap Homestead |
0 |
|
R128701160 |
Homestead |
1,000 |
| Property Deed Transaction History (Recorded in the County Clerk's Office) | ||||||||||
|---|---|---|---|---|---|---|---|---|---|---|
| Date | Type | Book | Page | Price | Grantor | Grantee | ||||
|
4/18/2016 |
|
Deeds |
$180,000 |
FREMONT THOMAS GALLUPS & REBEKAH J |
WALKER MATTHEW L |
|||||
|
8/27/2010 |
|
Deeds |
$155,000 |
MENDEZ GILBERT & JANA L |
FREMONT THOMAS GALLUPS |
|||||
|
8/27/2010 |
|
Deeds |
$0 |
FREMONT THOMAS GALLUPS |
FREMONT THOMAS GALLUPS & REBEKAH J |
|||||
|
10/5/1995 |
|
Historical |
$128,500 |
FROLICH HOME CONSTRUCTION |
MENDEZ GILBERT & JANA L |
|||||
|
4/28/1995 |
|
Historical |
$15,000 |
SOUTHWEST TITLE & TRUST |
FROLICH HOME CONSTRUCTION |
|||||
| Last Mailed Notice of Value (N.O.V.) Information/History | ||||||||
|---|---|---|---|---|---|---|---|---|
| Year | Date | Market Value | Taxable Market Value | Gross Assessed | Exemption | Net Assessed | ||
|
2026 |
02/06/2026 |
286,000 |
220,896 |
24,297 |
1,000 |
23,297 |
||
|
2025 |
01/31/2025 |
276,500 |
214,463 |
23,590 |
1,000 |
22,590 |
||
|
2024 |
01/22/2024 |
267,500 |
208,217 |
22,903 |
1,000 |
21,903 |
||
|
2023 |
01/23/2023 |
249,500 |
202,153 |
22,236 |
1,000 |
21,236 |
||
|
2022 |
02/22/2022 |
214,500 |
196,266 |
21,588 |
1,000 |
20,588 |
||
| Property Building Permit History | ||||||
|---|---|---|---|---|---|---|
| Issued | Permit # | Provided by | Bldg # | Description | Est Construction Cost | Status |
|
4/24/1995 |
10222736 |
OKLAHOMA CITY |
1 |
Main Dwellin |
100,000 |
Inactive |
| Click button on building number to access detailed information: | ||||||
|---|---|---|---|---|---|---|
| Bldg # | Vacant/Improved Land | Bldg Description | Year Built | SqFt | # Stories | |
|
1 |
Improved |
Ranch 1 Story |
1995 |
2,100 |
1 Stories |
|