|
|
|
| Larry Stein Oklahoma County Assessor (405) 713-1200 - Public Access System |
|
|
|
|
|
|
| Real Property Display - Screen Produced 3/16/2026 6:53:57 AM | ||||
|---|---|---|---|---|
| Account: R143871297 | Type: Residential | Location: |
5028 S BERRYMAN RD |
|
| Building Name/Occupant: |
|
OKLAHOMA CITY |
||
| Owner Name 1: | SIMONSON STEPHEN R |
Parcel PIN#: |
1493-14-387-1297 |
|
| Owner Name 2: | 1/4 section #: |
1493 |
||
| Owner Name 3: | Parent Acct: |
|
||
| Billing Address: | 5028 S BERRYMAN RD | Tax District: |
|
|
| City, State, Zip | OKLAHOMA CITY, OK 73150-3306 | School System: |
Mid-Del #52 |
|
|
Country: (If noted) |
Land Size: |
2.5000 Acres |
||
|
Land Value: 45,902 |
|
|||
|
Sect 24-T11N-R2W Qtr NE |
UNPLTD PT SEC 24 11N 2W
Block
000
Lot
000
|
|||
| Full Legal Description: UNPLTD PT SEC 24 11N 2W 000 000 PT NE4 SEC 24 11N 2W BEING S 1/2 OF S 1/2 OF SW4 OF SE4 OF NE4 CONT 2.5ACR OR S 1/2 OF TR 20 |
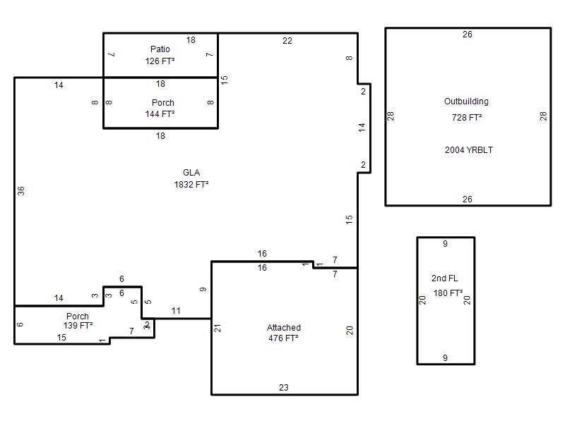
| Photo & Sketch (if available) | Comp Sales (ordered by relevancy) |
|
||||||||||||||||||
|
||||||||||||||||||||
| Value History (*The County Treasurer 405-713-1300 posts & collects actual tax amounts. Contact information HERE) | |||||||||||||
|---|---|---|---|---|---|---|---|---|---|---|---|---|---|
| Year | Market Value | Taxable Mkt Value | Gross Assessed | Exemption | Net Assessed | Millage | Est. Tax | Tax Savings | |||||
|
2025 |
419,000 |
255,480 |
28,102 |
28,102 |
0 |
126.46 |
$0 |
$5,828 |
|||||
|
2024 |
400,500 |
248,039 |
27,283 |
27,283 |
0 |
128.51 |
$0 |
$5,661 |
|||||
|
2023 |
363,000 |
240,815 |
26,489 |
26,489 |
0 |
122.94 |
$0 |
$4,909 |
|||||
|
2022 |
323,500 |
233,801 |
25,718 |
25,718 |
0 |
122.11 |
$0 |
$4,345 |
|||||
|
2021 |
272,000 |
226,992 |
24,968 |
24,968 |
0 |
124.74 |
$0 |
$3,732 |
|||||
| Property Account Status/Adjustments/Exemptions | ||
|---|---|---|
| Account # | Exemption Description | Amount |
|
R143871297 |
100% DAV Exemption |
100 |
|
R143871297 |
DAV Homestead |
0 |
|
R143871297 |
3% Cap Homestead |
0 |
| Property Deed Transaction History (Recorded in the County Clerk's Office) | |||||||
|---|---|---|---|---|---|---|---|
| Date | Type | Book | Page | Price | Grantor | Grantee | |
|
2/22/1999 |
|
Historical |
$49,000 |
BERRYMAN JANIS E & ALBERT L JR |
SIMONSON STEPHEN R |
||
|
4/6/1993 |
|
Historical |
$0 |
BERRYMAN ALBERT L JR |
BERRYMAN JANIS E & ALBERT L JR |
||
|
10/25/1988 |
|
Historical |
$30,000 |
HARMON MICHAEL R & REBA JO |
BERRYMAN ALBERT L JR |
||
|
6/1/1984 |
|
Historical |
$0 |
|
HARMON MICHAEL R & REBA JO |
||
| Last Mailed Notice of Value (N.O.V.) Information/History | ||||||||
|---|---|---|---|---|---|---|---|---|
| Year | Date | Market Value | Taxable Market Value | Gross Assessed | Exemption | Net Assessed | ||
|
2026 |
02/06/2026 |
414,500 |
263,144 |
28,945 |
28,945 |
0 |
||
|
2025 |
01/31/2025 |
419,000 |
255,480 |
28,102 |
28,102 |
0 |
||
|
2024 |
01/22/2024 |
400,500 |
248,039 |
27,283 |
27,283 |
0 |
||
|
2023 |
01/23/2023 |
363,000 |
240,815 |
26,489 |
26,489 |
0 |
||
|
2022 |
02/22/2022 |
323,500 |
233,801 |
25,717 |
25,717 |
0 |
||
| Property Building Permit History | ||||||
|---|---|---|---|---|---|---|
| Issued | Permit # | Provided by | Bldg # | Description | Est Construction Cost | Status |
|
9/19/2003 |
10283440 |
OKLAHOMA CITY |
1 |
Main Dwellin |
120,000 |
Inactive |
|
9/2/2003 |
10282585 |
OKLAHOMA CITY |
1 |
Demolish |
0 |
Inactive |
|
6/30/1993 |
10238285 |
OKLAHOMA CITY |
1 |
Garage |
1,500 |
Inactive |
| Click button on building number to access detailed information: | ||||||
|---|---|---|---|---|---|---|
| Bldg # | Vacant/Improved Land | Bldg Description | Year Built | SqFt | # Stories | |
|
1 |
Improved |
1½ Story Fin |
2004 |
2,012 |
1.5 Stories |
|