|
|
|
| Larry Stein Oklahoma County Assessor (405) 713-1200 - Public Access System |
|
|
|
|
|
|
| Real Property Display - Screen Produced 3/16/2026 6:53:57 AM | ||||
|---|---|---|---|---|
| Account: R143871400 | Type: Residential | Location: |
9628 SE 44TH ST |
|
| Building Name/Occupant: |
|
OKLAHOMA CITY |
||
| Owner Name 1: | MILLER LILLIAN C |
Parcel PIN#: |
1493-14-387-1400 |
|
| Owner Name 2: | 1/4 section #: |
1493 |
||
| Owner Name 3: | Parent Acct: |
|
||
| Billing Address: | PO BOX 30815 | Tax District: |
|
|
| City, State, Zip | MIDWEST CITY, OK 73140-3815 | School System: |
Mid-Del #52 |
|
|
Country: (If noted) |
Land Size: |
4.8100 Acres |
||
|
Land Value: 71,967 |
|
|||
|
Sect 24-T11N-R2W Qtr NE |
UNPLTD PT SEC 24 11N 2W
Block
000
Lot
000
|
|||
| Full Legal Description: UNPLTD PT SEC 24 11N 2W 000 000 PT OF NE4 SEC 24 11N 2W BEING W 1/2 OF NE4 OF NW4 OF NE4 ORTRACT 6 |
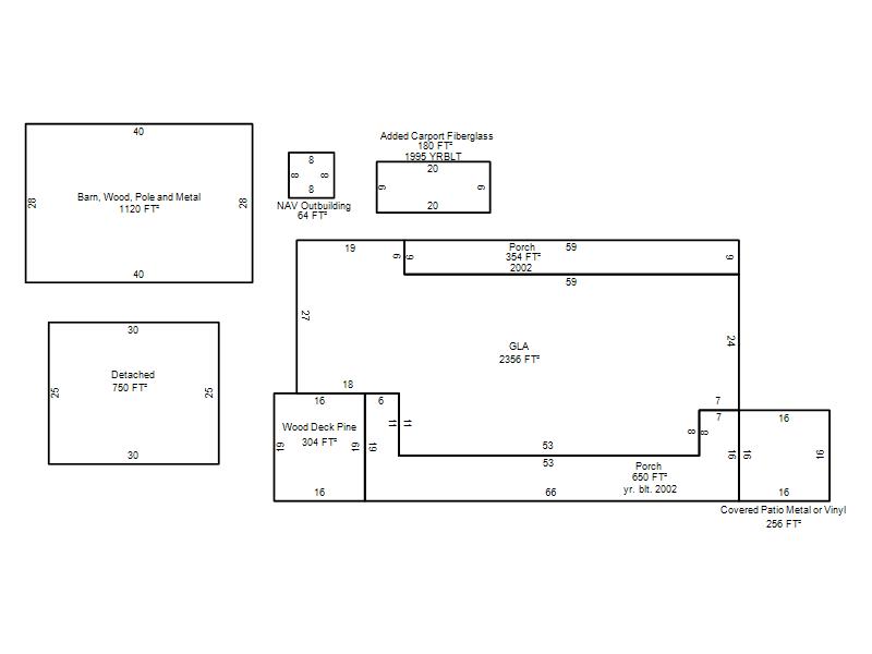
| Photo & Sketch (if available) | Comp Sales (ordered by relevancy) |
|
||||||||||||||||||
|
||||||||||||||||||||
| Value History (*The County Treasurer 405-713-1300 posts & collects actual tax amounts. Contact information HERE) | |||||||||||||
|---|---|---|---|---|---|---|---|---|---|---|---|---|---|
| Year | Market Value | Taxable Mkt Value | Gross Assessed | Exemption | Net Assessed | Millage | Est. Tax | Tax Savings | |||||
|
2025 |
515,500 |
275,509 |
30,305 |
1,000 |
29,305 |
126.46 |
$3,706 |
$3,465 |
|||||
|
2024 |
471,500 |
267,485 |
29,422 |
1,000 |
28,422 |
128.51 |
$3,653 |
$3,012 |
|||||
|
2023 |
417,500 |
259,695 |
28,566 |
1,000 |
27,566 |
122.94 |
$3,389 |
$2,257 |
|||||
|
2022 |
373,000 |
252,132 |
27,733 |
1,000 |
26,733 |
122.11 |
$3,265 |
$1,746 |
|||||
|
2021 |
311,000 |
244,789 |
26,926 |
1,000 |
25,926 |
124.74 |
$3,234 |
$1,033 |
|||||
| Property Account Status/Adjustments/Exemptions | ||
|---|---|---|
| Account # | Exemption Description | Amount |
|
R143871400 |
Homestead |
1,000 |
|
R143871400 |
3% Cap Homestead |
0 |
| Property Deed Transaction History (Recorded in the County Clerk's Office) | |||||||
|---|---|---|---|---|---|---|---|
| Date | Type | Book | Page | Price | Grantor | Grantee | |
|
8/13/2021 |
|
Deeds |
$0 |
MILLER JAMES W & LILLIAN C TRS |
MILLER LILLIAN C |
||
|
12/18/2006 |
|
Deeds |
$0 |
MILLER JAMES W & LILLIAN C |
MILLER JAMES W & LILLIAN C TRS |
||
|
3/17/1989 |
|
Historical |
$40,000 |
MCMILLIN TED F |
MILLER JAMES W & LILLIAN C |
||
|
10/1/1981 |
|
Historical |
$0 |
|
MCMILLIN TED F |
||
| Last Mailed Notice of Value (N.O.V.) Information/History | ||||||||
|---|---|---|---|---|---|---|---|---|
| Year | Date | Market Value | Taxable Market Value | Gross Assessed | Exemption | Net Assessed | ||
|
2026 |
02/06/2026 |
509,000 |
283,774 |
31,214 |
1,000 |
30,214 |
||
|
2025 |
01/31/2025 |
515,500 |
275,509 |
30,305 |
1,000 |
29,305 |
||
|
2024 |
01/22/2024 |
471,500 |
267,485 |
29,422 |
1,000 |
28,422 |
||
|
2023 |
01/23/2023 |
417,500 |
259,695 |
28,566 |
1,000 |
27,566 |
||
|
2022 |
02/22/2022 |
373,000 |
252,132 |
27,733 |
1,000 |
26,733 |
||
| Property Building Permit History | ||||||
|---|---|---|---|---|---|---|
| Issued | Permit # | Provided by | Bldg # | Description | Est Construction Cost | Status |
|
10/24/2001 |
10238292 |
OKLAHOMA CITY |
1 |
Main Dwellin |
72,000 |
Inactive |
|
9/10/2001 |
10238291 |
OKLAHOMA CITY |
1 |
Other |
0 |
Inactive |
|
5/15/1995 |
10238293 |
OKLAHOMA CITY |
1 |
Demolish |
0 |
Inactive |
|
10/28/1991 |
10238290 |
OKLAHOMA CITY |
1 |
Other |
1,000 |
Inactive |
| Click button on building number to access detailed information: | ||||||
|---|---|---|---|---|---|---|
| Bldg # | Vacant/Improved Land | Bldg Description | Year Built | SqFt | # Stories | |
|
1 |
Improved |
Ranch 1 Story |
2002 |
2,356 |
1 Stories |
|