|
|
|
| Larry Stein Oklahoma County Assessor (405) 713-1200 - Public Access System |
|
|
|
|
|
|
| Real Property Display - Screen Produced 4/3/2026 5:11:53 AM | ||||
|---|---|---|---|---|
| Account: R122491580 | Type: Residential | Location: |
8408 TIMBERWOOD LN |
|
| Building Name/Occupant: |
|
OKLAHOMA CITY |
||
| Owner Name 1: | LAWRENCE JENNINGS O II |
Parcel PIN#: |
1526-12-249-1580 |
|
| Owner Name 2: | 1/4 section #: |
1526 |
||
| Owner Name 3: | Parent Acct: |
|
||
| Billing Address: | 8408 TIMBERWOOD LN | Tax District: |
|
|
| City, State, Zip | OKLAHOMA CITY , OK 73135 | School System: |
Moore #2 |
|
|
Country: (If noted) |
Land Size: |
0.1515 Acres |
||
|
Land Value: 24,222 |
|
|||
|
Sect 32-T11N-R2W Qtr SE |
WIND WOOD ESTATES SEC I
Block
003
Lot
024
|
|||
| Full Legal Description: WIND WOOD ESTATES SEC I 003 024 |
| Photo & Sketch (if available) | Comp Sales (ordered by relevancy) |
|
||||||||||||||||||
|
||||||||||||||||||||
| Value History (*The County Treasurer 405-713-1300 posts & collects actual tax amounts. Contact information HERE) | |||||||||||||
|---|---|---|---|---|---|---|---|---|---|---|---|---|---|
| Year | Market Value | Taxable Mkt Value | Gross Assessed | Exemption | Net Assessed | Millage | Est. Tax | Tax Savings | |||||
|
2026 |
195,500 |
140,896 |
15,498 |
1,000 |
14,498 |
123.20 |
$1,786 |
$863 |
|||||
|
2025 |
198,000 |
136,793 |
15,046 |
1,000 |
14,046 |
123.20 |
$1,731 |
$953 |
|||||
|
2024 |
189,500 |
132,809 |
14,608 |
1,000 |
13,608 |
122.28 |
$1,664 |
$885 |
|||||
|
2023 |
166,500 |
128,941 |
14,183 |
1,000 |
13,183 |
121.63 |
$1,604 |
$624 |
|||||
|
2022 |
155,000 |
125,186 |
13,770 |
1,000 |
12,770 |
124.33 |
$1,588 |
$532 |
|||||
| Property Account Status/Adjustments/Exemptions | ||
|---|---|---|
| Account # | Exemption Description | Amount |
|
R122491580 |
3% Cap Homestead |
0 |
|
R122491580 |
Homestead |
1,000 |
| Property Deed Transaction History (Recorded in the County Clerk's Office) | ||||||||||
|---|---|---|---|---|---|---|---|---|---|---|
| Date | Type | Book | Page | Price | Grantor | Grantee | ||||
|
4/20/2018 |
|
Deeds |
$118,000 |
DARE DAVID C |
LAWRENCE JENNINGS O II |
|||||
|
6/17/2010 |
|
Deeds |
$102,000 |
TALMICH AMANDA M |
DARE DAVID C |
|||||
|
12/17/2007 |
|
Deeds |
$95,000 |
CHALAOPAK KASEM & PLEARNPIT |
TALMICH AMANDA M |
|||||
|
8/6/1996 |
|
Historical |
$69,000 |
WILSON PANNY J |
CHALAOPAK KASEM & PLEARNPIT |
|||||
|
4/7/1989 |
|
Historical |
$46,000 |
STEELE PHILIP RAY & MARILYN |
WILSON PANNY J |
|||||
| Last Mailed Notice of Value (N.O.V.) Information/History | ||||||||
|---|---|---|---|---|---|---|---|---|
| Year | Date | Market Value | Taxable Market Value | Gross Assessed | Exemption | Net Assessed | ||
|
2026 |
02/06/2026 |
195,500 |
140,896 |
15,498 |
1,000 |
14,498 |
||
|
2025 |
01/31/2025 |
198,000 |
136,793 |
15,046 |
1,000 |
14,046 |
||
|
2024 |
01/22/2024 |
189,500 |
132,809 |
14,608 |
1,000 |
13,608 |
||
|
2023 |
01/23/2023 |
166,500 |
128,941 |
14,183 |
1,000 |
13,183 |
||
|
2022 |
02/22/2022 |
155,000 |
125,186 |
13,770 |
1,000 |
12,770 |
||
| Property Building Permit History | |||||||||||
|---|---|---|---|---|---|---|---|---|---|---|---|
| Issued | Permit # | Provided by | Bldg # | Description | Est Construction Cost | Status | |||||
| No Building Permit records returned. | |||||||||||
| Click button on building number to access detailed information: | ||||||
|---|---|---|---|---|---|---|
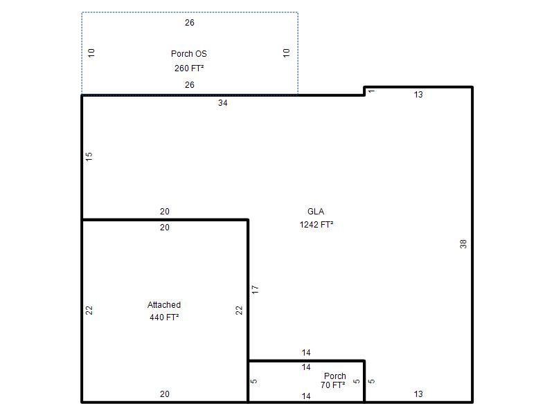
| Bldg # | Vacant/Improved Land | Bldg Description | Year Built | SqFt | # Stories | |
|
1 |
Improved |
Ranch 1 Story |
1984 |
1,242 |
1 Stories |
|