|
|
|
| Larry Stein Oklahoma County Assessor (405) 713-1200 - Public Access System |
|
|
|
|
|
|
| Real Property Display - Screen Produced 3/12/2026 12:56:20 PM | ||||
|---|---|---|---|---|
| Account: R200441480 | Type: Residential | Location: |
5001 SE 87TH ST |
|
| Building Name/Occupant: |
|
OKLAHOMA CITY |
||
| Owner Name 1: | QUIRK JOSHUA W |
Parcel PIN#: |
1526-20-044-1480 |
|
| Owner Name 2: | 1/4 section #: |
1526 |
||
| Owner Name 3: | Parent Acct: |
|
||
| Billing Address: | 1695 PLUMMER DR | Tax District: |
|
|
| City, State, Zip | ROCKWALL, TX 75087 | School System: |
Moore #2 |
|
|
Country: (If noted) |
UNITED STATES |
Land Size: |
0.2182 Acres |
|
|
Land Value: 33,736 |
|
|||
|
Sect 32-T11N-R2W Qtr SE |
WIND WOOD ESTATES SEC 10
Block
049
Lot
005
|
|||
| Full Legal Description: WIND WOOD ESTATES SEC 10 049 005 |
| Photo & Sketch (if available) | Comp Sales (ordered by relevancy) |
|
||||||||||||||||||
|
||||||||||||||||||||
| Value History (*The County Treasurer 405-713-1300 posts & collects actual tax amounts. Contact information HERE) | |||||||||||||
|---|---|---|---|---|---|---|---|---|---|---|---|---|---|
| Year | Market Value | Taxable Mkt Value | Gross Assessed | Exemption | Net Assessed | Millage | Est. Tax | Tax Savings | |||||
|
2025 |
33,736 |
33,736 |
3,710 |
0 |
3,710 |
123.20 |
$457 |
$0 |
|||||
|
2024 |
33,736 |
33,736 |
3,710 |
0 |
3,710 |
122.28 |
$454 |
$0 |
|||||
|
2023 |
231,500 |
193,322 |
21,264 |
0 |
21,264 |
121.63 |
$2,587 |
$511 |
|||||
|
2022 |
200,500 |
184,117 |
20,252 |
0 |
20,252 |
124.33 |
$2,518 |
$224 |
|||||
|
2021 |
182,000 |
175,350 |
19,288 |
0 |
19,288 |
123.94 |
$2,391 |
$91 |
|||||
| Property Account Status/Adjustments/Exemptions | ||
|---|---|---|
| Account # | Exemption Description | Amount |
|
R200441480 |
5% Capped Account |
0 |
| Property Deed Transaction History (Recorded in the County Clerk's Office) | |||||||
|---|---|---|---|---|---|---|---|
| Date | Type | Book | Page | Price | Grantor | Grantee | |
|
3/27/2009 |
|
Deeds |
$150,000 |
CONNER JESSIE J & JOSEFA C |
QUIRK JOSHUA W |
||
|
10/13/2000 |
|
Deeds |
$112,000 |
LEONHARDT ENTERPRISES INC |
CONNER JESSIE J & JOSEFA C |
||
|
3/20/2000 |
|
Deeds |
$14,500 |
SOUTHWICK COMPANY LLC |
LEONHARDT ENTERPRISES INC |
||
|
11/14/1997 |
|
Historical |
$0 |
|
SOUTHWICK COMPANY LLC |
||
| Last Mailed Notice of Value (N.O.V.) Information/History | ||||||||
|---|---|---|---|---|---|---|---|---|
| Year | Date | Market Value | Taxable Market Value | Gross Assessed | Exemption | Net Assessed | ||
|
2024 |
01/22/2024 |
240,500 |
202,988 |
22,328 |
0 |
22,328 |
||
|
2023 |
01/23/2023 |
231,500 |
193,322 |
21,264 |
0 |
21,264 |
||
|
2022 |
02/22/2022 |
200,500 |
184,117 |
20,252 |
0 |
20,252 |
||
|
2021 |
02/24/2021 |
182,000 |
175,350 |
19,288 |
0 |
19,288 |
||
|
2019 |
02/26/2019 |
168,000 |
168,000 |
18,480 |
0 |
18,480 |
||
| Property Building Permit History | ||||||
|---|---|---|---|---|---|---|
| Issued | Permit # | Provided by | Bldg # | Description | Est Construction Cost | Status |
|
11/26/2024 |
|
|
|
Remodeled |
|
Active |
|
3/27/2000 |
10266510 |
OKLAHOMA CITY |
1 |
Main Dwellin |
96,500 |
Inactive |
| Click button on building number to access detailed information: | ||||||
|---|---|---|---|---|---|---|
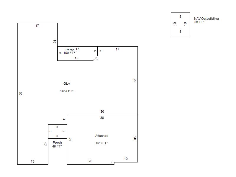
| Bldg # | Vacant/Improved Land | Bldg Description | Year Built | SqFt | # Stories | |
|
1 |
Improved |
Ranch 1 Story |
2000 |
1,854 |
1 Stories |
|