|
|
|
| Larry Stein Oklahoma County Assessor (405) 713-1200 - Public Access System |
|
|
|
|
|
|
| Real Property Display - Screen Produced 3/16/2026 9:13:15 AM | ||||
|---|---|---|---|---|
| Account: R129731100 | Type: Residential | Location: |
4917 SE 89TH TER |
|
| Building Name/Occupant: |
|
OKLAHOMA CITY |
||
| Owner Name 1: | 510 SFR OK OPERATIONS I LLC |
Parcel PIN#: |
1527-12-973-1100 |
|
| Owner Name 2: | 1/4 section #: |
1527 |
||
| Owner Name 3: | Parent Acct: |
|
||
| Billing Address: | 1719 NEW JERSEY 10, Unit 219 | Tax District: |
|
|
| City, State, Zip | PARSIPPANY, NJ 07054-4500 | School System: |
Moore #2 |
|
|
Country: (If noted) |
Land Size: |
0.1119 Acres |
||
|
Land Value: 23,892 |
|
|||
|
Sect 32-T11N-R2W Qtr SW |
WELLINGTON LAKES
Block
002
Lot
004
|
|||
| Full Legal Description: WELLINGTON LAKES 002 004 LOT 4 & W16.25FT OF LOT 5 BLK 2 WELLINGTON LAKES |
| Photo & Sketch (if available) | Comp Sales (ordered by relevancy) |
|
||||||||||||||||||
|
||||||||||||||||||||
| Value History (*The County Treasurer 405-713-1300 posts & collects actual tax amounts. Contact information HERE) | |||||||||||||
|---|---|---|---|---|---|---|---|---|---|---|---|---|---|
| Year | Market Value | Taxable Mkt Value | Gross Assessed | Exemption | Net Assessed | Millage | Est. Tax | Tax Savings | |||||
|
2025 |
243,500 |
186,336 |
20,496 |
0 |
20,496 |
123.20 |
$2,525 |
$775 |
|||||
|
2024 |
211,000 |
177,463 |
19,520 |
0 |
19,520 |
122.28 |
$2,387 |
$451 |
|||||
|
2023 |
209,500 |
169,013 |
18,591 |
0 |
18,591 |
121.63 |
$2,261 |
$542 |
|||||
|
2022 |
187,500 |
160,965 |
17,706 |
0 |
17,706 |
124.33 |
$2,201 |
$363 |
|||||
|
2021 |
163,000 |
153,300 |
16,863 |
0 |
16,863 |
123.94 |
$2,090 |
$132 |
|||||
| Property Account Status/Adjustments/Exemptions | ||||||
|---|---|---|---|---|---|---|
| Account # | Exemption Description | Amount | ||||
| No adjustment/exemption records returned. | ||||||
| Property Deed Transaction History (Recorded in the County Clerk's Office) | ||||||||||
|---|---|---|---|---|---|---|---|---|---|---|
| Date | Type | Book | Page | Price | Grantor | Grantee | ||||
|
8/20/2025 |
|
Deeds |
$227,500 |
JENNINGS JOHN T & MARY REV LIV TRUST |
510 SFR OK OPERATIONS I LLC |
|||||
|
8/12/2015 |
|
Hmstd Off & |
$0 |
JENNINGS JOHN T & MARY C TRS CATURIA JENNINGS TRUST |
JENNINGS JOHN T & MARY REV LIV TRUST |
|||||
|
9/20/2006 |
|
Deeds |
$0 |
JENNINGS JOHN T & MARY |
JENNINGS JOHN T & MARY C TRS CATURIA JENNINGS TRUST |
|||||
|
2/28/2003 |
|
Deeds |
$118,000 |
FARZANEH PROPERTIES INC |
JENNINGS JOHN T & MARY |
|||||
|
8/13/2002 |
|
|
$0 |
SHAZ INVESTMENTS GROUP INC |
FARZANEH PROPERTIES INC |
|||||
| Last Mailed Notice of Value (N.O.V.) Information/History | ||||||||
|---|---|---|---|---|---|---|---|---|
| Year | Date | Market Value | Taxable Market Value | Gross Assessed | Exemption | Net Assessed | ||
|
2026 |
02/06/2026 |
245,000 |
245,000 |
26,950 |
0 |
26,950 |
||
|
2025 |
01/31/2025 |
243,500 |
186,336 |
20,496 |
0 |
20,496 |
||
|
2024 |
01/22/2024 |
211,000 |
177,463 |
19,520 |
0 |
19,520 |
||
|
2023 |
01/23/2023 |
209,500 |
169,013 |
18,591 |
0 |
18,591 |
||
|
2022 |
02/22/2022 |
187,500 |
160,965 |
17,706 |
0 |
17,706 |
||
| Property Building Permit History | ||||||
|---|---|---|---|---|---|---|
| Issued | Permit # | Provided by | Bldg # | Description | Est Construction Cost | Status |
|
9/24/2002 |
10226638 |
OKLAHOMA CITY |
1 |
Main Dwellin |
74,300 |
Inactive |
| Click button on building number to access detailed information: | ||||||
|---|---|---|---|---|---|---|
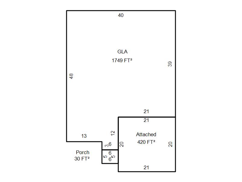
| Bldg # | Vacant/Improved Land | Bldg Description | Year Built | SqFt | # Stories | |
|
1 |
Improved |
Ranch 1 Story |
2003 |
1,749 |
1 Stories |
|