|
|
|
| Larry Stein Oklahoma County Assessor (405) 713-1200 - Public Access System |
|
|
|
|
|
|
| Real Property Display - Screen Produced 3/20/2026 5:40:15 AM | ||||
|---|---|---|---|---|
| Account: R146540630 | Type: Residential | Location: |
20901 HALIFAX AVE |
|
| Building Name/Occupant: |
|
OKLAHOMA CITY |
||
| Owner Name 1: | WILLIAMS TIMOTHY R |
Parcel PIN#: |
1101-14-654-0630 |
|
| Owner Name 2: | 1/4 section #: |
1101 |
||
| Owner Name 3: | Parent Acct: |
|
||
| Billing Address: | PO BOX 57 | Tax District: |
|
|
| City, State, Zip | CROWDER, OK 74430 | School System: |
Harrah #7 |
|
|
Country: (If noted) |
UNITED STATES |
Land Size: |
0.4017 Acres |
|
|
Land Value: 19,250 |
|
|||
|
Sect 26-T11N-R1E Qtr NE |
NEWALLA CITY ADD
Block
015
Lot
000
|
|||
| Full Legal Description: NEWALLA CITY ADD 015 000 LOTS 28 THRU 32 |
| No comparable sales report available. | ||||||||||||||||||||||
|
||||||||||||||||||||||
| Value History (*The County Treasurer 405-713-1300 posts & collects actual tax amounts. Contact information HERE) | |||||||||||||
|---|---|---|---|---|---|---|---|---|---|---|---|---|---|
| Year | Market Value | Taxable Mkt Value | Gross Assessed | Exemption | Net Assessed | Millage | Est. Tax | Tax Savings | |||||
|
2025 |
31,623 |
11,485 |
1,263 |
0 |
1,263 |
122.70 |
$155 |
$272 |
|||||
|
2024 |
31,635 |
10,939 |
1,203 |
0 |
1,203 |
125.55 |
$151 |
$286 |
|||||
|
2023 |
31,648 |
10,419 |
1,145 |
0 |
1,145 |
112.66 |
$129 |
$263 |
|||||
|
2022 |
14,402 |
9,923 |
1,090 |
0 |
1,090 |
114.96 |
$125 |
$57 |
|||||
|
2021 |
9,522 |
9,451 |
1,039 |
1,000 |
39 |
114.25 |
$5 |
$115 |
|||||
| Property Account Status/Adjustments/Exemptions | ||
|---|---|---|
| Account # | Exemption Description | Amount |
|
R146540630 |
5% Capped Account |
0 |
| Property Deed Transaction History (Recorded in the County Clerk's Office) | |||||||
|---|---|---|---|---|---|---|---|
| Date | Type | Book | Page | Price | Grantor | Grantee | |
|
11/15/2011 |
|
Hmstd Off & |
$0 |
WILLIAMS ELIZABETH A WILLIAMS GETTY W |
WILLIAMS TIMOTHY R |
||
|
7/24/1998 |
|
Historical |
$0 |
WATTS FRANCES OLIVIA REV TRUST |
WILLIAMS ELIZABETH A |
||
|
8/19/1992 |
|
Historical |
$0 |
WATTS FRANCES O |
WATTS FRANCES OLIVIA REV TRUST |
||
|
11/11/1911 |
|
Historical |
$0 |
|
WATTS FRANCES O |
||
| Last Mailed Notice of Value (N.O.V.) Information/History | ||||||||
|---|---|---|---|---|---|---|---|---|
| Year | Date | Market Value | Taxable Market Value | Gross Assessed | Exemption | Net Assessed | ||
|
2026 |
02/06/2026 |
31,866 |
12,059 |
1,326 |
0 |
1,326 |
||
|
2025 |
01/31/2025 |
31,623 |
11,485 |
1,263 |
0 |
1,263 |
||
|
2024 |
01/22/2024 |
31,635 |
10,939 |
1,203 |
0 |
1,203 |
||
|
2023 |
01/23/2023 |
31,648 |
10,419 |
1,145 |
0 |
1,145 |
||
|
2022 |
02/22/2022 |
14,402 |
9,923 |
1,090 |
0 |
1,090 |
||
| Property Building Permit History | |||||||||||
|---|---|---|---|---|---|---|---|---|---|---|---|
| Issued | Permit # | Provided by | Bldg # | Description | Est Construction Cost | Status | |||||
| No Building Permit records returned. | |||||||||||
| Click button on building number to access detailed information: | ||||||
|---|---|---|---|---|---|---|
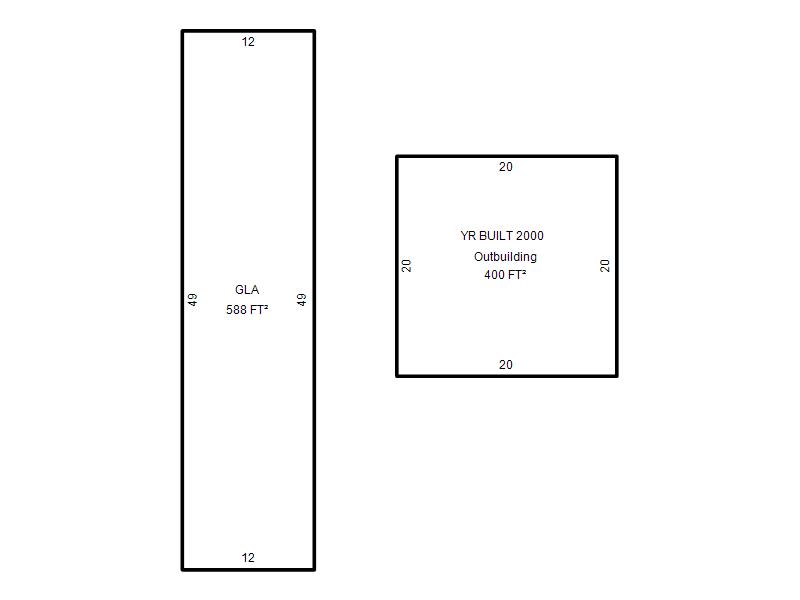
| Bldg # | Vacant/Improved Land | Bldg Description | Year Built | SqFt | # Stories | |
|
1 |
Improved |
Single Wide |
1973 |
588 |
1 Stories |
|